Besiktigad

Lugnet, Värmdö

Renvägen 26

Såld

Lugnet, Värmdö

Renvägen 26

Slutpris: 5 000 000 kr

Senaste bud
bidding icon with dollar sign Budgivare 1 5 000 000 kr Visa alla

Familjevilla med ljuvlig uppvuxen trädgård i Gustavsberg

I ett lummigt och rofyllt villakvarter i omtyckta Lugnet väntar denna charmiga familjevilla – en plats där livet får ta plats och vardagen får vara enkel. Här möts du direkt av en varm och hemtrevlig känsla. Det märks att huset tagits väl om hand genom åren, och den rymliga planlösningen skapar förutsättningar för både gemenskap och avskildhet. Med lite renovering kan du skapa ditt drömhem för många år framöver.

Hemmets hjärta är det ljusa vardagsrummet med generösa ytor, där solen vilar mjukt mot väggarna och bjuder in till långa samtal och avkopplande stunder i soffan. Härifrån kliver du rakt ut i det inglasade uterummet – en plats att njuta av oavsett säsong, där gröna fingrar kan frodas eller kaffekoppen avnjutas i lugn och ro. Köket är praktiskt utformat med gott om arbetsyta och plats för hela familjen runt matbordet.

Entréplanet rymmer också ett rogivande sovrum, ett helkaklat badrum med badkar och en generöst matsal som med enkla medel kan avskiljas och förvandlas till ytterligare ett sovrum – se alternativ planskiss. På övre plan väntar ett stort sovrum med egen wc, ett mysigt allrum med värmande kamin, och möjlighet att skapa ytterligare sovrum för den som behöver mer plats.

Källarplanet är lika praktiskt som generöst. Här finns rymlig tvättstuga med dusch och groventré, gillestuga, flera förråd, matkällare, pannrum – och dessutom en intern ingång till det rymliga garaget som har plats för både bil och förvaring. Utanför finns även carport och asfalterad uppfart.

Trädgårdstomten är som tagen ur en svensk sommaridyll. Här möts du av en skyddad grön oas med knotiga fruktträd – äpplen, plommon och körsbär – bärbuskar med hallon, björnbär och vinbär, blommande rabatter, fläder, odlingsland och till och med ett växthus. Här finns också en äldre lekstuga som vittnar om skratt och barndomsminnen. Tomten vetter mot en lugn allmänning, vilket ger ett härligt insynsskydd och ännu mer naturkänsla.

Läget är svårslaget för dig som söker ett naturnära liv men inte vill kompromissa med bekvämligheten. Här bor du med vackra strövområden precis runt knuten – från Ösbyträsk med sina badklippor till Skeviksgrottorna, Ekedalsspåret med utegym, och hela Värmdöledens nätverk. En kort promenad tar dig till flera förskolor, skolor upp till årskurs 9, och det populära Gustavsbergsbadet med äventyrsbad.

En kort cykeltur bort ligger Värmdös vackra och allsidiga centralort Gustavsberg. Här får du uppleva en enastående kombination av skärgård, naturområden och kulturarv, samtidigt som du har nära till allt som storstaden har att erbjuda. Den gamla bruksorten är välkänd för sin unika konsthistoria och porslinstillverkning som började för över 100 år sedan. Samtidigt som den kulturhistoriska miljön bevaras befinner sig Gustavsberg just nu i en spännande utvecklingsfas. Under de närmaste åren kommer hela centralorten att få ett ordentligt lyft. Den ambitiösa satsningen innebär att flera nya bostäder kommer att byggas i bland annat Porslinskvarteren. Gustavsbergs hamn planeras att utvecklas till ett konst- och kulturcentrum med ännu fler aktiviteter och upplevelser, som alltigenom kommer att präglas av ett modernt perspektiv på hållbarhet. För att ytterligare berika området ges även plats för nya restauranger, verksamhetslokaler och parker. Expansionen kommer också att inrymma ett aktivt båtliv, på Kattholmen skapas ett marint centrum med en ny gästhamn.
Vid Gustavsbergs centrum finner du idag bland annat matbutik, apotek, och systembolag. Vid centrum hittar du också flera idrottsanläggningar samt Gustavsbergsbadet med äventyrsbad. Bara några minuter bort finns de större köpcentrumen Värmdö marknad och Värmdö Köpcentrum med ett 70-tal butiker. Vid hamnområdet finns idag både restaurang, mysiga caféer, småbutiker, bank, kulturhus med bibliotek, konst- och kulturutställningar som porslinsmuseet samt marina med båtliv. Även vårdcentral och apotek. Direktbussarna från lugnet tar dig smidigt in till Slussen på bara 35 min från centrum ca 25 min.

Denna familjevilla har allt du kan önska dig och möjliggör en fridfull och komfortabel livsstil.

Sophie Palmstierna
Ansvarig mäklare

Sophie Palmstierna

Fastighetsmäklare, franchisetagare Boka tid i min kalender Läs mer om Sophie
Johan Wahlberg
Assisterande mäklare

Johan Wahlberg

Fastighetsmäklare Fri värdering Läs mer om Johan

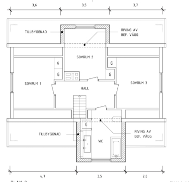
Planritning

previous slide
next slide
Planlösning från Renvägen 26, Såld i Lugnet, Värmdö
Planlösning från Renvägen 26, Såld i Lugnet, Värmdö
Planlösning från Renvägen 26, Såld i Lugnet, Värmdö
Planlösning från Renvägen 26, Såld i Lugnet, Värmdö
bg

Ska vi ses hemma hos dig?

Nya tider skapar nya möjligheter. Du kanske går i försäljningstankar, eller så funderar du på vad din bostad är värd. Oavsett om du har planer på att sälja din bostad eller bara är nyfiken på värdet kan du ta hjälp av våra mäklare. Vi värderar ditt hus, din lägenhet, sommarstuga eller fastighet. Antingen hemma hos dig eller digitalt. Klicka på länken och fyll i formuläret så kontaktar vi dig för ett förutsättningslöst möte.

Värdering av din bostad