Kommande bostad

Tollare, Nacka

Tollareslingan 24, 6tr

Tollare, Nacka

Tollareslingan 24, 6tr

price tag icon Pris
Pris enl ök
Bostadstyp
Lägenhet
rooms and are icon Antal rum
3 rum och kök
area icon Boarea
87 m2
calendar icon Byggnadsår
2018
floors icon Våning
6 av 12 (med hiss)
price tag icon Månadsavgift
6 359 kr/mån
Tollareslingan 24, 6tr

Vattenkontakten från bostaden är magisk. Ni måste uppleva bostaden på plats för att förstå känslan!

Vattenkontakten från bostaden är magisk. Ni måste uppleva bostaden på plats för att förstå känslan!

Varmt välkomna till en av föreningens absoluta pärlor med en spektakulär utsikt och vattenkontakt med vackra Lännerstasundet och Mårtens Holme. Här bor du i en väldisponerad bostad med exklusiva materialval och gott om förvaringsmöjligheter. Generös balkong där utsikten är fantastisk med sol från morgon till sen eftermiddag. Lite lyx i vardagen tackar man inte nej till!

- Fantastisk vattenkontakt
- Fri utsikt över Lännerstasundet och Mårtens Holme
- Stor möblerbar balkong
- Social planlösning
- Exklusiva tillval
- Fantastiskt badrum
- Föreningen har bastu på en av de två allmänna takterrasserna man kan nyttja.
- Nära till skolor, natur, badsjöar, promenadstråk, Björknäs Centrum, Restaurang Bruket nere vid vattnet
- Utmärkta kommunikationer i form av bussar (nr 414, 442)

Nu finns chansen att förvärva detta drömhem i ett av Tollares kanske bästa lägen med fri utsikt mot vattnet. Här finner ni en stor möblerbar balkong rakt mot Lännerstasundet och Mårtens Holme där solen gör entré vid soluppgång och försvinner vid skymning.

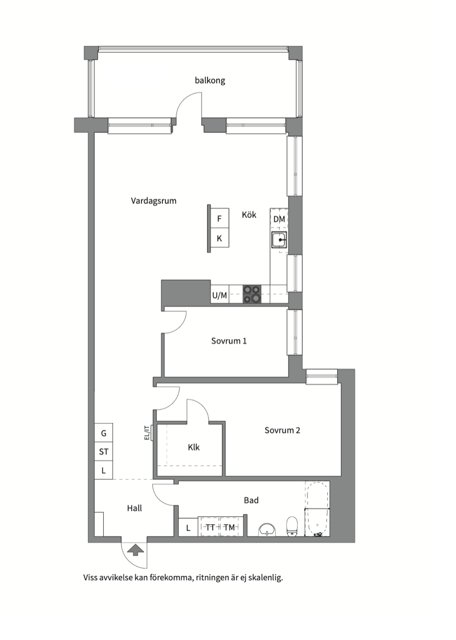
Bostaden erbjuder även ett stort och öppet vardagsrum som är den perfekta samlingsplatsen för vänner och familj. Från vardagsrummet når man köket som är stort och exklusivt med trivsamt köksfönster. Gott om förvaring och arbetsutrymmen samt matplats för hela familjen. Stort och exklusivt badrum. Perfekt familjebostad.

Bostaden har även två sovrum där masterbedroom är väldigt generöst med vackert fönster med direktkontakt med vattnet. Lägenheten har ett frontläge mot vattnet med magisk vattenkontakt som bara kan upplevas på plats.

Till bostaden finns ett ca 4 kvm stort förråd med direkt anslutning från trapphuset.

Varmt välkomna på visning!

Intresseanmälan
Thomas Jonasson
Ansvarig mäklare

Thomas Jonasson

Fastighetsmäklare Fri värdering Läs mer om Thomas

Bostaden

Föreningen

Ekonomi

Område

Dokument och länkar

Intresseanmälan

Anmäl dig här

Du som är intresserad av den här bostaden får gärna lämna dina kontaktuppgifter här. Då kan jag höra av mig till dig med uppdateringar kring bostaden, och du riskerar inte att missa nåt.

Räkna ut boendekostnad

bg

Ska vi ses hemma hos dig?

Nya tider skapar nya möjligheter. Du kanske går i försäljningstankar, eller så funderar du på vad din bostad är värd. Oavsett om du har planer på att sälja din bostad eller bara är nyfiken på värdet kan du ta hjälp av våra mäklare. Vi värderar ditt hus, din lägenhet, sommarstuga eller fastighet. Antingen hemma hos dig eller digitalt. Klicka på länken och fyll i formuläret så kontaktar vi dig för ett förutsättningslöst möte.

Värdering av din bostad