Till salu

Tollare, Nacka

Tollareslingan 22, 10/10tr

Tollare, Nacka

Tollareslingan 22, 10/10tr

Nästa visning
calendar icon söndag 15 februari
calendar icon Nästa visning
söndag 15 februari
price tag icon Pris
7 995 000 kr Eller högstbjudande
Bostadstyp
Lägenhet
rooms and are icon Antal rum
3 rum och kök
area icon Boarea
84 m2
calendar icon Byggnadsår
2020
floors icon Våning
10 av 10 (med hiss)
price tag icon Månadsavgift
6 203 kr/mån
Tollareslingan 22, 10/10tr

Välkommen till ett av Tollares absolut bästa lägen!

Högst upp i huset, med fri utsikt över vattnet, ligger denna unika lägenhet med en fantastisk terrass om cirka 50 kvm i soligt söderläge. Här får du en privat oas helt utan insyn, där solen värmer från morgon till kväll.

Lägenheten håller genomgående mycket hög standard och är belägen i en modern fastighet. Vardagsrummet och det öppna köket bjuder på stora fönsterpartier i tre väderstreck med härligt ljusinsläpp och vidsträckt havsutsikt. Köket är stilrent med påkostade materialval, full maskinell utrustning samt gott om förvaring och arbetsytor.

Bostaden erbjuder två utmärkta sovrum med stora fönster och generöst med garderober. Det rymliga badrummet är helkaklat med ljusa ytskikt, dusch med glasvägg samt egen tvätt och torktumlare. Genomgående vacker parkett löper genom vardagsrum, kök, sovrum och hall.

Från både vardagsrum och kök nås den stora terrassen som har gott om plats för både loungemöbler, matplats, växthus och odlingar. Här finns även ett eget förråd. Plattorna i granitkeramik skapar en stilfull och hållbar helhet.

Läget kan knappast bli bättre – precis intill vattnet och strandpromenaden som leder till populära restauranger som Bruket, The Old Smokehouse och Kennys Gelato, utsedd till Sveriges bästa glass. I området finns även småbåtshamn med möjlighet till båtplats, naturbad, klippbad, badbrygga samt Boobadet och Baggensfjärden på bekvämt avstånd. För barnfamiljer finns flera lekplatser, bollplaner, förskolor och skolor i området.

Kommunikationer
Här bor du med smidiga förbindelser – motorvägsbussen tar dig till stan på under 20 minuter och skärgårdsbåtarna avgår från närliggande bryggor.

Här kombineras modern bekvämlighet med skärgårdskänsla – ett boende som erbjuder livskvalitet på absolut toppnivå.

Varmt välkommen till en av Tollares mest attraktiva bostäder!

Visningar

Föranmälan krävs! söndag 15 februari
Thomas Jonasson
Ansvarig mäklare

Thomas Jonasson

Fastighetsmäklare Fri värdering Läs mer om Thomas

Bostaden

Föreningen

Ekonomi

Dokument och länkar

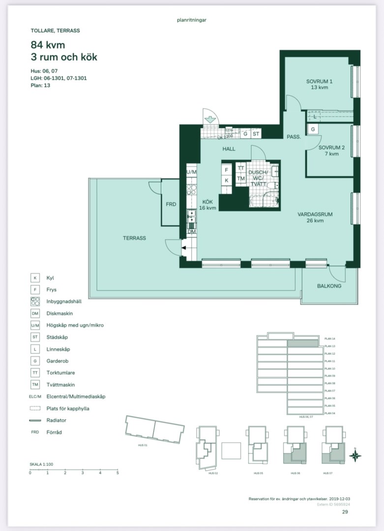
Planlösning från Tollareslingan 22, 10/10tr, Till salu i Tollare, Nacka
Intresseanmälan

Anmäl dig här

Du som är intresserad av den här bostaden får gärna lämna dina kontaktuppgifter här. Då kan jag höra av mig till dig med uppdateringar kring bostaden, och du riskerar inte att missa nåt.

Räkna ut boendekostnad

bg

Ska vi ses hemma hos dig?

Nya tider skapar nya möjligheter. Du kanske går i försäljningstankar, eller så funderar du på vad din bostad är värd. Oavsett om du har planer på att sälja din bostad eller bara är nyfiken på värdet kan du ta hjälp av våra mäklare. Vi värderar ditt hus, din lägenhet, sommarstuga eller fastighet. Antingen hemma hos dig eller digitalt. Klicka på länken och fyll i formuläret så kontaktar vi dig för ett förutsättningslöst möte.

Värdering av din bostad