Kommande bostad
Besiktigad

Heby, Heby

Storgatan 34

Heby, Heby

Storgatan 34

price tag icon Pris
1 695 000 kr Utgångspris
Bostadstyp
Friliggande villa
rooms and are icon Antal rum
5 rum
area icon Boarea
123 m2
area icon Biarea
34 m2
area icon Tomtarea
1 342 m2
calendar icon Byggnadsår
1908
Storgatan 34

Skapa ditt drömhem i denna charmiga pärla i Heby – nära mataffär och bra kommunikationer!

Charmiga pärla i Heby, belägen i ett trevligt villaområde med närhet till mataffär och bra buss kommunikationer. Detta 1,5-planshus med källare utgör den perfekta möjligheten för den som drömmer om att skapa sitt eget personliga paradis. Beläget i en härlig och lugn miljö erbjuder denna fastighet en stor potential för den visionäre köparen, visst moderniserings- och renoveringsbehov föreligger. Kommunalt vatten och avlopp och indraget fiber.

Huset på 123 kvm boarea + 34 kvm biarea har väldisponerade rum fördelade över entréplan, övre plan och källare, byggt 1908 och tillbyggt 1947. Stor, gräsbeklädd tomt med inslag av skogsmiljö i form av omfamnande barr- och lövträd. Stora lekytor för barnen och goda odlingsmöjligheter. Staket och häckar som omger fastigheten.
Välkommen till en växande ort, här finns bl.a. matbutiker, vårdcentral samt Heby Arena innehållandes flera simpooler, ett välutrustat gym och sporthallar som du kan hyra. Att leva och bo i Heby är tryggt och trevligt, här har du gångavstånd till förskola och skola F-9. Goda kommunikationer med buss och tåg till bland annat Uppsala och Sala gör det också lätt att pendla till närliggande städer för arbete eller fritidsaktiviteter.

Missa inte chansen att omvandla detta hus till ditt drömhem och upplev det bästa av lantlivet i Heby.

Välkommen hit, välkommen hem!

Vid intresse för förhandsvisning vänligen kontakta ansvarig mäklare Sofia Wictorsson för mer information, på 072-253 80 99 eller sofia.wictorsson@widerlov.se!

Intresseanmälan
Sofia Wictorsson
Ansvarig mäklare

Sofia Wictorsson

Fastighetsmäklare Boka tid i min kalender Läs mer om Sofia

Bostad

Ekonomi

Dokument och länkar

previous slide
next slide
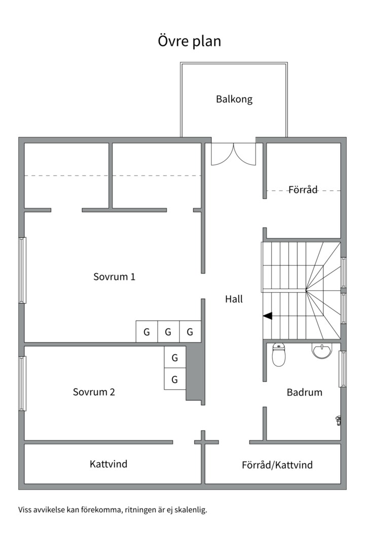
Planlösning från Storgatan 34, Kommande i Heby, Heby
Planlösning från Storgatan 34, Kommande i Heby, Heby
Planlösning från Storgatan 34, Kommande i Heby, Heby
Intresseanmälan

Anmäl dig här

Du som är intresserad av den här bostaden får gärna lämna dina kontaktuppgifter här. Då kan jag höra av mig till dig med uppdateringar kring bostaden, och du riskerar inte att missa nåt.

Räkna ut boendekostnad

bg

Ska vi ses hemma hos dig?

Nya tider skapar nya möjligheter. Du kanske går i försäljningstankar, eller så funderar du på vad din bostad är värd. Oavsett om du har planer på att sälja din bostad eller bara är nyfiken på värdet kan du ta hjälp av våra mäklare. Vi värderar ditt hus, din lägenhet, sommarstuga eller fastighet. Antingen hemma hos dig eller digitalt. Klicka på länken och fyll i formuläret så kontaktar vi dig för ett förutsättningslöst möte.

Värdering av din bostad