Till salu
Besiktigad

Bäckby, Västerås

Stångjärnsgatan 1

Bäckby, Västerås

Stångjärnsgatan 1

Nästa visning
calendar icon tisdag 14 april 17:00 - 17:30
calendar icon Nästa visning
tisdag 14 april 17:00 - 17:30
price tag icon Pris
1 795 000 kr
Bostadstyp
Radhus
rooms and are icon Antal rum
4 rum
area icon Boarea
125 m2
area icon Tomtarea
164 m2
calendar icon Byggnadsår
1970
Stångjärnsgatan 1

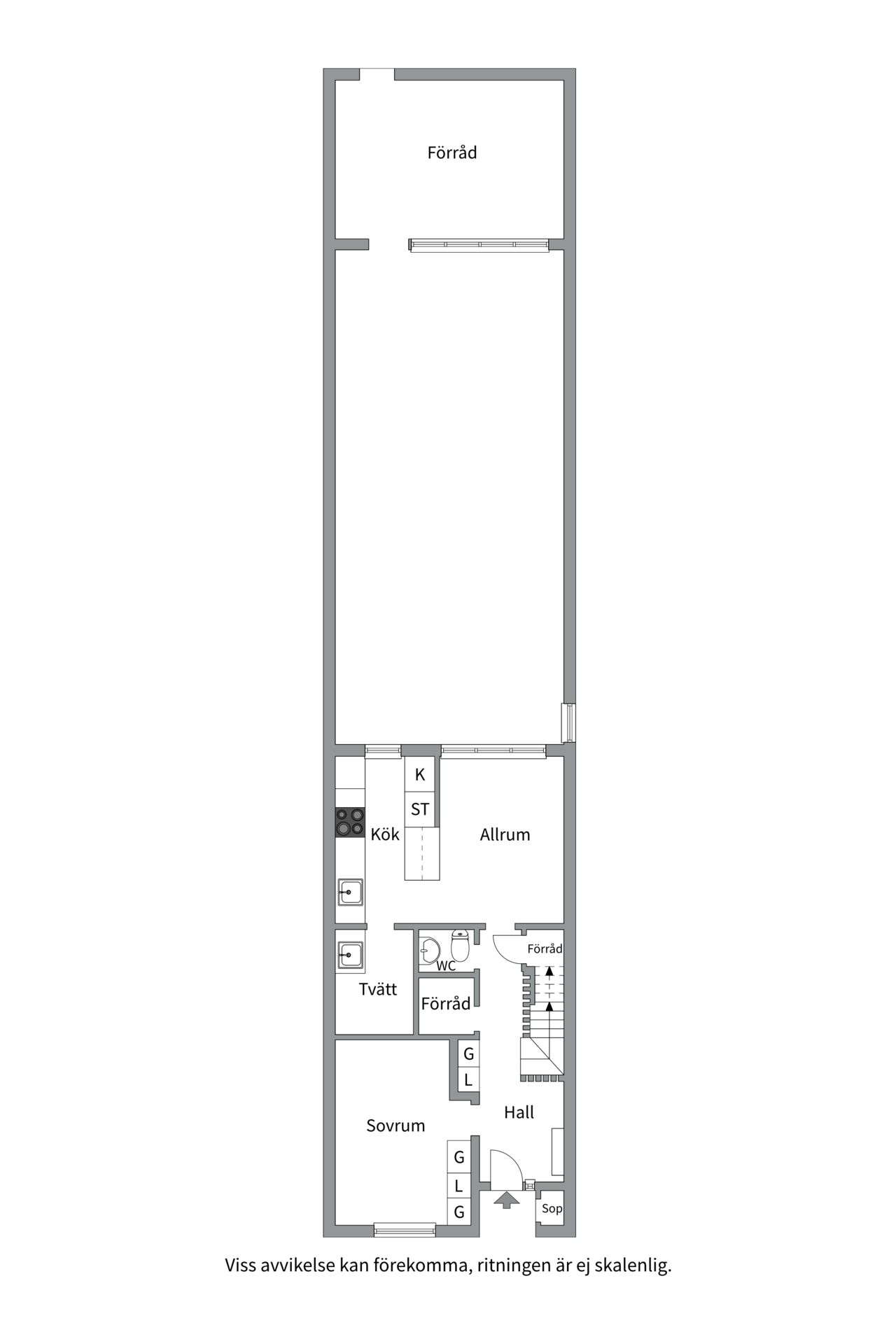
Gavelradhus!

Bostaden fördelar sig över en inbjudande hall med plats för avhängning, ett sovrum med garderober, en gäst-toalett, ett förråd, en tvättstuga, ett kök med tillhörande matplats samt med utgång till en trevlig uteplats. Från uteplatsen nås förrådet och garaget. Övervåningen består av ett rymligt vardagsrum som går att dela av till två sovrum vid behov, ett helkaklat badrum, två sovrum och balkong.

Till bostaden hör både garage och parkeringsplats, vilket skapar en smidig och bekväm vardag. Den privata uteplatsen fungerar som en naturlig förlängning av hemmet och ger en trivsam plats för både avkoppling och umgänge under årets varmare månader.

Läget är praktiskt och familjevänligt med närhet till både skola och förskola, vilket förenklar vardagens logistik. I närområdet finns även dagligvarubutik, fotbollsplan samt goda bussförbindelser som gör det enkelt att ta sig vidare till övriga delar av staden.

Här bor du i ett tryggt och lättskött boende där det mesta som behövs i vardagen finns inom bekvämt räckhåll.

Visningar

Föranmälan krävs via Widerlövs hemsida. Välkommen! tisdag 14 april, 17:00 - 17:30
Anmäl mig
Zain Turfi
Ansvarig mäklare

Zain Turfi

Fastighetsmäklare, franchisetagare Fri värdering Läs mer om Zain

Bostad

Ekonomi

Dokument och länkar

Räkna ut boendekostnad

bg

Ska vi ses hemma hos dig?

Du kanske går i försäljningstankar, eller så funderar du på vad din bostad är värd. Oavsett om du har planer på att sälja din bostad eller bara är nyfiken på värdet kan du ta hjälp av våra mäklare. Vi värderar ditt hus, din lägenhet, sommarstuga eller fastighet. Antingen hemma hos dig eller digitalt. Klicka på länken och fyll i formuläret så kontaktar vi dig för ett förutsättningslöst möte.

Värdering av din bostad