Logga in
Välkommen till Widerlöv. Logga in för att fortsätta.
Det tar bara några sekunder.
- Starta BankID-appen på din mobil eller surfplatta
- Klicka på QR-koden
- Skanna QR-koden nedan, med BankID-appen
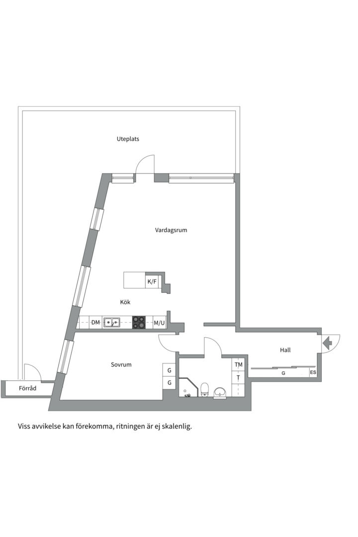
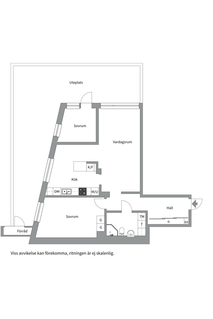
Välkommen till denna charmiga 2:a med ca 3 meters takhöjd, bra planlösning och stor terrass om ca 50 kvm! Här finner ni ett modernt boende i historisk miljö, med närhet till både naturen och till city.
- Unikt objekt sällan till salu
- Radhuskänsla med fantastisk terrass om ca 50 kvm inramad av en underbar grönska
- Insynskyddad
- Mycket goda kommunikationer (buss och SL-båt)
- Fint ljusinsläpp i och med tilltagen takhöjd, hörnläge och generösa fönsterpartier
- Fint skick och stora sociala ytor
- Mycket bra förvaringsmöjligheter
- Tvättmaskin och torktumlare i lägenheten
- Gästlägenhet i samma trappuppgång
- Välskött förening med god ekonomi
- Garage med anslutning via hiss från fastigheten. Finns lediga platser (med eller utan el).
- Bra förskolor, skolor och lekparker inom gångavstånd
- Ca 20 min gångavstånd till Nytorget/Södermalm
- Ca 15 minuter till Nybroplan med båt via Stockholms inlopp
- Närhet till vatten, natur och city
- Flexibelt tillträde
En bostad på 78 kvm erbjuder gott om utrymme, och möjligheten att göra om den från en tvåa till en trea kan ytterligare öka funktionaliteten. Högt i tak skapar en rymlig och luftig känsla i lägenheten i souterrängplan. Bostaden erbjuder ett modernt socialt kök med gott om förvaring. Badrummet i ljust kakel har golvvärme och egen tvättdel med tvättmaskin och torktumlare. Sovrummet är väl tilltaget med plats för övrigt möblemang. Lägenheten erbjuder mycket goda förvaringsmöjligheter i form av inbyggda garderober med Elfa-system i hallen och till lägenheten hör också dubbla förråd (källarförråd och uteförråd).
Lägenhetens absoluta höjdpunkt är ändå terrassen om ca 50 kvm med insynsskyddande grönska och avskilt läge. Terrassen erbjuder stora sällskapsytor eller ett privat och avkopplande utomhusutrymme och extra rum på sommarhalvåret. Här har ni möjlighet att inreda med utemöbler som matplats och loungegrupp, grill, solstolar för att skapa en bekväm och inbjudande atmosfär. Under sommarsäsong har man både lunchsol och eftermiddags- / kvällssol.
Här bor du i en mycket välskött förening med god ekonomi. Här finns också tillgång till faciliteter som gästlägenhet, bastu samt tvättstuga.
I Saltsjökvarn bor du med innerstan runt ena knuten och skärgården runt den andra. I denna marina idyll har du nära till det mesta med Stockholms kanske bästa läge. Längs kajen finner du ett promenadstråk med vy över Stockholms inlopp och Djurgården. Här finner du också Boule & Berså samt populära Elite Hotel med frukostbuffé, trevliga restaurangen SQ och spa i Sturebadets regi. Inom gång- och cykelavstånd når du enkelt såväl Hammarby Sjöstad och Sickla som östra Södermalm och Kvarnholmen. Området bjuder på goda kommunikationer i form av olika busslinjer b la mot Nacka/Värmdö, Saltsjöbaden och Slussen. Saltsjöbanan har länkats samman med Tvärbanan vid Sickla station. Nere vid kajen tar du enkelt båten (SL) till Djurgården, Nybroplan och Frihamnen eller Lidingö.
Nya tider skapar nya möjligheter. Du kanske går i försäljningstankar, eller så funderar du på vad din bostad är värd. Oavsett om du har planer på att sälja din bostad eller bara är nyfiken på värdet kan du ta hjälp av våra mäklare. Vi värderar ditt hus, din lägenhet, sommarstuga eller fastighet. Antingen hemma hos dig eller digitalt. Fyll i formuläret så kontaktar vi dig för ett förutsättningslöst möte.
Fyll i formuläretNya tider skapar nya möjligheter. Du kanske går i försäljningstankar, eller så funderar du på vad din bostad är värd. Oavsett om du har planer på att sälja din bostad eller bara är nyfiken på värdet kan du ta hjälp av våra mäklare. Vi värderar ditt hus, din lägenhet, sommarstuga eller fastighet. Antingen hemma hos dig eller digitalt. Klicka på länken och fyll i formuläret så kontaktar vi dig för ett förutsättningslöst möte.
Värdering av din bostad