Om föreningen BRF Gourmet
Bostadsrättsförening.
I föreningen finns 114 lägenheter.
Bostadsrättsföreningen Gourmet uppför 114 stycken lägenheter på fastigheten. Föreningen äger fastigheten Gångaren 23 sedan 2022-05-31, med adress Sankt Göransgatan 143F. Fastigheten är belägen i Stadshagen, Kungsholmen i Stockholm.
Detta projekt är ett av få som är certifierat både med Svanen och NollCO2 som innebär att all CO2 som går åt för att bygga huset skall återbetalas. Certifieringarna täcker både materialval och klimatsmarta lösningar, mycket bra energiprestanda (75% av kraven för nyproduktion) med värmeväxlare, värmeåtervinning från spillvatten, solfångare och solceller på taket.
Bostadsrättsföreningen Gourmet, org.nr 769640–0188 har sitt säte i Stockholms stad och har till ändamål att främja medlemmarnas ekonomiska intressen genom att upplåta bostadslägenheter och lokaler till nyttjande i föreningens hus, utan tidsbegränsning. Upplåtelsen får även omfatta mark som ligger i anslutning till föreningens hus, om marken ska användas som komplement till bostadslägenhet eller lokal.
Bostadsrättsföreningen Gourmet registrerades hos Bolagsverket den 27:e maj 2021.
Bostadsfastigheten är en 2D fastighet uppförd med en huskropp i 9 våningsplan + källare i en tredimensionell fastighetsbildning där delar av byggnaden, i källarplan, entréplan (våning 0) och våning 1, genom en 3D urgröpning kommer att tillhöra en annan fastighetsägare. Den gemensamma grundläggningen och byggnadskonstruktioner är inrättad i en gemensamhetsanläggning. Bostadsrättsföreningen har tecknat ett totalentreprenadavtal med Skanska.
Den avtalade färdigställande tiden för Brf Gourmet är maj 2025.
Fastighetsbeteckning: Gångaren 23
Adress: Sankt Göransgatan 143F, Kungsholmen, Stockholm
Bruttototalarea (BTA): 6 472 kvm ljus BTA och 653 kvm mörk BTA
varav lägenhetsarea (BOA): ca 4 432 kvm, mätningen av lägenheterna har gjorts på ritning.
Antal bostadslägenheter: 114
Ägarstatus: Äganderätt
Antal byggnader: 1
Servitut: Servitut – både last och förmån - samt med nyttjanderätt till gemensam gård. Se mer om servitut på 3.14
Värdeår: 2024, se 6.3 3.2 Kortfattad beskrivning av byggnad och kvarter
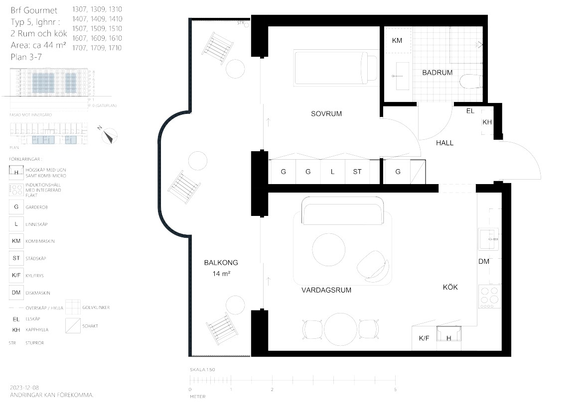
Bostadsrättshuset består av 114 lägenheter fördelade på sju våningar med 1 rok och 2 rok i flera olika
utföranden. Samtliga 114 lägenheter har balkong eller terrass samt tillgång till gemensam takterrass.
Lägenheterna är hållbara "livsstilsbostadsrätter" byggda huvudsakligen av trä, vilket innebär yteffektiva
bostäder med en hög andel delade resurser.
Medlemsskap i Greenhouse Sthlm krävs för att kunna nyttja kvarterets tjänsteutbud. Detta medlemsskap kostar inget, men kostnad för medlemsskap i Pool & fitness tillkommer. Läs mer under rubrik "Information månadsavgift".
När är det inflyttning?
De två sista veckorna i maj 2025. Men om köparen så önskar går det bra med inflytt även i juni, juli och augusti
utan extra kostnad.
Gemensamma utrymmen
Stor gemensam upphöjd innergård med utegym, utomhuskök, pergola, odlingslotter, gräsmatta och boulebana. I kvarteret finns pool, bastu, gym, conciergeservice, 24/7 trygghetsnummer, bilpool, coworking, café, restaurang. Brfen har därutöver en egen takterrass och ett gemensamt vardagsrum/lounge och kök med stort matbord.
Pris som nu är satt av föreningens interimsstyrelse är enligt nedan, men det kan en senare styrelse ändra på om så önskas:
Lounge 300 kr/4h
Kök 300 kr/4h
Tvätt = 100 kr/2h
Tv och bredband
Grundutbud av TV-kanaler ingår i avgiften.
Föreningen har anslut sig till Telia öppen fiber och varje lägenhet har utrustats med tv-box hårdvara. Med Telia Öppen fiber har de boende valfriheten att själva välja vem som ska leverera tv, bredband och telefoni och kan plocka ihop ett utbud som passar en själv. Priset för abonnemanget beror på
vilket paket man som boende väljer.
Ekonomi och juridik
Information från föreningen om avgiften och eventuella ändringar:
Föreningen kommer ha lån på 13 000 kr per kvadratmeter bostadsyta vilket innebär cirka 58 miljoner kronor. I ekonomisk plan (som är föreningens budget för år 1-16) ligger räntan på 3,5% vilket enligt våra intygsgivare är en rimlig räntenivå på lång sikt. Föreningen ska sedan inför tillträde placera lånen i bank och då kommer man få en verklig ränta. Det är föreningens styrelse kring tillträde som beslutar om var och hur lånen ska placeras. Men som sagt föreningen har tagit höjd för en långsiktig genomsnittsränta på 3,5 % och den ekonomiska planen är i balans med den räntan.
Tillåter föreningen juridisk person som köpare? Ja
Äger föreningen marken? Ja
Tillåter föreningen delat ägande? Ja
Andrahandsuthyrningspolicy: Andrahandsupplåtelse utan särskilt tillstånd av styrelsen kommer att tillåtas i upp till 90 dagar per år under förutsättning att kvarterets uthyrningsservice nyttjas. Hyr bostadsrättsinnehavaren ut lägenheten via andra kanaler krävs godtagbara skäl för upplåtelse samt styrelsens godkännande. En avgift kommer att tas ut av föreningen för hantering och godkännande av dessa uthyrningar. För uthyrning mer än 90 dagar kommer alltid ett tillstånd av styrelsen att behöva inhämtas.