Logga in
Välkommen till Widerlöv. Logga in för att fortsätta.
Det tar bara några sekunder.
- Starta BankID-appen på din mobil eller surfplatta
- Klicka på QR-koden
- Skanna QR-koden nedan, med BankID-appen
En kort promenad från hamnens puls återfinns denna luftiga gaveltrea som vänder upp mot tre väderstreck.
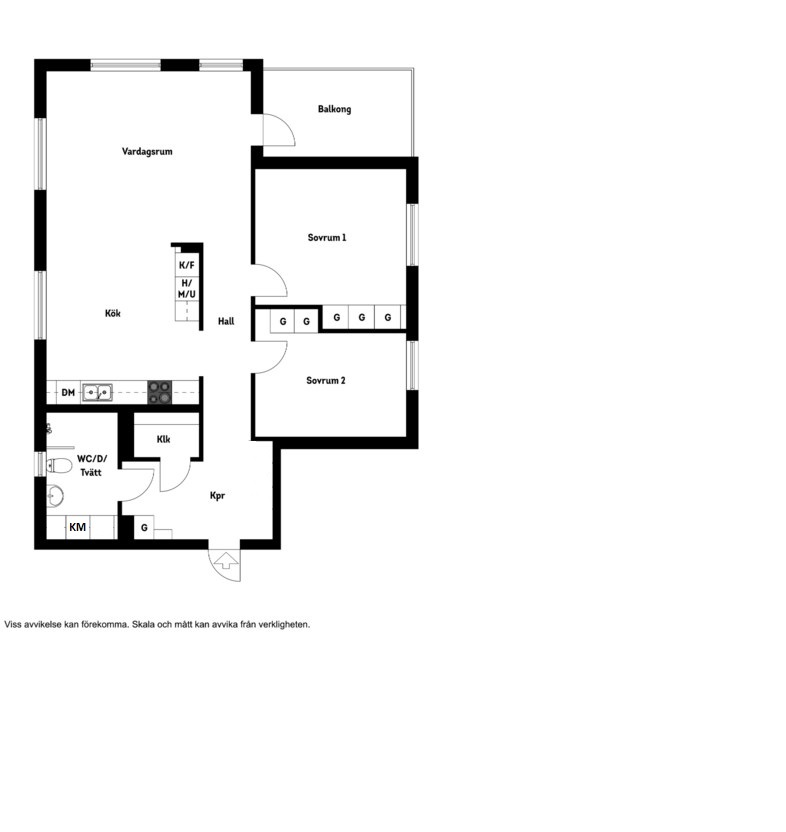
Lägenheten genomsyras av ljusa ytskikt med nyligen renoverade ytskikt inklusive trägolv behandlade med vitpigmenterad lack. Ljusinsläppet från tre olika väderstreck gör lägenheten ljus oavsett årstid. Härlig inglasad balkong i söder med gott om sol och gott om utrymme för större möblemang. El finns framdraget med möjlighet till infravärme. Läget är lugnt. Runt hörnet återfinns föreningens innergård med lekplats, bänkar och grönska.
Kök, matplats och vardagsrum disponeras i öppen plan gentemot den inglasade balkongen. Via hallen nås lägenhetens två rymliga sovrum som båda har ett rofyllt läge med fönster mot föreningens lugna gård. Lägenheten har gott om förvaring i platsbyggda garderober samt i separat klädkammare. Badrummet disponeras med duschhörna samt bra ytor för klädvård ovan kombimaskin.
Utöver lägenhetens generösa förvaring finns också ett väl tilltaget vindsförråd om 10,5 kvm golvyta.
Brf Berså är en populär, välskött förening i ett trevligt grannskap där man har tillgång till "Villan" en gemensamhetsanläggning med mötes/festlokal, bastu och övernattningsrum. Du har tillgång till parkering i carport i anslutning till innergården med möjlighet till högeffektladdning av elbil!
Här bor du omgiven av grönska, skärgårdskänsla med tillgång till hav och sjö, samtidigt med närhet till skola, förskola, mysiga caféer, trevliga restauranger och butiker.
Busshållplats med direktbussarna som tar dig smidigt in till Slussen eller Cityterminalen på bara 25 min har ni precis intill byggnaden. Även bussar till Medborgarplatsen. Under sommarhalvåret kan man även åka båt till/från Slussen. Gustavsberg befinner sig fortfarande i en spännande utvecklingsfas. Det historiska gamla fabriksområdet har nu blivit till en levande stadsdel där fabrikens historia är synlig för invånare och besökare då industriarkitekturen bevaras.
I Gustavsbergs Hamn, ett par minuters promenad från lägenheten finns matbutiker men även småbutiker, café och restaurang och flertal outlets med glas, keramik och porslin. Ytterligare några minuter bort finns Gustavsbergs Centrum och de större köpcentrumen Värmdö marknad och Värmdö Köpcentrum med ett 70-tal butiker. Vid Gustavsbergs centrum som är knutpunkten med sin bussterminal finner du idag bland annat matbutik, blomster och presentbutik, skönhetsvård, bibliotek, bio och teater, bank, apotek, gym, systembolag och även äventyrsbadet - Gustavsbergsbadet och flera andra idrottsanläggningar.
Den gamla bruksorten Gustavsberg är huvudorten på Värmdö som ligger mitt i Stockholms skärgård och är välkänd för sin konsthistoria och porslinstillverkning som började för över 100 år sedan. För att ytterligare berika området ges även plats för nya restauranger, verksamhetslokaler och parker. I Porslinskvarteren bor du med närhet till skola och förskola runt husknuten. Expansionen rymmer också ett aktivt båtliv, på Kattholmen Position: 59°19,46 N 18°22,58, sjökort 6142 SE, finns ett marint centrum med en ny gästhamn, minigolf, aftersail samt en populär restaurang. Flerbostadshus och radhus skapar tydliga kvarter med en mysig känsla och ett lummigt parkstråk binder samman kvarteret med hamnen.
Närheten till vatten med både sjö och havsbad och storslagen natur är påtaglig. Promenad- och joggingstigar i både skog och längs havet finns runt hörnet. Gustavsberg har växt upp kring den stora porslinsfabriken som ligger vid hamnen i en av Baggensfjärdens vikar. Porslinskvarteren andas kreativitet och skaparglädje från forma tider och en kulturell miljö genomsyrar kvarteren.
Nya tider skapar nya möjligheter. Du kanske går i försäljningstankar, eller så funderar du på vad din bostad är värd. Oavsett om du har planer på att sälja din bostad eller bara är nyfiken på värdet kan du ta hjälp av våra mäklare. Vi värderar ditt hus, din lägenhet, sommarstuga eller fastighet. Antingen hemma hos dig eller digitalt. Fyll i formuläret så kontaktar vi dig för ett förutsättningslöst möte.
Fyll i formuläretNya tider skapar nya möjligheter. Du kanske går i försäljningstankar, eller så funderar du på vad din bostad är värd. Oavsett om du har planer på att sälja din bostad eller bara är nyfiken på värdet kan du ta hjälp av våra mäklare. Vi värderar ditt hus, din lägenhet, sommarstuga eller fastighet. Antingen hemma hos dig eller digitalt. Klicka på länken och fyll i formuläret så kontaktar vi dig för ett förutsättningslöst möte.
Värdering av din bostad