Logga in
Välkommen till Widerlöv. Logga in för att fortsätta.
Det tar bara några sekunder.
- Starta BankID-appen på din mobil eller surfplatta
- Klicka på QR-koden
- Skanna QR-koden nedan, med BankID-appen
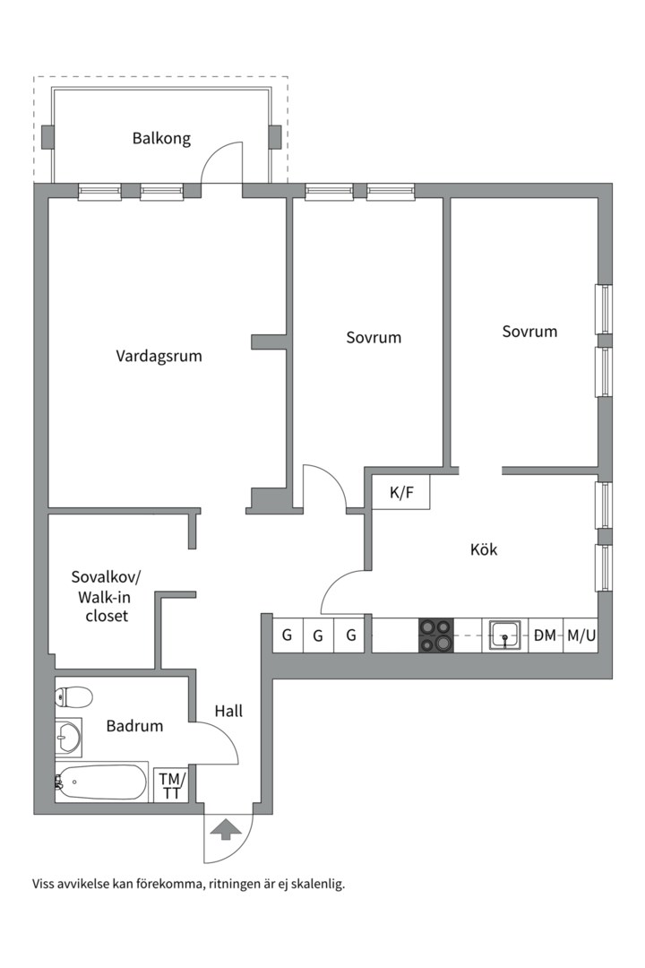
Här presenteras en av de bästa 81 kvm i Orminge!
- Genomgående renoverad med alla rätt!
- Balkong utan insyn med rogivande utsikt i söderläge
- Möjlighet att bygga en uteplats nedanför balkongen - perfekt för att grilla!
Här bor man i en riktigt fin lägenhet som passar de flesta behov, både den lilla och stora familjen. Bostaden genomsyras av fina materialval som blandas med stilrena färger. Här erbjuds två rymliga sovrum och ett förråd som även kan användas som sovalkov efter behov. Modernt kök med komplett utrustning, rymligt vardagsrum med anslutande balkong ut mot baksidan och grönska. Här finns även möjlighet att bygga en egen uteplats med plats för grill och annat möblemang.
Utanför lägenheten finns flertalet naturområden, busshållplats, skolor och parkstråk. Orminge centrum finns även på kort gångavstånd med stort utbud av affärer, matbutiker, gym och flertalet avgångar med buss.
Kontakta mäklaren för mer information och varmt välkommen på visning!
Du kanske går i försäljningstankar, eller så funderar du på vad din bostad är värd. Oavsett om du har planer på att sälja din bostad eller bara är nyfiken på värdet kan du ta hjälp av våra mäklare. Vi värderar ditt hus, din lägenhet, sommarstuga eller fastighet. Antingen hemma hos dig eller digitalt. Fyll i formuläret så kontaktar vi dig för ett förutsättningslöst möte.
Fyll i formuläretDu kanske går i försäljningstankar, eller så funderar du på vad din bostad är värd. Oavsett om du har planer på att sälja din bostad eller bara är nyfiken på värdet kan du ta hjälp av våra mäklare. Vi värderar ditt hus, din lägenhet, sommarstuga eller fastighet. Antingen hemma hos dig eller digitalt. Klicka på länken och fyll i formuläret så kontaktar vi dig för ett förutsättningslöst möte.
Värdering av din bostad