Logga in
Välkommen till Widerlöv. Logga in för att fortsätta.
Det tar bara några sekunder.
- Starta BankID-appen på din mobil eller surfplatta
- Klicka på QR-koden
- Skanna QR-koden nedan, med BankID-appen
Fint kedjehus på familjevänliga Fiskarhöjden i Saltsjöbaden med kamin, uteplats och egen innergård!
- Kamin
- 4 sovrum
- Bilfri gata
- Två badrum
- Friköpt tomt
- Potentiell uthyrningsdel
- 2 parkeringsplatser utan månadskostnad
Varmt välkomna till ett fantastiskt kedjehus med uteplats, egen innergård och kamin! Här bor du nära naturreservat och vatten, utan att på något sätt tumma på närheten till stan med bil eller dess goda kommunikationer som erbjuds. På Fiskarhöjden får du två fasta parkeringsplatser, ena ute och andra i garage. På en kort promenad når du marina, naturreservat, golfbana, buss och tåg.
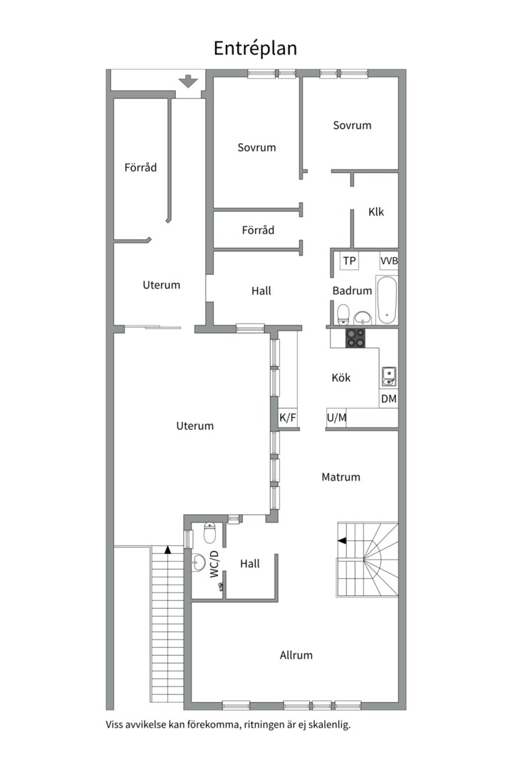
Här välkomnas du av en trevlig framsida med planteringar och kvällssol. Entréplan med öppna sociala ytor över matplats och vardagsrum samt en mer privat sovdel. Det bevarade köket är fullt utrustat maskinellt med maskiner som bytts ut över tid samt goda förvaringsmöjligheter och praktiska arbetsytor. Vidare från köket finner vi bostadens väl tilltagna vardagsrum med plats för hela familjen och milsvid utsikt över trädtopparna. Vardagsrummet förlängs av en stor innergård i söderläge med sol hela dagen som delvis är täckt av tak. Här finner vi gott om plats för umgänge och plantering. Det första lilla badrum med dusch som nås både från vardagsrummet eller genom separat ingång utifrån. Två stora sovrum som är mycket lättmöblerade med stor säng, skrivbord förvaring. Bostadens andra helkaklade badrum ligger beläget i anslutning till hallen som också är utrustad med tvättmaskin och torktumlare. Stort förråd och en walk in closet.
På soutterängplan finner vi idag två sovrum samt walk-in closet. Båda sovrummen med gott om plats för säng, förvaring och skrivbord. Utanför har vi en stor insynsskyddad japansk trädgård som idag är stenbelagd men möjligt att lägga gräs, perfekt för ytterligare plantering, solning eller lekyta för barn.
Långrevsgatan på Fiskarhöjden är ett barnvänligt, bilfritt område som förutom närheten till bad, Baggensfjärden och Saltsjöbadens golfbana (ca 1 km) har förskolor inom området och ca 10 min cykelväg till t.ex. Viktor Rydbergs skola. Saltsjöbaden har ett aktivt friluftsliv med tennisbanor, tennishall, slalombacke, gym, simhall, fotbollsplaner, ishockeyhall och möjlighet till gymnastik, balett, sjöscouting etc. Här finns även KSSS, Sveriges största och äldsta segelsällskap med möjlighet till kappsegling, träning, utbildning, eskaderseglingar, matchracing och klubbaktiviteter.
Nya tider skapar nya möjligheter. Du kanske går i försäljningstankar, eller så funderar du på vad din bostad är värd. Oavsett om du har planer på att sälja din bostad eller bara är nyfiken på värdet kan du ta hjälp av våra mäklare. Vi värderar ditt hus, din lägenhet, sommarstuga eller fastighet. Antingen hemma hos dig eller digitalt. Fyll i formuläret så kontaktar vi dig för ett förutsättningslöst möte.
Fyll i formuläretNya tider skapar nya möjligheter. Du kanske går i försäljningstankar, eller så funderar du på vad din bostad är värd. Oavsett om du har planer på att sälja din bostad eller bara är nyfiken på värdet kan du ta hjälp av våra mäklare. Vi värderar ditt hus, din lägenhet, sommarstuga eller fastighet. Antingen hemma hos dig eller digitalt. Klicka på länken och fyll i formuläret så kontaktar vi dig för ett förutsättningslöst möte.
Värdering av din bostad