Logga in
Välkommen till Widerlöv. Logga in för att fortsätta.
Det tar bara några sekunder.
- Starta BankID-appen på din mobil eller surfplatta
- Klicka på QR-koden
- Skanna QR-koden nedan, med BankID-appen
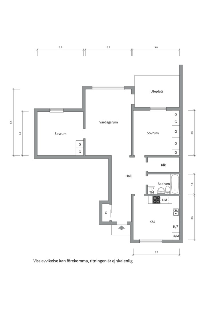
Välkommen till denna mycket fina och ljusa lägenhet med egen ingång och radhuskänsla. Trevlig uteplats med trädäck och skön dag- och eftermiddagssol. Här bor ni på en lugn och barnvänlig gård nära flera lekplatser, förskola, skolor och mataffärer. Närhet har ni även till fina naturmiljöer, koloniträdgårdar samt skid- och motionsspår i Hågadalen. Goda parkeringsmöjligheter inom föreningen. Bostadsrättsinnehavaren nyttjar ett förråd i förrådslänga.
Lägenheten har genomgående askparkettgolv. Planlösningen ger er entré/hall med förvaring och ett badrum med badkar, tvättmaskin och torktumlare. Vidare får ni här kök med bra matplats, två bra sovrum och ett rejält vardagsrum med utgång till uteplatsen.
Mycket populär och välskött förening med en trevlig och lugn gårdsmiljö med cykelbanor och bilfria gångvägar. Bra busskommunikationer mot City.
Varmt välkommen att boka din visningstid!
Nya tider skapar nya möjligheter. Du kanske går i försäljningstankar, eller så funderar du på vad din bostad är värd. Oavsett om du har planer på att sälja din bostad eller bara är nyfiken på värdet kan du ta hjälp av våra mäklare. Vi värderar ditt hus, din lägenhet, sommarstuga eller fastighet. Antingen hemma hos dig eller digitalt. Fyll i formuläret så kontaktar vi dig för ett förutsättningslöst möte.
Fyll i formuläretNya tider skapar nya möjligheter. Du kanske går i försäljningstankar, eller så funderar du på vad din bostad är värd. Oavsett om du har planer på att sälja din bostad eller bara är nyfiken på värdet kan du ta hjälp av våra mäklare. Vi värderar ditt hus, din lägenhet, sommarstuga eller fastighet. Antingen hemma hos dig eller digitalt. Klicka på länken och fyll i formuläret så kontaktar vi dig för ett förutsättningslöst möte.
Värdering av din bostad