Logga in
Välkommen till Widerlöv. Logga in för att fortsätta.
Det tar bara några sekunder.
- Starta BankID-appen på din mobil eller surfplatta
- Klicka på QR-koden
- Skanna QR-koden nedan, med BankID-appen
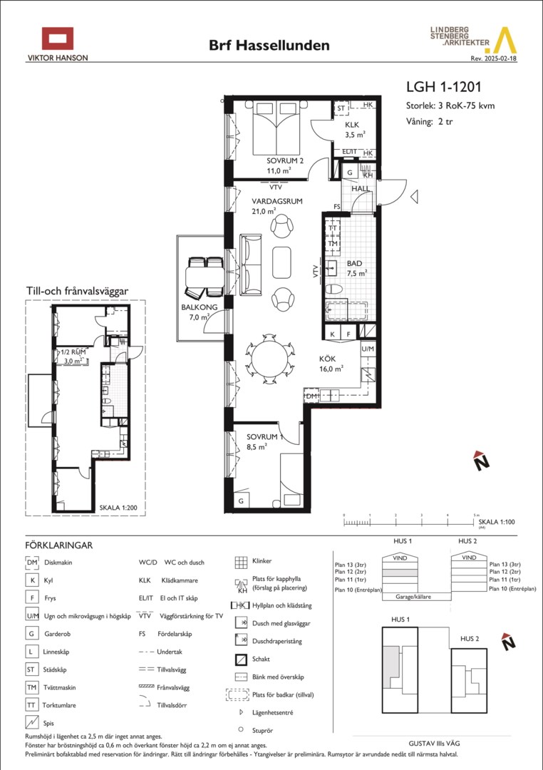
Välkommen till denna stilrena trerummare om 75 kvm, med en underbart solig och västvänd balkong. Här får du ett modernt boende med en rymlig balkong, perfekt för att njuta av långa sommarkvällar. Preliminär inflyttning kvartal 4 2026. Missa inte chansen att påverka inredningen i din bostad.
Vid entrén möts du av en välkomnande hall med gott om plats för avhängning och stilrena förvaringslösningar. Hallen leder dig vidare in i bostaden och skapar en luftig och inbjudande känsla.
Det moderna köket har exklusiva materialval och är utrustat med vitvaror i hög standard. Här finns gott om arbetsytor och smarta förvaringslösningar. Köket ligger i öppen planlösning mot vardagsrummet, vilket ger gott om utrymme för både soffgrupp och matplats, en perfekt yta för umgänge.
Lägenheten har två sovrum som vetter med fönster i väst, båda med bra förvaring och det största sovrummet har en praktiska klädkammare.
Det helkaklade badrummet är modernt och smakfullt inrett med dusch med glasväggar samt tvättmaskin och torktumlare. Badrummet erbjuder en både praktisk och avkopplande miljö för vardagens alla behov.
Balkongen i västerläge är lägenhetens pärla, här kan du kan njuta av eftermiddags- och kvällssolen. Här finns plats för sittgrupp och växter, vilket gör den till en idealisk plats för avkoppling och trivsel i en lugn och grönskande miljö.
Inredningsstilen förenar tidlös elegans med genomtänkta materialval. Med en sober färgpalett och naturinspirerade detaljer skapas en lugn och balanserad atmosfär.
Här har du tillgång till natursköna grönområden, bra skolor och ett brett utbud av service och butiker. Med Mälarens vatten och Brommaplan i närheten är detta en perfekt plats för en bekväm vardag och aktiv livsstil.
På Gustavs III:s väg i charmiga Olovslund utvecklar Byggnadsfirman Viktor Hanson projektet Hassellunden som består av totalt 32 bostadsrättslägenheter om 2-5 rum och kök fördelat på två hus. Ett fåtal bostäder kvar till salu i projektet!
Klicka vidare här nedan för att komma till projekthemsidan och se vilka bostäder som finns till salu;
Du kanske går i försäljningstankar, eller så funderar du på vad din bostad är värd. Oavsett om du har planer på att sälja din bostad eller bara är nyfiken på värdet kan du ta hjälp av våra mäklare. Vi värderar ditt hus, din lägenhet, sommarstuga eller fastighet. Antingen hemma hos dig eller digitalt. Fyll i formuläret så kontaktar vi dig för ett förutsättningslöst möte.
Fyll i formuläretDu kanske går i försäljningstankar, eller så funderar du på vad din bostad är värd. Oavsett om du har planer på att sälja din bostad eller bara är nyfiken på värdet kan du ta hjälp av våra mäklare. Vi värderar ditt hus, din lägenhet, sommarstuga eller fastighet. Antingen hemma hos dig eller digitalt. Klicka på länken och fyll i formuläret så kontaktar vi dig för ett förutsättningslöst möte.
Värdering av din bostad