Logga in
Välkommen till Widerlöv. Logga in för att fortsätta.
Det tar bara några sekunder.
- Starta BankID-appen på din mobil eller surfplatta
- Klicka på QR-koden
- Skanna QR-koden nedan, med BankID-appen
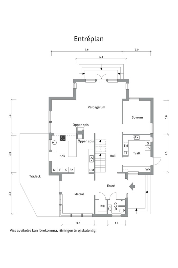
Välkommen till denna rymliga familjevilla i mycket fint skick, varsamt ombyggd och tillbyggd år 2004 för att skapa en modern och funktionell bostad. Här möts du av en öppen planlösning med stora sällskapsytor, idealiska för både familjeliv och sociala sammanhang. Det genomgående ljusa trägolvet tillsammans med det fina ljusinsläppet och den harmoniska ljusa färgsättningen skapar en stilren och hemtrevlig atmosfär i hela huset. Här får du även tre eldstäder fördelade på båda våningsplanen.
Villan erbjuder gott om sovrum som ger plats för hela familjen, samt flera möjligheter till arbets- eller hobbyrum. Från huset når du ett stort trädäck med skön eftermiddags- och kvällssol, perfekt för långa sommarkvällar. Dessutom finns en mysig balkong mot grönskan där ni kan njuta av morgonsolen. Upphöjd trädgårdstomt med stensatta gångar, gräsytor, planteringar och äppleträd. I pergolan finner du också de fruktbärande vinrankorna. Fiberansluten fastighet.
På tomten finns ett fristående enbilsgarage med varmbonat förråd – perfekt för förvaring och extra arbetsyta. Denna villa erbjuder ett unikt tillfälle att få ett hem i toppklass där allt är genomtänkt och i utmärkt skick, redo för nya ägare att trivas i många år framöver.
Varmt välkommen att boka din visningstid på Widerlövs hemsida.
Du kanske går i försäljningstankar, eller så funderar du på vad din bostad är värd. Oavsett om du har planer på att sälja din bostad eller bara är nyfiken på värdet kan du ta hjälp av våra mäklare. Vi värderar ditt hus, din lägenhet, sommarstuga eller fastighet. Antingen hemma hos dig eller digitalt. Fyll i formuläret så kontaktar vi dig för ett förutsättningslöst möte.
Fyll i formuläretDu kanske går i försäljningstankar, eller så funderar du på vad din bostad är värd. Oavsett om du har planer på att sälja din bostad eller bara är nyfiken på värdet kan du ta hjälp av våra mäklare. Vi värderar ditt hus, din lägenhet, sommarstuga eller fastighet. Antingen hemma hos dig eller digitalt. Klicka på länken och fyll i formuläret så kontaktar vi dig för ett förutsättningslöst möte.
Värdering av din bostad