Allmän beskrivning
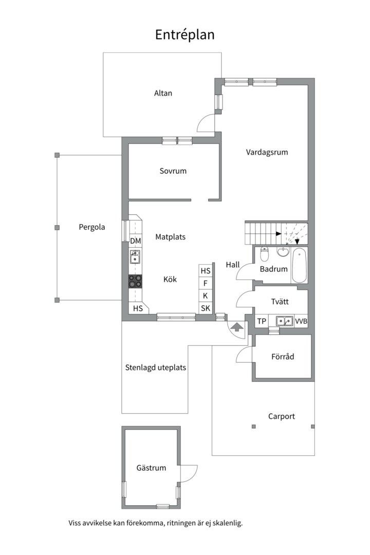
Ljus och luftig entréhall med klinkergolv i varmgrå nyans. Bra ytor för ytterkläder och skor utmed vägg samt i den anslutande tvättstugan.
Vardagsrummet disponeras över öppna ytor i halvöppen planlösning gentemot allrummet vilket skapar utrymme för ett flexibelt utnyttjande av ytorna med gott om plats för mat- och soffgrupp samt loungeavdelning. Ett generöst ljusinsläpp skapar fin kontakt med den lummiga trädgården vilken smidigt nås via altandörren.
Köket bjuder in till matlagning med generösa ytor. Därtill gott om förvaring i skåp och lådor. Köket är uppdaterat med fronter i ljus harmonisk och bänskivor i svart granit. Full maskinell utrustning med induktionshäll, fläkt, diskmaskin, ugn och mikro i högskåp samt dubbla kyl/frysar. Köksön bjuder in till social samvaro samtidigt som den erbjuder bra avlastningsytor samt förvaring in under.
Badrummet är inrett med vitkalkade väggar samt klinker i varmgrå nyans. Här samsas badkar, handfat ovan kommod med granitskiva, spegelskåp samt toalett.
Tvättstugan är praktiskt placerad i direkt anslutning till entrén och inredd med tvättmaskin, torkskåp och varmvattenberedare. Naturligt ljusinsläpp via vädringsfönster.
Allrummet på husets övre plan fungerar som en sluss mellan sovrummen och nyttjas idag som ett extra vardagsrum där man kan dra sig tillbaka för lite avskildhet. Via takluckan nås husets vind.
Föräldrasovrummet är generöst tilltaget med gott om plats för större dubbelsäng och sängbord samt bra klädförvaing i graderobsvägg. Ogenerat läge med ljusinsläpp från öster och utblick över tomt och grönska.
I direkt anslutning återfinns två ytterligare sovrum, ett möjligt försäldrasovrum med ljusinsläpp från öster samt ett något mindre sovrum om ca 7 kvm med ljusinsläpp från väster. Båda rummen har likt föräldrasovrummet ogenerade lägen utan insyn.
Klädkammaren är generös tilltagen med en golvyta om ca 7 kvadrat vilket gör rummet rymligt nog att fungera som sovrum. Läget mot gaveln gör det möjligt att sätta in ett fönster mot norr.
Ägandeinformation
Fastighetsbeteckning Värmdö Haghulta 13:54. Upplåtelseform: Friköpt.
Storlek
5 rum och kök, varav 4 sovrum.
Boarea: 130 kvm. Areakälla/kommentar: Areauppgifter enligt taxeringsinformationen.
Tomt
Trädgårdstomt med plana grönytor inramad av uppvuxen grönska inklusive vindruvor som växer vid pergolan på husets gavel. Tomtarea: 247 kvm.
Uteplats
Uteplatser med skyddade lägen vilka täcker in solens vandring från morgon till sen eftermiddag.
Bilplats
Asfalterad uppfart med carport. I området finns gott om gästplatser.
Byggnadstyp och konstruktion
Byggår: 1987.
Radhus. 2 plans radhus. Besiktigad.
Fasad: Stående träpanel.
Stomme: Trä.
Fönster: 3-glas isoler samt 2+1 glas isoler.
Bjälklag: Trä.
Utvändigt plåtarbete: Målad plåt.
Grundläggning: Armerad betongplatta.
Tak: Betongpannor.
Ventilation: Mekanisk från- och tillluft med värmeåtervinning (FTX).
Renoveringar
2025 - Oljning av golv i kök, vardagsrum och delvis i hall. Byggnation pergola.
2024 - Översyn ventilation inkl. rengöring och injustering. Ny ugn. Ny tvättmaskin.
2023 - Flytt av vägg mellan hall och sovrum 3 samt interiör ommålning.
2022 - Inredning av gästhus. Byggnation av förråd i carport.
2005 - Ny varmvattenberedare.
Renoveringar av tidigare ägare:
2004/2005 - Nytt badrum övre plan.
1998/99 - Nytt kök samt badrum entréplan.
Uppvärmning och energiförbrukning
Uppvärmning: Luftburen värme (el), värmegolv (el).
Energideklaration Utförd 20 oktober 2025. Prestanda/primärenergital: 141 kWh/kvm och år. Energiklass E på en skala från A till G.
TV och bredband
Bredband: TV: TV via koaxialkabelnätverk i vilket Tele2 AB distribuerar ett startutbud av TV. Samfälligheten har träffat ett service- och distributionsavtal med Tele2 AB för detta. De hushåll som önskar fler TV-kanaler, bredband och telefoni kan söka medlemskap i Haghulta Bredbandsförening ek. för., som har ett fördelaktigt gruppavtal med Tele2 AB. Internet: Fiber via Haghulta fiberförening (2700 kr/år för 2025).
Vatten/avlopp
Kommunalt vatten och avlopp.
Övriga byggnader/utrymmen
Gästrum i Isolerat uthus om ca 10 kvm.
Rymligt kallförråd i del av carporten.
Planbestämmelser
Planbestämmelser: Byggnadsplan (1986-04-17)
Övrig information
Vill du få tillgång till all dokumentation om bostaden? Det enklaste är att anmäla ditt intresse eller boka en visning. Då får du tillgång till en digital tjänst som heter Boresan Köpare. Efter att du gjort detta skickas en länk till dig via SMS, där du kan logga in med ditt BankID. I tjänsten hittar du all viktig information om köpprocessen, samt dokument som besiktningsprotokoll, energideklaration och andra relevanta handlingar för just denna bostad. Här kan du även läsa den digitala objektsbeskrivningen, så kallat digispekt, och se eventuella kommande visningstider. Har du frågor om tjänsten eller funderingar kring bostaden är du varmt välkommen att kontakta mäklaren för att få hjälp och svar.