Logga in
Välkommen till Widerlöv. Logga in för att fortsätta.
Det tar bara några sekunder.
- Starta BankID-appen på din mobil eller surfplatta
- Klicka på QR-koden
- Skanna QR-koden nedan, med BankID-appen
Bo i ett av Uppsalas vackraste hus?
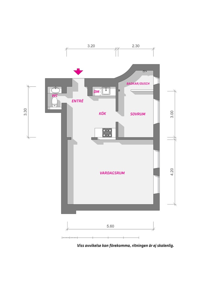
Välkommen till denna mycket tilltalande sekelskifteslägenhet i anrika Bf Port Arthur. I denna ombyggda och påkostade bostad möts historia och modern funktionalitet och design på ett ytterst smakfullt och spännande sätt. Här får ni tidstypiska detaljer såsom trägolv, takhöjd upp till 2,8 m, höga dubbelfönster med djupa fönsternischer men även nutida lösningar som t ex en öppen planlösning och infällda spotlights i taket. De framtagna tegelväggarna med flera infällda nischer skänker bostaden en svårslagen charm. Här bor ni med ett mycket lugnt läge mot föreningens gårdsmiljö. Bostadsinnehavaren nyttjar två rymliga förråd, ett på vinden och ett i källaren.
Planlösningen erbjuder er ett snyggt kök med öppen planlösning mot vardagsrummet med dess fina fönsterpartier. Här får ni även en separat toa samt ett sovrum där ägaren i ena delen har skapat en exklusiv badrumsdel.
Här bor ni i ett av Uppsalas mest välkända bostadshus som 1904 byggdes för att bli bostäder åt personal vid Statens Järnvägar. Härifrån har ni endast någon minuts promenad till Resecentrum, mataffärer och annan service samt ytterligare ett par minuter till den absoluta citykärnan. Välskött och engagerad förening med flera gemensamma utrymmen såsom tvättstugor, övernattningsrum med 4 bäddar, föreningslokal, bastu med relaxavdelning samt grillmöjligheter på innergården.
Varmt välkommen på visning!
Tillträde omgående eller enligt ö.k.
Du kanske går i försäljningstankar, eller så funderar du på vad din bostad är värd. Oavsett om du har planer på att sälja din bostad eller bara är nyfiken på värdet kan du ta hjälp av våra mäklare. Vi värderar ditt hus, din lägenhet, sommarstuga eller fastighet. Antingen hemma hos dig eller digitalt. Fyll i formuläret så kontaktar vi dig för ett förutsättningslöst möte.
Fyll i formuläretDu kanske går i försäljningstankar, eller så funderar du på vad din bostad är värd. Oavsett om du har planer på att sälja din bostad eller bara är nyfiken på värdet kan du ta hjälp av våra mäklare. Vi värderar ditt hus, din lägenhet, sommarstuga eller fastighet. Antingen hemma hos dig eller digitalt. Klicka på länken och fyll i formuläret så kontaktar vi dig för ett förutsättningslöst möte.
Värdering av din bostad