Logga in
Välkommen till Widerlöv. Logga in för att fortsätta.
Det tar bara några sekunder.
- Starta BankID-appen på din mobil eller surfplatta
- Klicka på QR-koden
- Skanna QR-koden nedan, med BankID-appen
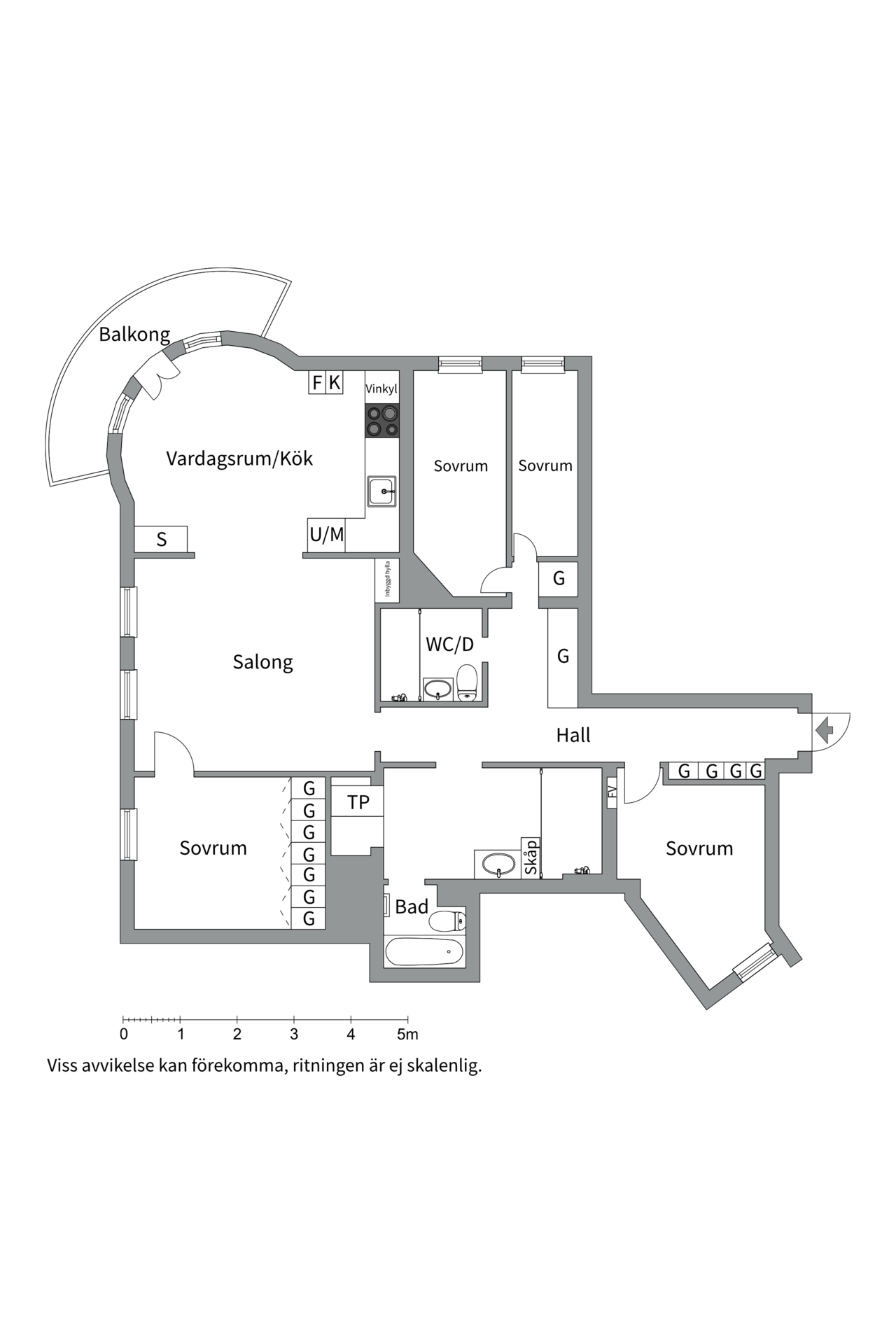
Stilfull sekelskiftesvåning om 136 kvm i mycket fint skick – fyra sovrum, balkong och två exklusiva badrum
I en vacker fastighet från 1903, på våning tre, presenteras denna mycket välplanerade och eleganta bostad om 136 kvm.
Här kombineras sekelskiftescharm med modern komfort i ett hem som erbjuder generösa ytor, genomtänkt planlösning och ett fantastiskt ljusinsläpp.
Det rymliga köket är välutrustat med generösa arbetsytor och har direkt utgång till balkongen, där du bjuds på en fantastisk utsikt över Vasastans takåsar och Gustaf Vasas kyrktorn – en perfekt plats för morgonkaffet eller kvällens avkoppling.
Köket rymmer många middagsgäster!
Vardagsrummet är en inbjudande och trivsam sällskapsyta med gott om plats för både umgänge och vila.
Lägenheten disponeras med fyra sovrum, där master bedroom erbjuder platsbyggda garderober med god förvaring.
De tre övriga sovrummen passar utmärkt som barnrum, gästrum eller hemmakontor och ger stor flexibilitet för familjens behov.
Bostaden har två lyxigt inredda badrum. Det större badrummet är ovanligt rymligt och utrustat med wc, dusch, badkar samt tvättmaskin och torktumlare – utan att kompromissa med rymd eller komfort. Det andra badrummet är stilrent och funktionellt med dusch och wc.
Hallen välkomnar med inbyggda garderober som erbjuder utmärkta förvaringslösningar.
Genomgående vackra golv löper i hela bostaden och bidrar till en harmonisk och sammanhållen känsla.
Ett representativt och funktionellt hem i ett hus med anrik historia, perfekt för familjen som söker både karaktär, rymd och ett attraktivt läge i hjärtat av Vasastan.
Här bor man i ett mer stillsamt område i Vasastan med Odenplans puls precis runt hörnet, samtidigt som Hagaparken med dess välgörande grönska nås med en kort promenad åt andra hållet.
Föreningen är mycket välskött, äger marken, har god ekonomi med goda hyresintäkter och huset är i gott skick.
Ett tryggt boende för framtiden.
I huset ligger Bageri Bergstrands ett av Stockholms bästa fik!
Odenplan är centralt belägen i Vasastan med ett komplett utbud av all tänkbar och nödvändig service så som Stadsbiblioteket, flertalet gym, bagerier, mataffärer samt många trevliga butiker. Här finns flera populära restauranger såsom Tranan, Tennstopet, L'Avventura och ytterst populära Lilla Ego samt trevliga brunchställen som Greasy spoon, Crêperie & Logi och Sthlm Brunch Club.
Utmärkta kommunikationer med flertalet innerstadsbussar, tunnelbanans gröna linje samt Citybanan vid station Odenplan.
Flertalet externa garage finns i området.
Varmt välkommen på visning!
Du kanske går i försäljningstankar, eller så funderar du på vad din bostad är värd. Oavsett om du har planer på att sälja din bostad eller bara är nyfiken på värdet kan du ta hjälp av våra mäklare. Vi värderar ditt hus, din lägenhet, sommarstuga eller fastighet. Antingen hemma hos dig eller digitalt. Fyll i formuläret så kontaktar vi dig för ett förutsättningslöst möte.
Fyll i formuläretDu kanske går i försäljningstankar, eller så funderar du på vad din bostad är värd. Oavsett om du har planer på att sälja din bostad eller bara är nyfiken på värdet kan du ta hjälp av våra mäklare. Vi värderar ditt hus, din lägenhet, sommarstuga eller fastighet. Antingen hemma hos dig eller digitalt. Klicka på länken och fyll i formuläret så kontaktar vi dig för ett förutsättningslöst möte.
Värdering av din bostad