Logga in
Välkommen till Widerlöv. Logga in för att fortsätta.
Det tar bara några sekunder.
- Starta BankID-appen på din mobil eller surfplatta
- Klicka på QR-koden
- Skanna QR-koden nedan, med BankID-appen
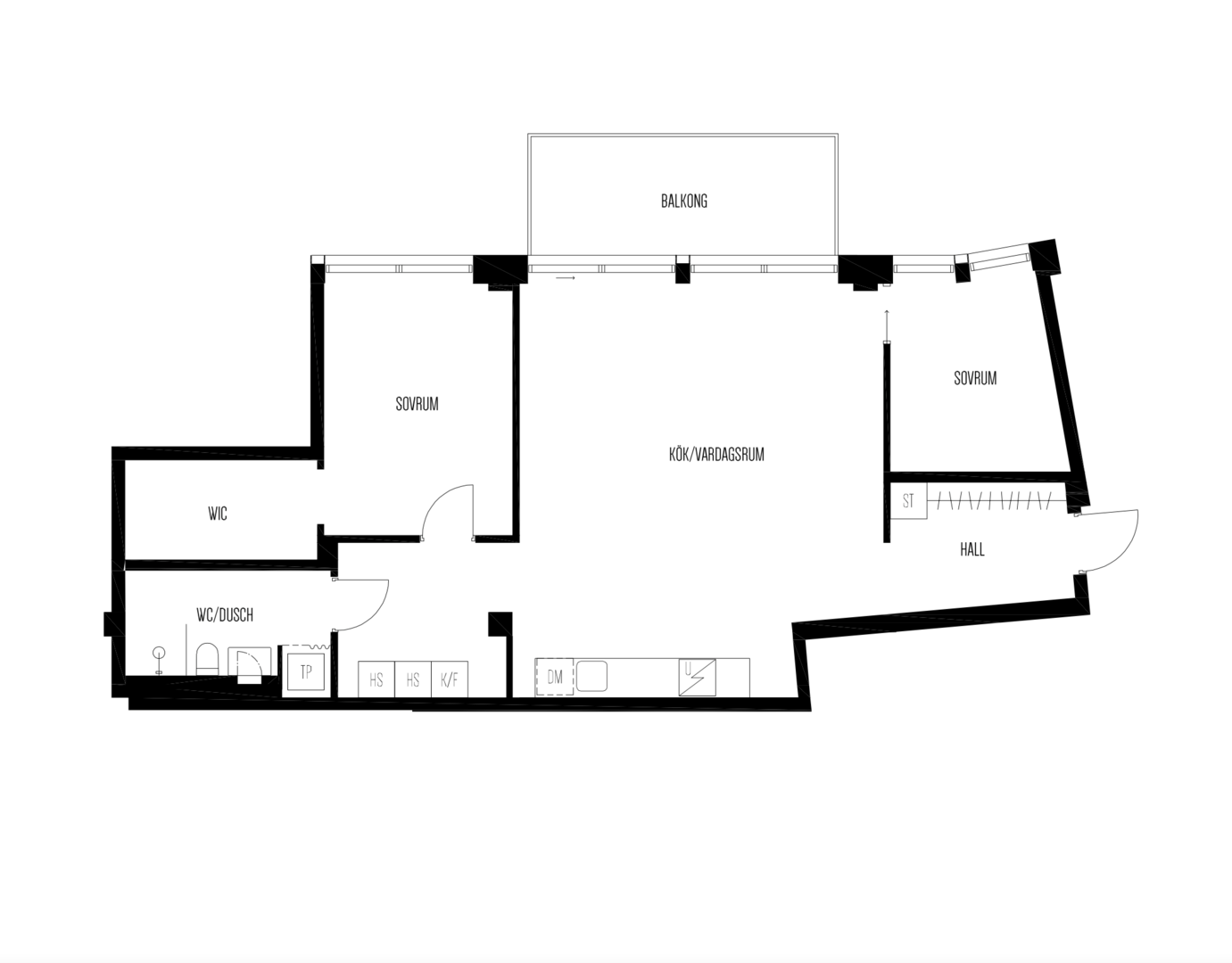
Välkommen till en genomtänkt och exklusiv 3 rok om generösa 90 kvm, belägen i attraktiva Nacka Strand. Ett boende för dig som ställer höga krav på både läge, utsikt och kvalitet. Här bor du med direkt närhet till vatten och grönska samtidigt som Stockholms stadspuls nås på bara några minuter. Från samtliga rum erbjuds en fantastisk havsutsikt som skapar en unik och rofylld atmosfär året om.
Bostaden har en av projektets absolut bästa planlösningar med stora sociala ytor där kök och vardagsrum möts i en öppen och inbjudande helhet. Här finns gott om plats för både vardagsliv och umgänge, med generös takhöjd om 2,7 meter samt stora fönsterpartier från golv till tak som släpper in rikligt med ljus och ramar in utsikten på ett imponerande sätt. Från vardagsrummet nås balkongen som vetter rakt mot vattnet och blir en naturlig förlängning av bostaden under årets varmare månader.
Genomgående påkostade materialval ger ett stilrent och modernt intryck med golvvärme i hela lägenheten för extra komfort. Badrummet är elegant utformat med natursten på både väggar och golv som bidrar till en exklusiv hotellkänsla.
Här bor du i en välskött och påkostad förening med uppskattade gemensamma faciliteter såsom biosalong, kontorsrum, hobbyrum, cykelförråd samt garage i huset.
Nacka Strand är ett av områdets mest eftertraktade lägen med närhet till både hav, strandpromenader och natur. I området finns restauranger, caféer, service och småbåtshamn som ger en levande och trivsam miljö. Kommunikationerna är utmärkta med bussar och båtpendel som snabbt tar dig in till Slussen och city. Inom kort förstärks området ytterligare med den nya tunnelbanan som kommer att göra resvägen ännu smidigare och samtidigt bidra till en fortsatt positiv utveckling av området.
Ett boende utöver det vanliga med utsikt, rymd och komfort i absolut toppklass.
Du kanske går i försäljningstankar, eller så funderar du på vad din bostad är värd. Oavsett om du har planer på att sälja din bostad eller bara är nyfiken på värdet kan du ta hjälp av våra mäklare. Vi värderar ditt hus, din lägenhet, sommarstuga eller fastighet. Antingen hemma hos dig eller digitalt. Fyll i formuläret så kontaktar vi dig för ett förutsättningslöst möte.
Fyll i formuläretDu kanske går i försäljningstankar, eller så funderar du på vad din bostad är värd. Oavsett om du har planer på att sälja din bostad eller bara är nyfiken på värdet kan du ta hjälp av våra mäklare. Vi värderar ditt hus, din lägenhet, sommarstuga eller fastighet. Antingen hemma hos dig eller digitalt. Klicka på länken och fyll i formuläret så kontaktar vi dig för ett förutsättningslöst möte.
Värdering av din bostad