Logga in
Välkommen till Widerlöv. Logga in för att fortsätta.
Det tar bara några sekunder.
- Starta BankID-appen på din mobil eller surfplatta
- Klicka på QR-koden
- Skanna QR-koden nedan, med BankID-appen
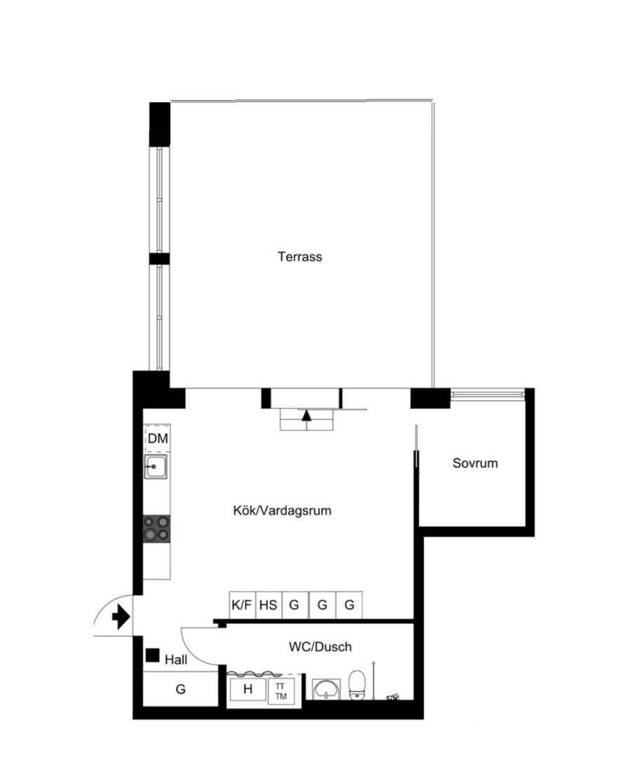
Högt upp i huset på våning 7 erbjuds nu en stilren och välplanerad 2:a om 48 kvm med en generös takterrass om ca 35 kvm och vidsträckt sjöutsikt. Ett boende för dig som prioriterar hög levnadsstandard, utsikt och en modern helhet.
Lägenheten har en öppen och social planlösning där kök och vardagsrum möts i ett ljust rum med stora fönsterpartier och utgång till terrassen. Genomgående ekgolv och golvvärme skapar en behaglig känsla året om. Köket är modernt och avskalat med gott om arbetsyta, öppen förvaring och plats för matbord intill fönstret med utsikt mot vattnet.
Terrassen om cirka 35 kvm ger en härlig förlängning av bostaden och rymmer både matgrupp, grill och loungedel. Här sitter du privat och med fantastisk vy över inloppet. Läget ger ett fint ljusinsläpp och en luftig känsla.
Sovrummet är separat och rymmer dubbelsäng. Badrummet är generöst tilltaget med helkaklade väggar i natursten, dusch bakom glas, vägghängd WC samt kombinerad tvättmaskin och torktumlare med praktisk arbetsyta ovan.
Planlösningen är effektiv med bra förvaring i både hall och vardagsrum, vilket gör att bostaden upplevs större än sina 48 kvm.
Föreningen erbjuder mervärden som garage, två övernattningslägenheter och biosalong. Läget kombinerar närheten till vatten, natur och kommunikationer med ett modernt och bekvämt boende.
En bostad för dig som vill ha något utöver det vanliga!
Du kanske går i försäljningstankar, eller så funderar du på vad din bostad är värd. Oavsett om du har planer på att sälja din bostad eller bara är nyfiken på värdet kan du ta hjälp av våra mäklare. Vi värderar ditt hus, din lägenhet, sommarstuga eller fastighet. Antingen hemma hos dig eller digitalt. Fyll i formuläret så kontaktar vi dig för ett förutsättningslöst möte.
Fyll i formuläretDu kanske går i försäljningstankar, eller så funderar du på vad din bostad är värd. Oavsett om du har planer på att sälja din bostad eller bara är nyfiken på värdet kan du ta hjälp av våra mäklare. Vi värderar ditt hus, din lägenhet, sommarstuga eller fastighet. Antingen hemma hos dig eller digitalt. Klicka på länken och fyll i formuläret så kontaktar vi dig för ett förutsättningslöst möte.
Värdering av din bostad