Logga in
Välkommen till Widerlöv. Logga in för att fortsätta.
Det tar bara några sekunder.
- Starta BankID-appen på din mobil eller surfplatta
- Klicka på QR-koden
- Skanna QR-koden nedan, med BankID-appen
Välhållet fint kedjehus med minivilla-känsla på populära Fågelhöjden i Saltsjöbaden!
- Egen altan
- Friköpt tomt
- Dubbla badrum
- Fyra potentiella sovrum
- Garage och p-plats under tak (med bil-laddare)
Välkommen till idyllen på Fågelhöjden och detta friköpta kedjehus, fördelat i två plan med stor uteplats. Området här bjuder på en härlig blandning av charmiga hus, planteringar, rabatter, lekplatser och gemenskap. Perfekt för familjen!
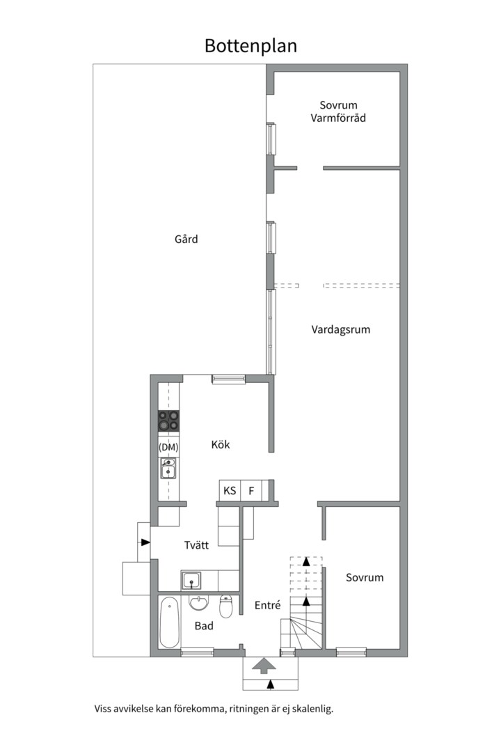
Stort vardagsrum med gott om plats för möblering av soffor, fåtöljer, tv och övrigt möblemang. Husets naturliga matplats tätt intill och flera dörrar ut till husets grönskande trädgård. Här njuter du av eftermiddagens och kvällens alla soltimmar! Köket är renoverat 2018 med fräscha vitvaror och bra arbetsytor. Även här finns det plats för en matgrupp om så önskas. Ett stort sovrum och ett potentiellt sovrum, som idag används som förråd. Ljust och fräscht helkaklat badrum gjort 2019 med bakar, badrumsskåp och kommod. Praktisk groventré/tvättstuga med separat ingång, gott om arbetsytor och tvättmaskin.
På övervåningen har vi husets master bedroom som är mycket väl tilltaget med gott om plats för dubbelsäng, skrivbord och gartderober. Dessutom har vi en egen walk in closet. Det mindre sovrummet har gott om plats för enkelsäng, skrivbord och garderober. Båda med fönster ut över Fågelhöjdens tak. Helkaklat badrum med dusch, badrumsskåp och kommod samt ytterligare ett förråd. På övervåningen når vi också husets vind.
I området finns även flera lekplatser och badplatser på gångavstånd. Även Saltsjöbadens GK ligger på gångavstånd. Ett paradis för barn att växa upp i där barn i alla åldrar leker tillsammans!
Nya tider skapar nya möjligheter. Du kanske går i försäljningstankar, eller så funderar du på vad din bostad är värd. Oavsett om du har planer på att sälja din bostad eller bara är nyfiken på värdet kan du ta hjälp av våra mäklare. Vi värderar ditt hus, din lägenhet, sommarstuga eller fastighet. Antingen hemma hos dig eller digitalt. Fyll i formuläret så kontaktar vi dig för ett förutsättningslöst möte.
Fyll i formuläretNya tider skapar nya möjligheter. Du kanske går i försäljningstankar, eller så funderar du på vad din bostad är värd. Oavsett om du har planer på att sälja din bostad eller bara är nyfiken på värdet kan du ta hjälp av våra mäklare. Vi värderar ditt hus, din lägenhet, sommarstuga eller fastighet. Antingen hemma hos dig eller digitalt. Klicka på länken och fyll i formuläret så kontaktar vi dig för ett förutsättningslöst möte.
Värdering av din bostad