Logga in
Välkommen till Widerlöv. Logga in för att fortsätta.
Det tar bara några sekunder.
- Starta BankID-appen på din mobil eller surfplatta
- Klicka på QR-koden
- Skanna QR-koden nedan, med BankID-appen
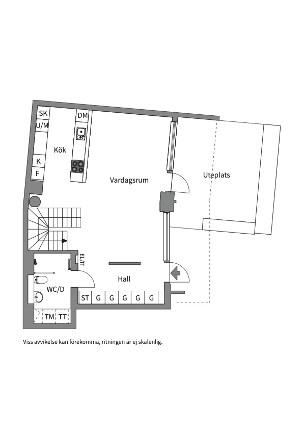
Välkommen till denna unika etagelägenhet om 120 kvm i populära Brf The View – en sällsynt bostadstyp med egen ingång, stor uteplats och generös balkong med eftermiddags- och kvällssol. Väl genomtänkt planlösning fördelad på två plan med ljusa och luftiga sociala ytor, det finns bara ett fåtal som sällan är till salu. Hög standard med utvalda materialval, moderna bekvämligheter och en lugn atmosfär. Här bor du i ett av Nacka Strands mest attraktiva lägen – där närheten till vatten, stad och natur möts på bästa sätt.
På entréplanet möts du av en inbjudande hall med ljus marmor och platsbyggd garderobsvägg med god förvaring. Här finns ett badrum samt kök och vardagsrum i öppen och social planlösning – med stora fönsterpartier och en balkongdörr som öppnar upp mot den privata uteplatsen.
En trappa upp finns tre sovrum, ett allrum med plats för både vardagsrum och kontor samt ytterligare ett badrum. I det rymliga master bedroom finns även en tillhörande walk-in closet. Från allrummet når du den stora balkongen där du kan njuta av eftermiddagssol och vackra solnedgångar med utsikt över Stockholms inlopp.
Bostaden är genomgående ljus och modern med välvalda material, tydlig uppdelning mellan sociala och privata ytor samt två flexibla utemiljöer som skapar ett boende med karaktär.
Brf The View är en välskött och stabil förening med moderna bekvämligheter som cykelförråd, barnvagnsrum och garage i huset. Området erbjuder allt från restauranger, caféer och gym till padel, kajpromenader och badbryggor – allt inom några minuter från dörren. SL:s pendelbåtar går fyra gånger i timmen och tar dig till Nybrokajen på ca 20 minuter, buss till Slussen tar cirka 10 minuter och framtida tunnelbanestation i Nacka nås till fots.
En perfekt mix av storstad och sjöläge – ett sätt att leva och bo som måste upplevas på plats!
Nya tider skapar nya möjligheter. Du kanske går i försäljningstankar, eller så funderar du på vad din bostad är värd. Oavsett om du har planer på att sälja din bostad eller bara är nyfiken på värdet kan du ta hjälp av våra mäklare. Vi värderar ditt hus, din lägenhet, sommarstuga eller fastighet. Antingen hemma hos dig eller digitalt. Fyll i formuläret så kontaktar vi dig för ett förutsättningslöst möte.
Fyll i formuläretNya tider skapar nya möjligheter. Du kanske går i försäljningstankar, eller så funderar du på vad din bostad är värd. Oavsett om du har planer på att sälja din bostad eller bara är nyfiken på värdet kan du ta hjälp av våra mäklare. Vi värderar ditt hus, din lägenhet, sommarstuga eller fastighet. Antingen hemma hos dig eller digitalt. Klicka på länken och fyll i formuläret så kontaktar vi dig för ett förutsättningslöst möte.
Värdering av din bostad