Kummelnäs, Nacka

Åbroddsvägen 33B, parhus 3

Såld

Kummelnäs, Nacka

Åbroddsvägen 33B, parhus 3

Slutpris: 7 000 000 kr

Arkitektritat i harmoni med naturen 

Arkitektritat parhus byggt i lösvirke bräda för bräda.
* Genomtänkt och generös planlösning med plats för den stora familjen
* Generösa trädgårdar med täta häckar och grönskande gräsmattor
* Med ett högt och fritt läge erbjuds bästa solläget i området
* Exklusiva vitvaror från SMEG

Välkommen på visning till vårt fina visningshus. Parhus 3 står klar för inflyttning i december 2024.

Med rofyllt läge, granne med Rotkärrsskogen och Velamsunds Naturreservat, finner ni dessa arkitektritade hem i modern arkitektur. Här uppför Sethmark Properties hem i modern och stilren arkitektur med naturnära materialval som smälter väl in i landskapet.

Husen uppförs i lösvirke från svenska skogar som innan montering finsågas vid egen fabrik i Uppsala. Varje material och detalj är vald med noga omsorg för att tillsammans skapa ett rofyllt boende i harmoni mellan natur och design. Fasaderna kläs med linoljebehandlad furupanel i jordnära kulörer, ett slitstarkt val som borgar för långa underhållsintervall.

Lösvirkeskonstruktionen vilar på en betongplatta på mark med vattenburen golvvärme. Med skarpa linjer i fasaden och mattsvarta plåttak och markerade fönster får husen en stilren och modern framtoning.

Planlösningen är skräddarsydd med den moderna familjen i åtanke. Med en generös takhöjd om 270 cm på båda våningsplanen skapas en rymlig och välkomnande atmosfär förstärkt av generös fönstersättning. Interiören genomsyras av gedigna material i en jordnära färgskala med golv och trappa i slitstark ek, exklusiv granitkeramik från Bricmate i hall och badrum samt fönsterbänkar i sten.

För att skapa extra trygghet finns ett omfattande Trygghetspaket framtaget vilket inkluderar Försäljningsgaranti, Räntegaranti och Tillträdesskydd.

Entréplanet samlar kök, matplats och vardagsrum i öppen planlösning med köksön som naturlig avskiljare. Rummet erbjuder direktaccess till uteplats och trädgård via dubbla altandörrar. Via entréhallen nås ett rymligt badrum med ytor för klädvård. En trappa upp återfinns en mer privat sfär med allrum samt tre rymliga sovrum som vid behov kan bli fyra. Här finns även ett ytterligare badrum med badkar och dubbla kommoder.

Husen ramas in av naturtomter som vid önskemål kan bli anlagda trädgårdar. Husens placering är noggrant genomtänkt för att skapa en privat utemiljö med optimala sollägen. Bilen parkeras i nära anslutning till huset.

I Kummelnäs finns allt en familj behöver för en aktiv och trygg uppväxt. Bekvämt pendlingsavstånd, Stockholms innerstad nås inom 30 minuter. I närområdet finns ett brett utbud av handel inklusive köpcentrum med mataffärer, caféer och restauranger, idrottsanläggningar och mycket mer.

Se bostadsväljaren här

Läs mer om Sethmark Properties

Alexander Björklund
Ansvarig mäklare

Alexander Björklund

Fastighetsmäklare Fri värdering Läs mer om Alexander

Planritning

previous slide
next slide
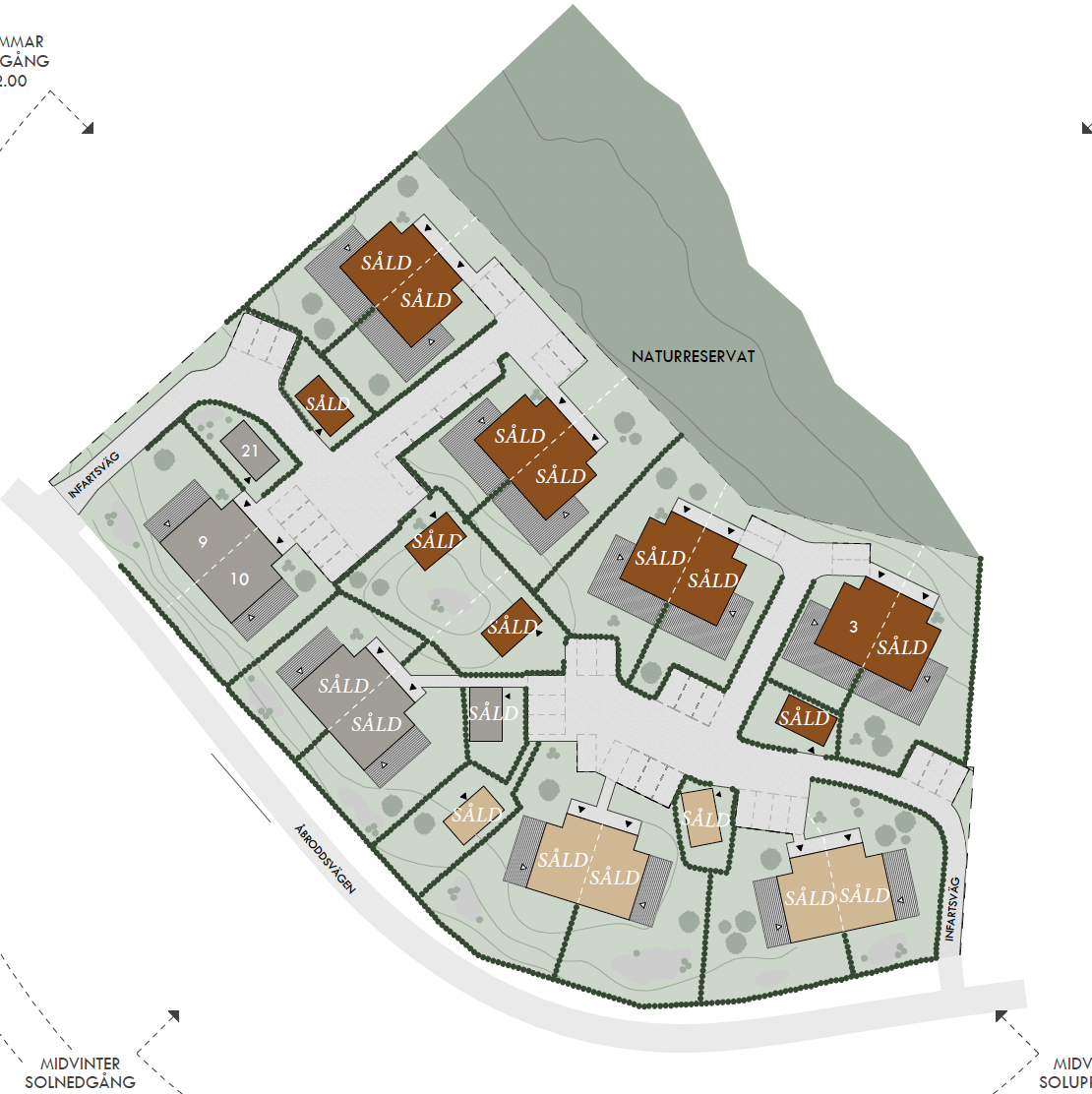
Planlösning från Åbroddsvägen 33B, parhus 3, Såld i Kummelnäs, Nacka
Planlösning från Åbroddsvägen 33B, parhus 3, Såld i Kummelnäs, Nacka
Planlösning från Åbroddsvägen 33B, parhus 3, Såld i Kummelnäs, Nacka
Planlösning från Åbroddsvägen 33B, parhus 3, Såld i Kummelnäs, Nacka
Planlösning från Åbroddsvägen 33B, parhus 3, Såld i Kummelnäs, Nacka
Planlösning från Åbroddsvägen 33B, parhus 3, Såld i Kummelnäs, Nacka
bg

Ska vi ses hemma hos dig?

Nya tider skapar nya möjligheter. Du kanske går i försäljningstankar, eller så funderar du på vad din bostad är värd. Oavsett om du har planer på att sälja din bostad eller bara är nyfiken på värdet kan du ta hjälp av våra mäklare. Vi värderar ditt hus, din lägenhet, sommarstuga eller fastighet. Antingen hemma hos dig eller digitalt. Klicka på länken och fyll i formuläret så kontaktar vi dig för ett förutsättningslöst möte.

Värdering av din bostad