Besiktigad

Årsta, Uppsala

Vitkålsgatan 111

Såld

Årsta, Uppsala

Vitkålsgatan 111

Slutpris: 5 750 000 kr

Senaste bud
bidding icon with dollar sign Budgivare 3 5 750 000 kr Visa alla

Charmig och rymlig 1,5-plansvilla med inredd källare på lugn återvändsgata i familjevänliga Årsta!

Välkommen till denna hemtrevliga villa om 145 + 88 kvm, perfekt belägen i ett lugnt och omtyckt kvarter. Huset har ett soligt och fritt läge med trädgård som gränsar mot allmänning, vilket skapar en härlig känsla av avskildhet.

Bostaden, som är i behov av invändig ytskiktsrenovering, är smart planerad med generösa sällskapsytor och möjlighet till flertalet sovrum om behovet finns. Här möts du av en inbjudande entré, ett rymligt vardagsrum med mysig braskamin och ett fullt utrustat kök med matplats. De tre, väl tilltagna, sovrummen erbjuder plats för både säng och övrigt möblemang, och vid behov finns möjlighet att skapa fler sovrum (se planritning). Dessutom finns två våtutrymmen med dusch och bad samt en praktiskt tvättstuga. Källaren erbjuder två stora allrum, sovrum/kontor samt dusch/WC med bastu. Förvaringsmöjligheterna är utmärkta med flera garderober, förråd i källare och ett externt garage med förråd i bakkant.

Här bor du i ett barnvänligt område, avskilt från trafikerade gator, omgiven av grönska. Trädgården erbjuder en insynsskyddad uteplats i söderläge, stora lekytor och möjligheter till pool, odlingsland och fruktträd. En tät häck ramar in tomten och ger extra avskildhet under de varmare månaderna. Parkeringsmöjligheterna är goda med garage, en bred asfalterad uppfart för två bilar samt ytterligare plats längs tomtgränsen.

Årsta är ett populärt område med närhet till både natur och stadsliv. Här finns förskolor och skolor med gott renommé, flera lekplatser, pulkabacke, 4H-gård, gym, vårdcentral och mataffär vid torget "Årsta centrum". Smidiga kommunikationer med täta bussförbindelser, fina cykelvägar samt enkel påfart till E4:an gör det lätt att ta sig till både stadskärnan och Gränby Centrum med dess breda utbud av service.

Varmt välkommen på visning!

Mattias Lindahl
Ansvarig mäklare

Mattias Lindahl

Fastighetsmäklare Boka tid i min kalender Läs mer om Mattias

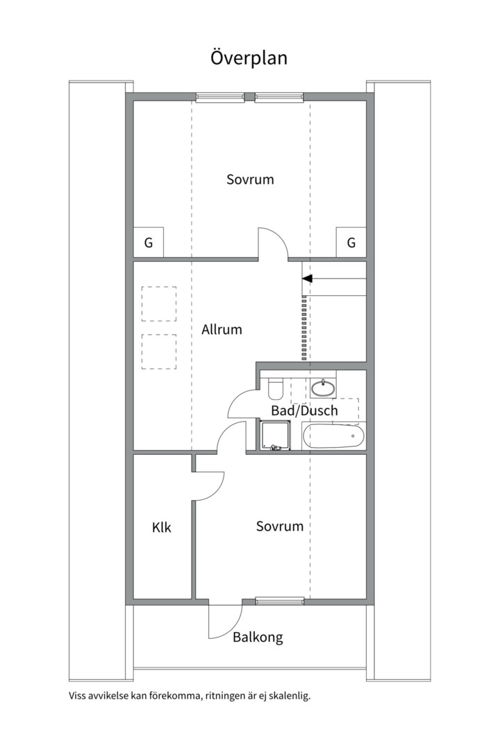
Planritning

previous slide
next slide
Planlösning från Vitkålsgatan 111, Såld i Årsta, Uppsala
Planlösning från Vitkålsgatan 111, Såld i Årsta, Uppsala
Planlösning från Vitkålsgatan 111, Såld i Årsta, Uppsala
bg

Ska vi ses hemma hos dig?

Du kanske går i försäljningstankar, eller så funderar du på vad din bostad är värd. Oavsett om du har planer på att sälja din bostad eller bara är nyfiken på värdet kan du ta hjälp av våra mäklare. Vi värderar ditt hus, din lägenhet, sommarstuga eller fastighet. Antingen hemma hos dig eller digitalt. Klicka på länken och fyll i formuläret så kontaktar vi dig för ett förutsättningslöst möte.

Värdering av din bostad