Logga in
Välkommen till Widerlöv. Logga in för att fortsätta.
Det tar bara några sekunder.
- Starta BankID-appen på din mobil eller surfplatta
- Klicka på QR-koden
- Skanna QR-koden nedan, med BankID-appen
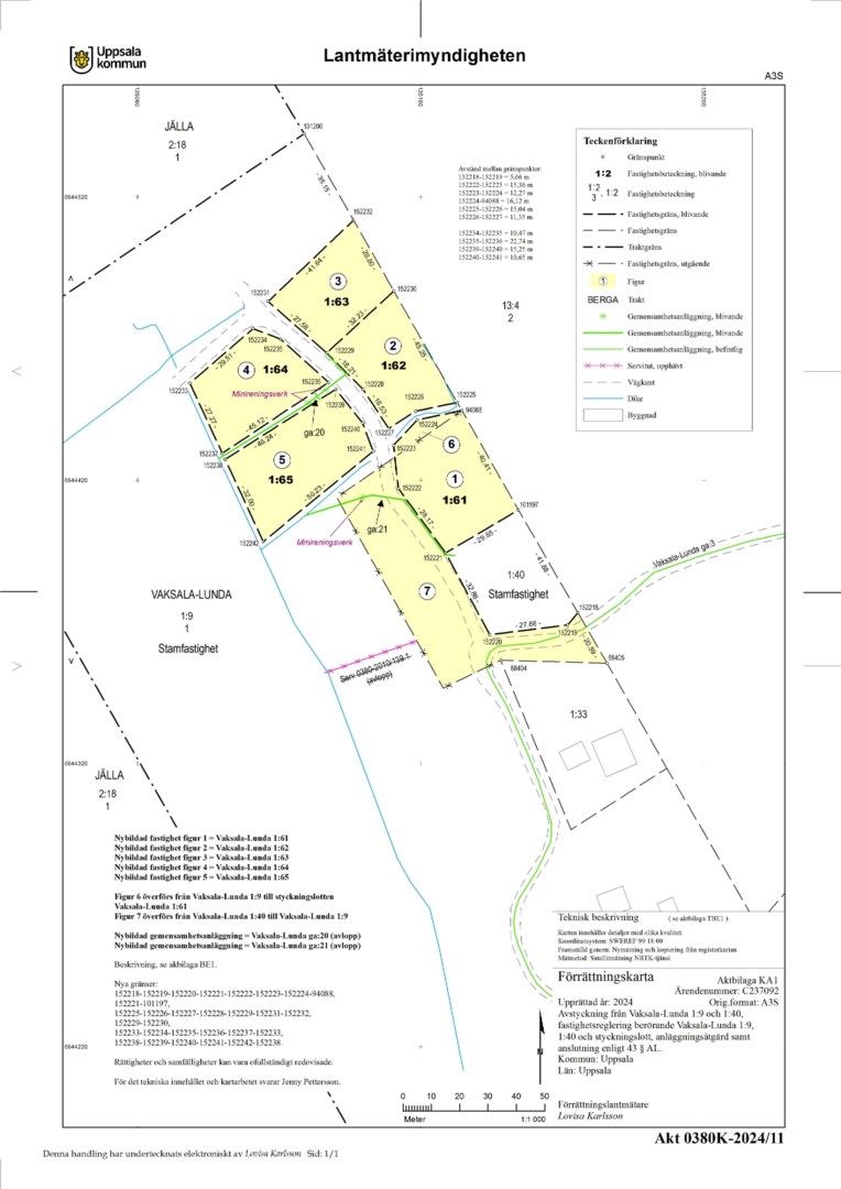
Välkommen till Vaksala-Lunda Starboda – ett unikt tillfälle att förverkliga din husdröm i en lantlig och naturnära miljö, med närhet till all tänkbar service!
ENDAST 1 tomt kvar! Här finns nu sex st byggklara tomter till salu, varav fem redan är sålda. Tomterna erbjuder frihet att välja husleverantör och skapa ett hem som matchar dina visioner och behov. Tomten ligger utanför detaljplanerat område vilket också kan ses som en stor fördel.
Tomt 1 - Vaksala-Lunda 1:40, ca 1 190 kvm, SÅLD
Tomt 2 - Vaksala-Lunda 1:61, ca 1 340 kvm, SÅLD
Tomt 3 - Vaksala-Lunda 1:62, ca 1 073 kvm, Pris 2 345 000 kr
Tomt 4 - Vaksala-Lunda 1:63, ca 1 024 kvm, SÅLD
Tomt 5 - Vaksala-Lunda 1:64, ca 1 120 kvm, SÅLD
Tomt 6 - Vaksala-Lunda 1:65, ca 1 395 kvm, SÅLD
Dessa tomter erbjuder en unik chans att bo i direkt anslutning till naturen, där skogen ligger som närmsta granne och skapar en fridfull och naturnära miljö. Här kan du vakna till fågelkvitter och njuta av direkt tillgång till skogens promenadstigar, bär- och svampplockning samt rekreation i det gröna. Perfekt för dig som söker en harmonisk vardag med naturen precis utanför dörren – en oas för avkoppling och livskvalitet.
När ni bygger nytt slipper ni fastighetsavgiften de första femton åren. Många banker kan också erbjuda amorteringsfrihet de första fem åren.
Tomterna säljs med tidigare positivt förhandsbesked för 1 - 1½-plans hus, vilket ger dig flexibilitet i dina byggplaner (giltigt till och med 2024-12-06)! För vatten står köparen för att borra en egen brunn, medan avlopp är ordnat genom gemensamhetsanläggning och ett modernt minireningsverk, inträdesavgift tillkommer för gemensamhetsanläggningen till minireningsverket. Väg är redan färdig och elservis kommer dras fram till tomtgräns (inga anslutningsavgifter tillkommer, endast kostnad för grävning på egna tomten). – här är det bara att börja bygga!
Se bifogade dokument för förhandsbesked, yrkande avlopp och väg.
Läget är idealiskt, med närhet till populära Lindbacken där du hittar skola, ICA-butik och Handelsbyn som erbjuder vårdcentral, apotek, gym, restaurang, frisör, pop-up-butik och fritidsklubb – allt du behöver för ett bekvämt och aktivt liv. Lindbacken är en trygg och levande plats att växa upp på, där familjer kan njuta av närheten till skolor och en rik fritidsmiljö med aktiviteter för både stora och små. Skolan är från förskoleklass till årskurs 5, samt fyra förskolor, alla omgivna av grönområden och parker. Intill skolan ligger en idrottshall som erbjuder en mängd aktiviteter för barnen. Kommunikationerna är utmärkta, med bussar som avgår var 15:e minut från hållplatsen vid väg 288. Resecentrum nås på under 20 minuter och för bilpendlare når du E4:an på fem minuter. För den som föredrar att cykla finns belyst cykelväg till både Gränbystadens galleria och vidare in mot Uppsala centrum.
Missa inte chansen att skapa ditt drömboende i Vaksala-Lunda Starboda, en plats där det lantliga möter det bekväma i en perfekt balans.
Välkommen hit, välkommen hem!
Det går bra att åka och titta på tomterna på egen hand, men hör gärna av dig till mäklaren så håller vi dig uppdaterad med status på tomterna.
Vid intresse vänligen kontakta ansvarig mäklare Michael Melin för mer information!
Du kanske går i försäljningstankar, eller så funderar du på vad din bostad är värd. Oavsett om du har planer på att sälja din bostad eller bara är nyfiken på värdet kan du ta hjälp av våra mäklare. Vi värderar ditt hus, din lägenhet, sommarstuga eller fastighet. Antingen hemma hos dig eller digitalt. Fyll i formuläret så kontaktar vi dig för ett förutsättningslöst möte.
Fyll i formuläretDu som är intresserad av den här bostaden får gärna lämna dina kontaktuppgifter här. Då kan jag höra av mig till dig med uppdateringar kring bostaden, och du riskerar inte att missa nåt.
Du kanske går i försäljningstankar, eller så funderar du på vad din bostad är värd. Oavsett om du har planer på att sälja din bostad eller bara är nyfiken på värdet kan du ta hjälp av våra mäklare. Vi värderar ditt hus, din lägenhet, sommarstuga eller fastighet. Antingen hemma hos dig eller digitalt. Klicka på länken och fyll i formuläret så kontaktar vi dig för ett förutsättningslöst möte.
Värdering av din bostad