Logga in
Välkommen till Widerlöv. Logga in för att fortsätta.
Det tar bara några sekunder.
- Starta BankID-appen på din mobil eller surfplatta
- Klicka på QR-koden
- Skanna QR-koden nedan, med BankID-appen
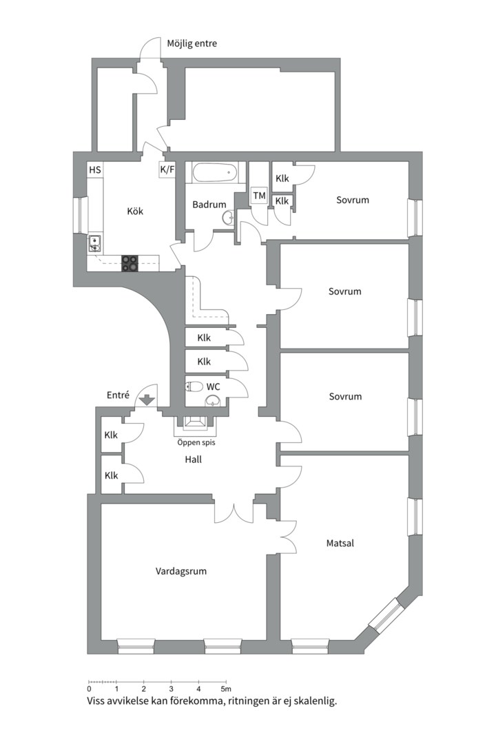
Sekelskiftesdröm med renoveringspotential – 188 kvm högst upp i huset med hörnläge!
Välkommen till en bostad utöver det vanliga – en sällsynt chans att skapa ditt eget drömhem i en storslagen sekelskiftesvåning om hela 188 kvm. Högst upp i huset, med ett eftertraktat hörnläge och ljusinsläpp från flera väderstreck, väntar en bostad med volym, karaktär och oändliga möjligheter.
Här möts du av tidstypiska detaljer såsom högt i tak, vackra spegeldörrar, öppen spis och breda fönsternischer – element som ger bostaden en genuin charm. Den generösa planlösningen erbjuder stora sällskapsytor, flera möjliga sovrum och gott om plats för både familjeliv och sociala sammanhang.
Bostaden är i behov av renovering, vilket ger dig möjligheten att utforma den precis som du vill – från planlösning till materialval.
Ett isolerat vindsutrymme om cirka 10 kvm, idag inrett som förråd/extra rum, erbjuder dessutom ytterligare flexibilitet som tex ett stort badrum med bastu, sovrum eller annat du kan önska.
Här finns även en egen ingång, så perfekt som uthyrningsdel eller för tonårsbarnet.
Föreningen gör en gemensam bygglovsansökan för balkong till alla lägenheter mot gården.
Läget är optimalt – lugnt, men ändå med närhet till stadens puls, restauranger, butiker och parker. Här bor du i en fastighet med klassisk charm och med potential att skapa ett hem som verkligen sticker ut.
Kort sagt: En unik renoveringschans i ett vackert sekelskifteshus med fantastisk rymd, ljus och karaktär.
Välkommen att låta drömmarna ta form på 188 kvm högst upp i huset!
För mer information om exakt adress, pris, tillträde och visningar - Välkommen att kontakta mig!
Nya tider skapar nya möjligheter. Du kanske går i försäljningstankar, eller så funderar du på vad din bostad är värd. Oavsett om du har planer på att sälja din bostad eller bara är nyfiken på värdet kan du ta hjälp av våra mäklare. Vi värderar ditt hus, din lägenhet, sommarstuga eller fastighet. Antingen hemma hos dig eller digitalt. Fyll i formuläret så kontaktar vi dig för ett förutsättningslöst möte.
Fyll i formuläretDu som är intresserad av den här bostaden får gärna lämna dina kontaktuppgifter här. Då kan jag höra av mig till dig med uppdateringar kring bostaden, och du riskerar inte att missa nåt.
Nya tider skapar nya möjligheter. Du kanske går i försäljningstankar, eller så funderar du på vad din bostad är värd. Oavsett om du har planer på att sälja din bostad eller bara är nyfiken på värdet kan du ta hjälp av våra mäklare. Vi värderar ditt hus, din lägenhet, sommarstuga eller fastighet. Antingen hemma hos dig eller digitalt. Klicka på länken och fyll i formuläret så kontaktar vi dig för ett förutsättningslöst möte.
Värdering av din bostad