Kommande bostad

Gränby, Uppsala

Tövädersgatan 12

Gränby, Uppsala

Tövädersgatan 12

price tag icon Pris
Pris enl ök Vänligen kontakta mäklaren för dialog
Bostadstyp
Lägenhet
rooms and are icon Antal rum
4 rum och kök
area icon Boarea
109,5 m2
calendar icon Byggnadsår
1964
floors icon Våning
1 av 3 (ingen hiss)
price tag icon Månadsavgift
6 403 kr/mån
Tövädersgatan 12

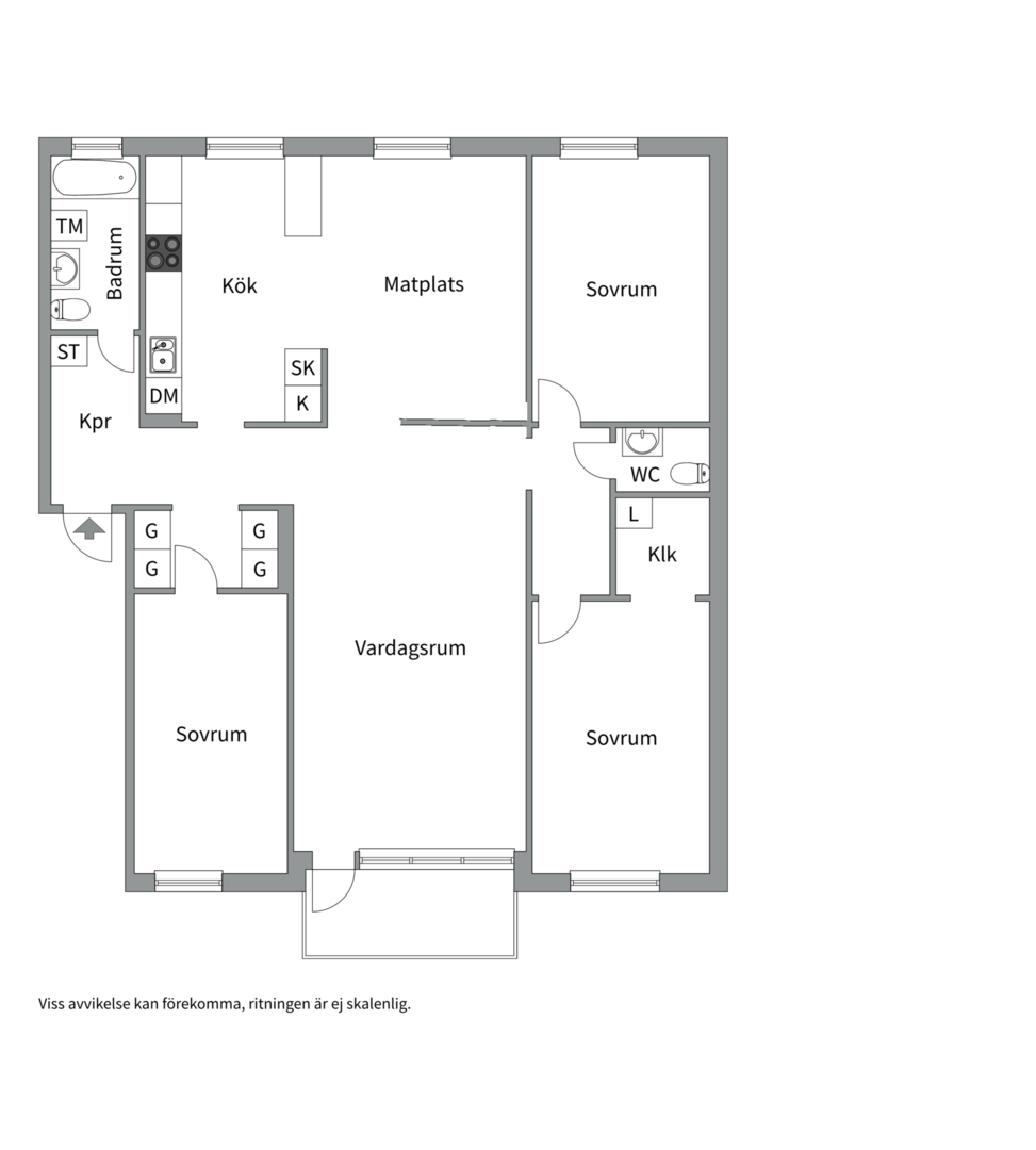
Välplanerad fyra med balkong i söderläge och två badrum!

- Upprustat kök med öppna ytor
- Balkong i söderläge
- Låg belåning per kvadratmeter
- Två badrum
- Fixade ytskikt

Välkommen till Tövädersgatan 12 och en bostad med genomtänkt planlösning och väl avvägda ytor. Köket har moderna materialval och gott om plats för matbord, vilket skapar en naturlig samlingspunkt. Vardagsrummet är öppet och lättmöblerat med utrymme för större soffgrupp och tv-möbel, samt utgång till balkong i soligt söderläge. Bostaden erbjuder tre separata sovrum som kan anpassas efter behov, varav ett med tillhörande klädkammare. Här finns även två kaklade badrum, där det mindre badrummet har renoverats av tidigare ägare.

Tillhör ett matförråd och ett ordinarie källarförråd (ca 3 kvm) till lägenheten.

BRF Gränbygårdarna är en stabil förening med låg belåning per kvadratmeter där mycket ingår i avgiften. Föreningen erbjuder varm- och kallgarage samt parkeringsplatser, och det finns lediga platser. I huset finns även cykelförråd, barnvagnsförråd och gemensam tvättstuga. Innergården är skyddad och grönskande med gemensamma sittgrupper, grillplats och lekplats.

Här bor du med direkt närhet till Gränby Centrum som erbjuder ett brett utbud av butiker och service. Läget ger goda pendlingsmöjligheter både med kollektivtrafik och bil, och Uppsala city nås enkelt till fots eller cykel. I området finns förskolor och skolor upp till gymnasienivå. Gränbyparken, som nyligen rustats upp, erbjuder utegym, lekplatser och ytor för aktivitet. I närheten finns även 4H-gård med djur och möjlighet till utflykter.

Intresseanmälan
Gabriel Ahlberg
Ansvarig mäklare

Gabriel Ahlberg

Fastighetsmäklare Boka tid i min kalender Läs mer om Gabriel

Bostaden

Föreningen

Ekonomi

Dokument och länkar

Planlösning från Tövädersgatan 12, Kommande i Gränby, Uppsala
Intresseanmälan

Anmäl dig här

Du som är intresserad av den här bostaden får gärna lämna dina kontaktuppgifter här. Då kan jag höra av mig till dig med uppdateringar kring bostaden, och du riskerar inte att missa nåt.

Räkna ut boendekostnad

bg

Ska vi ses hemma hos dig?

Du kanske går i försäljningstankar, eller så funderar du på vad din bostad är värd. Oavsett om du har planer på att sälja din bostad eller bara är nyfiken på värdet kan du ta hjälp av våra mäklare. Vi värderar ditt hus, din lägenhet, sommarstuga eller fastighet. Antingen hemma hos dig eller digitalt. Klicka på länken och fyll i formuläret så kontaktar vi dig för ett förutsättningslöst möte.

Värdering av din bostad