Kommande bostad

Tollare, Nacka

Tollarevägen 4

Tollare, Nacka

Tollarevägen 4

price tag icon Pris
Pris enl ök
Bostadstyp
Lägenhet
rooms and are icon Antal rum
3 rum och kök
area icon Boarea
87 m2
calendar icon Byggnadsår
2017
floors icon Våning
1 av 4 (med hiss)
price tag icon Månadsavgift
6 019 kr/mån
Tollarevägen 4

Hemtrevlig och toppfin bostad med hög takhöjd i en lugn och välskött förening. Här bor du i en ljus bostad med stora fönsterpartier mot en magisk och unik terrass med upplåten mark till bostaden. Terrassen kan nyttjas för att grilla och ha trevliga sommarcocktails på. Välkomna till er nya drömbostad.

Bostaden är vackert klädd i stilrena materialval med en optimal planlösning med två sovrum där master bedroom är väldigt generöst, går att göra ett till sovrum i vardagsrummet se planritning. Bostaden är fullt utrustad maskinellt. Vackert ljusinsläpp från de stora fönsterpartierna och en trivsam och social öppen planlösning. Välplanerade sovrum med plats för säng, klädförvaring och skrivbord. Generöst och stilrent kök som är perfekt för den matglade med en praktisk och trivsam köksö. Köket är fullt utrustat maskinellt med induktionshäll, varmluftsugn, spisfläkt samt två stycken kyl/frys och en diskmaskin. Gott om förvaring och arbetsytor i tjusig sten. En naturlig matplats längs ljusinsläppet med plats för stora sällskap och möjlighet att förlänga matbordet för ännu större bjudningar. Den stora terrassen och den upplåtna marken nås från vardagsrummet/köket. Terrassen kommer användas flitigt under sommarhalvåret och varför inte sätta igång grillen en vinterdag för att avnjuta måltiden i den vackra bostaden. Terrassen är på ca. 25kvm och kan möbleras med stort matbord, lounge möbler och andra stora utemöbler.

Perfekt planerat badrum med tvätt- och torktumlare med arbetsbänk och överskåp ovan. Snygg vit kommod med förvaring, spegel med belysning ovan. Dusch inom svängbara dörrar i glas med dusch set och en wc. Ljust klinker och helkaklade väggar i en ljus grå ton. Badrummet har skön komfortgolvvärme.
I bostaden finns även en stor klädkammare med gott om förvaring.

Bostaden har genomgående klassisk stavparkett som passar perfekt i bostaden med dess ljusinsläpp och höga takhöjd. Vitmålade väggar. Takhöjd om ca 2,7 meter som ger en fantastisk luftig känsla. Till bostaden ingår ett källarförråd.

- Reserverad garageplats med elbils-laddare
- Stenkast från vackra Skurusundet
- Upplåten mark med bostaden
- Fantastisk terrass på ca. 25kvm
- 2,7 meter i takhöjd
- Vackra promenadstråk i närområdet
- Fullt utrustad maskinellt
- Toppskick rakt igenom
- Bara att flytta in

Intresseanmälan
Jesper Lindgren
Ansvarig mäklare

Jesper Lindgren

Fastighetsmäklare, franchisetagare Fri värdering Läs mer om Jesper

Bostaden

Föreningen

Ekonomi

Dokument och länkar

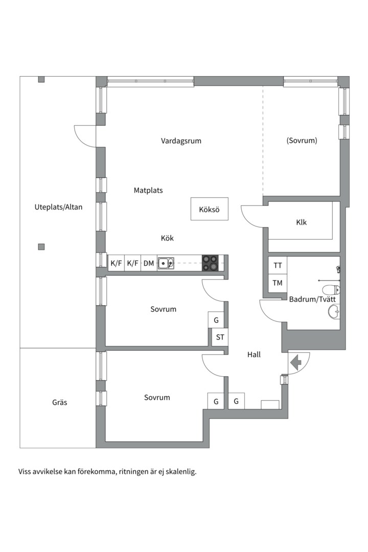
Planlösning från Tollarevägen 4, Kommande i Tollare, Nacka
Intresseanmälan

Anmäl dig här

Du som är intresserad av den här bostaden får gärna lämna dina kontaktuppgifter här. Då kan jag höra av mig till dig med uppdateringar kring bostaden, och du riskerar inte att missa nåt.

Räkna ut boendekostnad

bg

Ska vi ses hemma hos dig?

Nya tider skapar nya möjligheter. Du kanske går i försäljningstankar, eller så funderar du på vad din bostad är värd. Oavsett om du har planer på att sälja din bostad eller bara är nyfiken på värdet kan du ta hjälp av våra mäklare. Vi värderar ditt hus, din lägenhet, sommarstuga eller fastighet. Antingen hemma hos dig eller digitalt. Klicka på länken och fyll i formuläret så kontaktar vi dig för ett förutsättningslöst möte.

Värdering av din bostad