Logga in
Välkommen till Widerlöv. Logga in för att fortsätta.
Det tar bara några sekunder.
- Starta BankID-appen på din mobil eller surfplatta
- Klicka på QR-koden
- Skanna QR-koden nedan, med BankID-appen
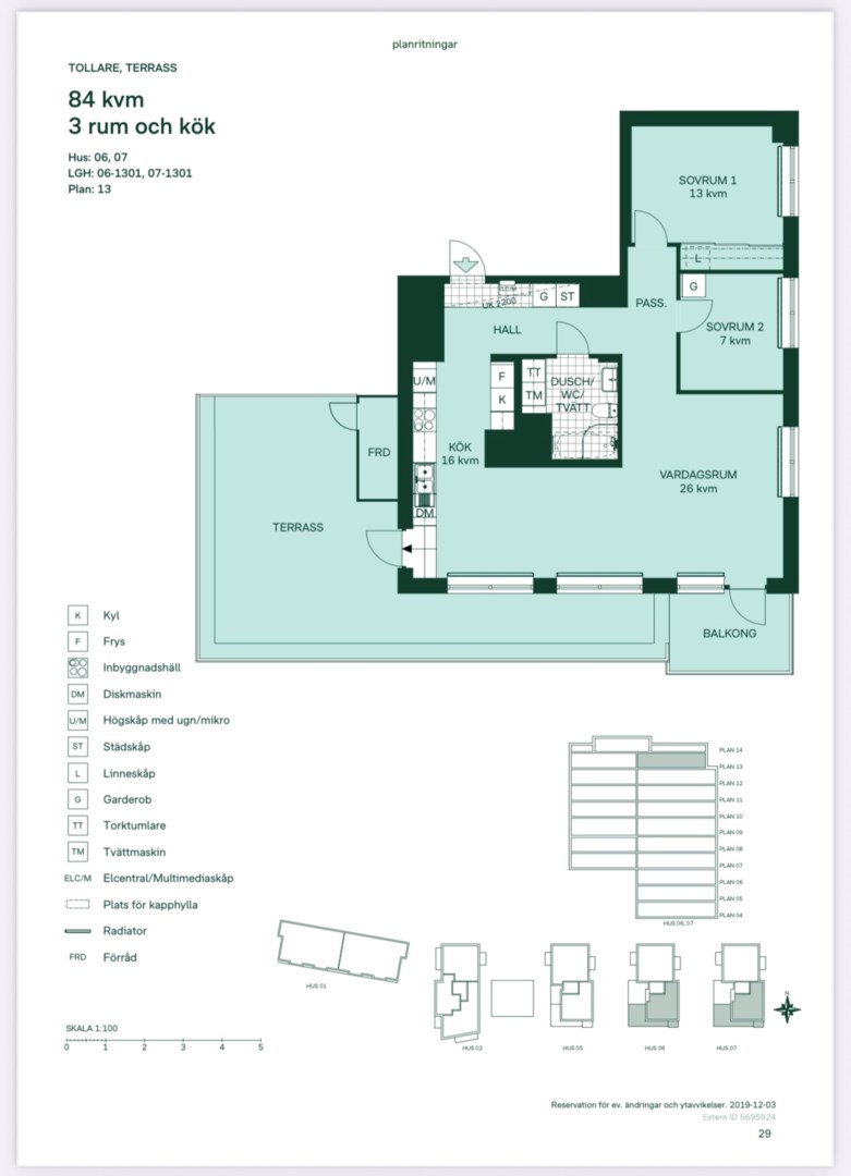
Högst upp i huset, med fri utsikt över vattnet, ligger denna unika lägenhet med en fantastisk terrass om cirka 50 kvm i soligt söderläge. Här får du en privat oas helt utan insyn, där solen värmer från morgon till kväll.
Lägenheten håller genomgående mycket hög standard och är belägen i en modern fastighet. Vardagsrummet och det öppna köket bjuder på stora fönsterpartier i tre väderstreck med härligt ljusinsläpp och vidsträckt havsutsikt. Köket är stilrent med påkostade materialval, full maskinell utrustning samt gott om förvaring och arbetsytor.
Bostaden erbjuder två utmärkta sovrum med stora fönster och generöst med garderober. Det rymliga badrummet är helkaklat med ljusa ytskikt, dusch med glasvägg samt egen tvätt och torktumlare. Genomgående vacker parkett löper genom vardagsrum, kök, sovrum och hall.
Från både vardagsrum och kök nås den stora terrassen som har gott om plats för både loungemöbler, matplats, växthus och odlingar. Här finns även ett eget förråd. Plattorna i granitkeramik skapar en stilfull och hållbar helhet.
Läget kan knappast bli bättre – precis intill vattnet och strandpromenaden som leder till populära restauranger som Bruket, The Old Smokehouse och Kennys Gelato, utsedd till Sveriges bästa glass. I området finns även småbåtshamn med möjlighet till båtplats, naturbad, klippbad, badbrygga samt Boobadet och Baggensfjärden på bekvämt avstånd. För barnfamiljer finns flera lekplatser, bollplaner, förskolor och skolor i området.
Kommunikationer
Här bor du med smidiga förbindelser – motorvägsbussen tar dig till stan på under 20 minuter och skärgårdsbåtarna avgår från närliggande bryggor.
Här kombineras modern bekvämlighet med skärgårdskänsla – ett boende som erbjuder livskvalitet på absolut toppnivå.
Varmt välkommen till en av Tollares mest attraktiva bostäder!
Nya tider skapar nya möjligheter. Du kanske går i försäljningstankar, eller så funderar du på vad din bostad är värd. Oavsett om du har planer på att sälja din bostad eller bara är nyfiken på värdet kan du ta hjälp av våra mäklare. Vi värderar ditt hus, din lägenhet, sommarstuga eller fastighet. Antingen hemma hos dig eller digitalt. Fyll i formuläret så kontaktar vi dig för ett förutsättningslöst möte.
Fyll i formuläretNya tider skapar nya möjligheter. Du kanske går i försäljningstankar, eller så funderar du på vad din bostad är värd. Oavsett om du har planer på att sälja din bostad eller bara är nyfiken på värdet kan du ta hjälp av våra mäklare. Vi värderar ditt hus, din lägenhet, sommarstuga eller fastighet. Antingen hemma hos dig eller digitalt. Klicka på länken och fyll i formuläret så kontaktar vi dig för ett förutsättningslöst möte.
Värdering av din bostad