Logga in
Välkommen till Widerlöv. Logga in för att fortsätta.
Det tar bara några sekunder.
- Starta BankID-appen på din mobil eller surfplatta
- Klicka på QR-koden
- Skanna QR-koden nedan, med BankID-appen
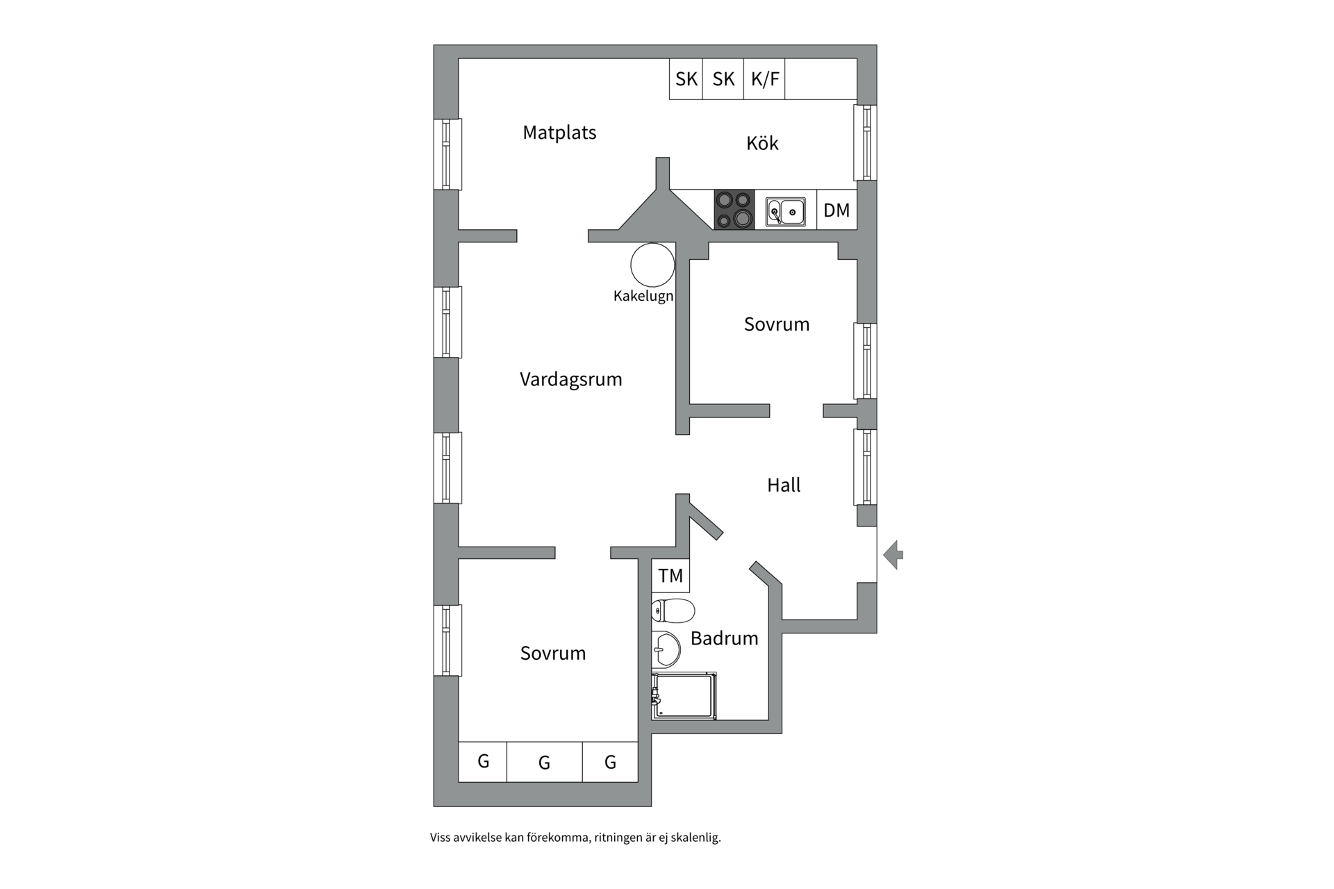
Genuin och charmig trea med anor från 1700-talet i Brf Ernanderska gården. Här bor du i ett utav Uppsalas mysigaste kvarter omgivet av vackra byggnader med caféer, butiker, restauranger och bostäder. Via grindar från S:t Olofsgatan eller Svartbäcksgatan når du den mysiga och privata innegården. Här är det lätt att trivas i alla åldrar med flertalet sittgrupper, utegrill, lekplats, rabatter, bär och fruktträd. Lugnet härifrån är sällsynt med tanke på läget - endast ett stenkast ifrån gågatan och fyrisån.
Lägenheten som ligger på andra våningen av två har sitt ursprung ifrån 1700-talet och har lyckats bevara tidstypiska detaljer som kakelugn, högt i tak, vackra trägolv och spröjsade fönster. Planlösningen fördelar sig på stor välkomnande hall, modernt badrum med tvättmaskin och dusch. Sovrum/arbetsrum med fönster mot grönskande innegård. Vackert vardagsrum med kakelugn som inte bara utgör utsmyckning till rummet, den ger även en härlig mysighetsfaktor och extra värmekälla under kalla vinterdagar. Renoverat kök utrustat med diskmaskin, goda arbetsytor och plats för middagsgäster. Master bedroom med plats för dubbelsäng och gott om förvaring i garderober.
Till bostaden hör ett lägenhetsförråd på ca: 6-7kvm.
Välskött förening med god ekonomi.
Här bor ni i ett fantastiskt kvarter med närhet till all tänkbar service såsom S:t Per Gallerian, restauranger, caféer, Universitetets institutioner och nationer samtidigt som ni kan njuta av lugnet vid Ån! Årummet hittas ett stenkast från bostaden och erbjuder härliga promenadstråk med mysiga bänkar att njuta av vårsolen på. Utmärkt läge för den som pendlar, Resecentrum nås med kort promenad eller cykeltur.
Denna bostad måste upplevas på plats!
Nya tider skapar nya möjligheter. Du kanske går i försäljningstankar, eller så funderar du på vad din bostad är värd. Oavsett om du har planer på att sälja din bostad eller bara är nyfiken på värdet kan du ta hjälp av våra mäklare. Vi värderar ditt hus, din lägenhet, sommarstuga eller fastighet. Antingen hemma hos dig eller digitalt. Fyll i formuläret så kontaktar vi dig för ett förutsättningslöst möte.
Fyll i formuläretNya tider skapar nya möjligheter. Du kanske går i försäljningstankar, eller så funderar du på vad din bostad är värd. Oavsett om du har planer på att sälja din bostad eller bara är nyfiken på värdet kan du ta hjälp av våra mäklare. Vi värderar ditt hus, din lägenhet, sommarstuga eller fastighet. Antingen hemma hos dig eller digitalt. Klicka på länken och fyll i formuläret så kontaktar vi dig för ett förutsättningslöst möte.
Värdering av din bostad