Logga in
Välkommen till Widerlöv. Logga in för att fortsätta.
Det tar bara några sekunder.
- Starta BankID-appen på din mobil eller surfplatta
- Klicka på QR-koden
- Skanna QR-koden nedan, med BankID-appen
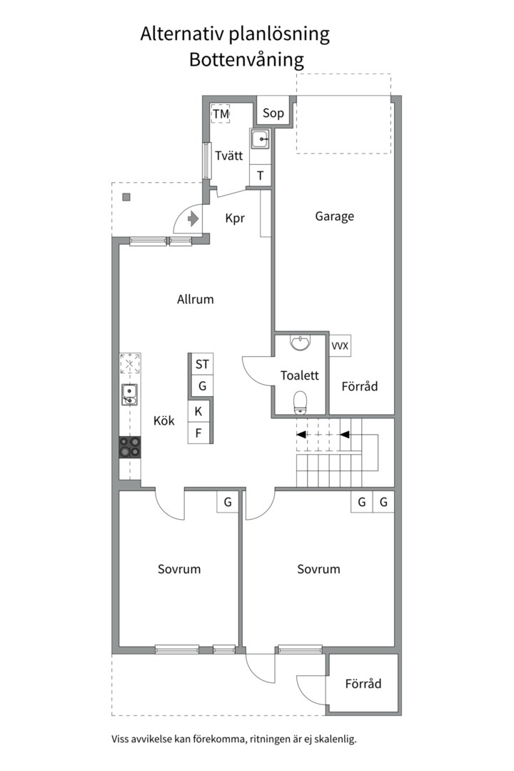
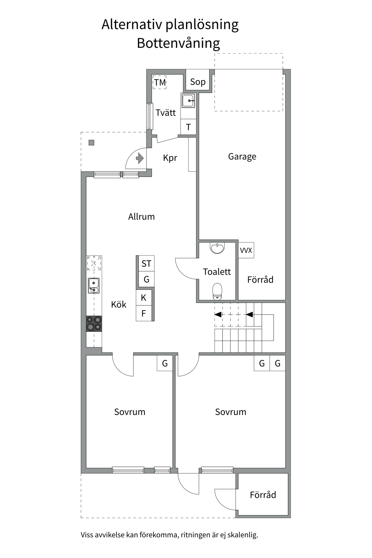
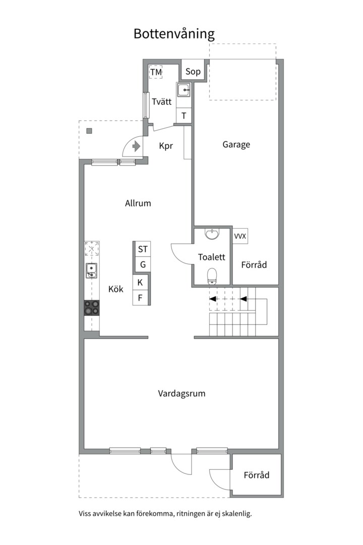
Välkommen till ett charmigt radhus med optimalt läge på lugn återvändsgata – perfekt för barnfamiljen! Här bor du endast ca 200 meter från både Nåntunaskolan och Myrgångens förskola, med trygga gång- och cykelvägar hela vägen. Området är mycket omtyckt med närhet till lekplatser, ICA-butik, naturreservaten Nåntuna Lund och Norra Lunsen samt fina motionsspår och goda bussförbindelser till centrum.
Huset är smart planerat med ett trevligt kök och stor matplats vid fönstret, ett badrum samt ett rymligt vardagsrum med direkt utgång till altan i soligt läge. På övervåningen väntar tre rejäla sovrum, ett ljust allrum med balkong samt ett stilrent badrum. Dessutom finns ett praktiskt förråd, inredningsbar vind, separat tvättstuga, rymligt varmgarage och plats för ytterligare bil på uppfarten. Framsidan bjuder på en trevlig möblerbar uteplats med kvällssol samt gräsmatta med blomplantering och fruktträd.
För den större familjen finns möjlighet att enkelt skapa fler sovrum – antingen i vardagsrummet eller i allrummet på övervåningen. Här erbjuds ett boende med både funktion, flexibilitet och en trygg uppväxtmiljö för barn i alla åldrar. Missa inte chansen – varmt välkommen med din intresseanmälan redan idag!
Nya tider skapar nya möjligheter. Du kanske går i försäljningstankar, eller så funderar du på vad din bostad är värd. Oavsett om du har planer på att sälja din bostad eller bara är nyfiken på värdet kan du ta hjälp av våra mäklare. Vi värderar ditt hus, din lägenhet, sommarstuga eller fastighet. Antingen hemma hos dig eller digitalt. Fyll i formuläret så kontaktar vi dig för ett förutsättningslöst möte.
Fyll i formuläretNya tider skapar nya möjligheter. Du kanske går i försäljningstankar, eller så funderar du på vad din bostad är värd. Oavsett om du har planer på att sälja din bostad eller bara är nyfiken på värdet kan du ta hjälp av våra mäklare. Vi värderar ditt hus, din lägenhet, sommarstuga eller fastighet. Antingen hemma hos dig eller digitalt. Klicka på länken och fyll i formuläret så kontaktar vi dig för ett förutsättningslöst möte.
Värdering av din bostad