Rumsbeskrivningar
— SOUTTERRÄNGPLAN —
...
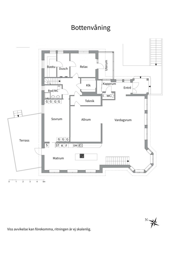
Entré/Hall
Stor, välkomnande hall med gott om plats för avhängning i hatthylla, skoförvaring och fem platsbyggda garderober. Vitmålade väggar och grått klinkergolv.
Groventré
Perfekt ingång när barnen kommer med blöta kläder och access till garage. Hatthylla, avhärdare, kyl i fullhöjd (Bosch), kyl i fullhöjd (Miele), frys i fullhöjd (Elektro Helios) och frys i fullhöjd (Elektro Helios). Vitmålad vävtapet och ljusgrå plastmatta.
Passage
Löper i vinkel i husets källardel med access till samtliga utrymmen i källardel. Förvaring i sju garderober och elskåp med automatsäkringar. Betongväggar målade i vitt, rött, beige samt ljusgul och grått klinkergolv.
Förråd 1
Perfekt förvaringsyta. F d fönster, vitmålade betongväggar och blå plastmatta.
Förråd/WC
Förvaring i platsbyggda hyllplan. Beigemålade väggar och blåmelerad våtrumsmatta. WC med kommod, golvbrunn och spegelklätt badrumsskåp med belysning.
Pannrum
Pelletspanna (Effecta komplett) med givare, varmvattenberedare (Metro) och elskåp med automatsäkringar. Betongväggar och golv.
Tvätt-/Strykrum
Väggfast bord, utrustning för att vika lakan, torklinor, tvättho, fönster, tvättmaskin (Samsung) och torktumlare (Miele). Väggar målade i beige, vitt och grönt med grått klinkergolv.
Hobbyrum/Sovrum
Stort med plats för bred säng samt ytterligare möblemang. Fönster, väggar målade i ljusgul nyans och trägolv.
Förråd 2
Väl tilltagen förvaringsyta med vitmålade betongväggar och grått klinkergolv.
Innerhall
Plats för mindre möblemang med entréer till merparten av rummen i entréplan. Vitmålade väggar, höga vita golvsocklar och trestavigt parkettgolv.
Sovrum 1
Tilltalande rum med burspråk som ger ett fint ljusinsläpp. Klädförvaring i två garderober. Vitmålade väggar, höga vita golvsocklar och trestavigt parkettgolv.
Sovrum 2
Två stora fönster ger fint ljusinsläpp. Gott om plats för dubbelsäng samt ytterligare möblemang. Klädförvaring i bred garderob med skjutdörrar. Vitmålade väggar, höga vita golvsocklar och trestavigt parkettgolv.
Sovrum 3
Rymligt rum i trevlig disposition med plats för både bred säng samt ytterligare möblemang. Vitmålade väggar, höga vita golvsocklar och enstavigt parkettgolv.
Badrum/Dusch/WC
Stilrent badkar, duschhörna med betongglas, vägghängd wc, bred kommod med dubbla handfat, vattenburen handdukstork och handdukshängare. Infällda spots med dimmer i tak, helkaklade väggar i matt vitt och grått klinkergolv.
— ENTRÉPLAN —
...
Vardagsrum
Trapp leder upp till övre plan med omfångsrikt vardagsrum med magisk takhöjd och dekorativa fönster från golv till tak som låter rummet bada i ljus. Här finns plats för flertalet möbelgrupper och rejält matsalsbord. Om man vill så kan man nyttja del av vardagsrummet till alkov då det är förberett för det men finns ingen trapp idag, det är även möjligt att montera kamin i rummet. Vitmålade väggar, höga vita golvsocklar och enstavigt parkettgolv.
Kök
I halvöppen lösning mot vardagsrum med skåpinredning från Bomankök med gedigna luckor av trä med diskreta beslag, vitrindel, skafferi och stor köksö. Gjutna arbetsbänkar och diskbänk med dubbelho. Plats för stort matbord invid fönster med vy över grannskapet, utgång till uteplats. Maskinell utrustning såsom kyl i fullhöjd (Samsung, frys i fullhöjd (Samsung), integrerad diskmaskin (Bosch), bred induktionshäll (Bosch), spisfläkt (Bosch), inbyggnadsugn (Bosch, -22) och inbyggnadsmicro (Bosch, -22). Infällda spots i tak, vitmålade väggar med svart sten som stänkskydd och enstavigt parkettgolv.
Sovrum
Husets ”master bedroom” med gott om plats för bred säng samt ytterligare möblemang. Klädförvaring i två stora garderober med skjutdörrar. Infällda spots i tak, vitmålade väggar, höga vita golvsocklar och enstavigt parkettgolv.
Dusch/WC
Duschhörna med väggfast glas och stång för draperi, bred kommod, spegelklätt badrumsskåp med belysning, vattenburen handdukstork, vägghängd wc och inkaklad spegel. Öppningsbart fönster, helkaklade väggar i matt vitt och grön mosaik med elburen golvvärme.
Passage 2
Förvaringsyta i två garderober och väggfasta hyllplan. Vitmålade väggar och trestavigt parkettgolv.
Tv-rum
Stor sällskapsyta med bred öppning mot vardagsrum. Hemmabiosystem (ej surround), plats för rejäl soffgrupp samt tv-möbel eller duk. Vitmålade väggar och ljust laminatgolv.
Klädkammare
Väggfast inredning för både hängande och vikta kläder. Infällda spots i tak, vitmålade väggar och trestavigt laminatgolv.
Spa-avdelning
Stort utrymme med relaxdel, gymdel, bred duschhörna med infällda takdusch samt duschmunstycke än och stor bastu med sittdelar i två höjder. Alla utrymmen har fönster, en del är öppningsbara med utgång till den egna trädgården. Infällda spots i tak, helkaklade väggar i matt vitt i dusch, beigemålade väggar i övriga delar och grått klinkergolv.
Finentré
Dekorativa pardörrar hälsar välkommen. Nås via husets framsida med access till kapprum för avhängning i hatthylla. Vitmålade väggar och grå/brunt klinkergolv.
WC
Mindre variant med handfat, väggfast spegel och vägghängd wc. Svartmönstrad tapet med orange fondtapet och grå/brunt klinkergolv.
Ägandeinformation
Fastighetsbeteckning Enköping Salnecke 7:11. Upplåtelseform: Friköpt.
Storlek
9 rum och kök, varav 4 - 6 sovrum.
Boarea: 312 kvm. Biarea: 147 kvm. Areakälla/kommentar: Areauppgifter enligt taxeringsinformationen.
Tomt
Fint planerad och strukturerad trädgårdstomt där man dragit nytta av sluttningen för att göra tomten än mer tilltalande. Här finns välvuxen gräsmatta att bre ut sig på, synliga bergsknallar, flaggstång, odlingslådor, blomrabatter, fruktträd, lövträd, prydnadsbuskar såsom bl a Rhododendron. Tomten bevattnas gärna från någon av de tre utkasten med vatten från Örsundaån. Tomtarea: 1 195 kvm.
Uteplats
Uteplats 1
- Stort altandäck i etage som löper i vinkel runt hus med spabad och fina ytor för möbelgrupper, solstolar och blomarrangemang. Eluttag, belysning och stilrent staket.
Uteplats 2
- Mindre altan på husets framsida som vetter i söder för att fånga dagens allra varmaste soltimmar.
Bilplats
Bilplats 1
- Rejält garage med plats för en bil. Gjuten platta, vitmålade betongväggar, golvbrunn, elstyrd port, arbetsbänk, verktygstavla, belysning, eluttag, tvättho och hyllor för förvaring.
Bilplats 2
- Det finns ytterligare goda parkeringsmöjligheter på någon av de stenbelagda ytorna i anslutning till huset. Ena är utrustad med eluttag för 16A-laddare.
Byggnadstyp och konstruktion
Byggår: 1960+2008.
Friliggande villa. 2 plan i souterräng. Besiktigad.
Fasad: Stående träpanel.
Stomme: Trä.
Fönster: 3-glasfönster isoler.
Grundläggning: Gjuten sula + betongplatta på mark (ny del).
Tak: Betongpannor.
Renoveringar
Föregående ägare;
2007-08: Omfattande om- och tillbyggnad.
2015: Byggnation av relaxavdelning.
Nuvarande ägare;
- 2021 Byte av pelletspanna (entreprenör), montering av toalett i källare och radiator i gästrum i källaren (entreprenör)
- 2022 Byggnation av sovrum på soutterängvåning (glasdörr) (entreprenör), renovering pelletsförråd (entreprenör), montering av markiser, montering av klätterställningen för barn utomhus.
- 2023 Montering av takmarkiser (entreprenör), tapetsering kök, ansökan för montering av eldstad godkänd av Enköping kommun.
Uppvärmning och energiförbrukning
Uppvärmning: Vattenburet centralvärmesystem kopplat till pelletspanna.
Energideklaration Utförd 26 november 2019. Prestanda/primärenergital: 140 kWh/kvm och år. Energiförbrukning: 134 kwh/kvm och år. Energiklass E på en skala från A till G.
TV och bredband
Bredband: Huset är utrustat med fiber.
Vatten/avlopp
Kommunalt vatten (via samfällighet finns det även möjlighet att ta vatten för bevattning från Örsundaån), Kommunalt avlopp.
Övrigt om byggnad
Huset är utrustat med centraldammsugare samt motordrivna markiser.
Planbestämmelser
Planbestämmelser: Detaljplan (2004-06-15)