Logga in
Välkommen till Widerlöv. Logga in för att fortsätta.
Det tar bara några sekunder.
- Starta BankID-appen på din mobil eller surfplatta
- Klicka på QR-koden
- Skanna QR-koden nedan, med BankID-appen
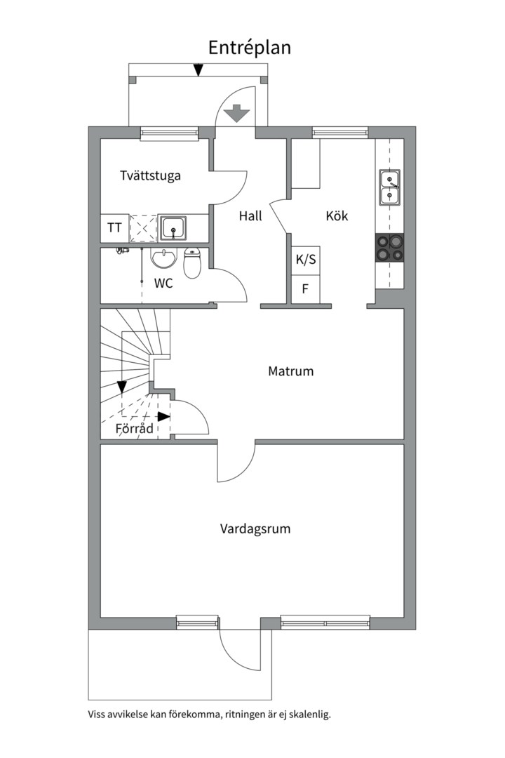
Välkommen till Seminariegatan 4C och detta trivsamma radhus med generösa sällskapsutrymmen! Både garage och p-plats finns. Entréplanet fördelar sig på hall med plats för att hänga av sig ytterkläder, tvättstuga, badrum, arbetskök med angränsande rymligt matrum, vardagsrum med utgång till uteplats med markis och den egna lättskötta trädgården. Övervåningen öppnas upp med en övre hall och från denna nås två sovrum varav från det ena nås balkongen, ett allrum som tidigare var två sovrum samt badrum med bastu.
Här bor du i ett lugnt och trevligt område mittemot Seminarieparken, närhet till ett flertal förskolor och skolor, cykel- och motionsleder, närhet till diverse fritidsaktiviteter, restauranger och uteliv, pendlingsläge och matbutiker - allt på bekvämt avstånd för den aktiva familjen.
Du kanske går i försäljningstankar, eller så funderar du på vad din bostad är värd. Oavsett om du har planer på att sälja din bostad eller bara är nyfiken på värdet kan du ta hjälp av våra mäklare. Vi värderar ditt hus, din lägenhet, sommarstuga eller fastighet. Antingen hemma hos dig eller digitalt. Fyll i formuläret så kontaktar vi dig för ett förutsättningslöst möte.
Fyll i formuläretDu kanske går i försäljningstankar, eller så funderar du på vad din bostad är värd. Oavsett om du har planer på att sälja din bostad eller bara är nyfiken på värdet kan du ta hjälp av våra mäklare. Vi värderar ditt hus, din lägenhet, sommarstuga eller fastighet. Antingen hemma hos dig eller digitalt. Klicka på länken och fyll i formuläret så kontaktar vi dig för ett förutsättningslöst möte.
Värdering av din bostad