Logga in
Välkommen till Widerlöv. Logga in för att fortsätta.
Det tar bara några sekunder.
- Starta BankID-appen på din mobil eller surfplatta
- Klicka på QR-koden
- Skanna QR-koden nedan, med BankID-appen
Välkomna till detta hemtrevliga radhus med ett lugnt läge, precis intill Hågadalen. Detta härliga hem med många sovrum har genomgående ljusa ytskikt med renoverade våtutrymmen och kök. Ett boende här erbjuder ett stadsnära och tryggt hem med naturen runt knuten. Flera skolor och förskolor finns i området och flera matbutiker inom cykel-/promenadavstånd. Bilen kan du smidigt ställa in i det tillhörande garaget eller på den tillhörande parkeringsplatsen. Dina gäster parkerar gratis på gatan precis utanför och behöver du åka buss ligger en hållplats ett par hundra meter från bostaden. Läget på detta hem är verkligen optimalt!
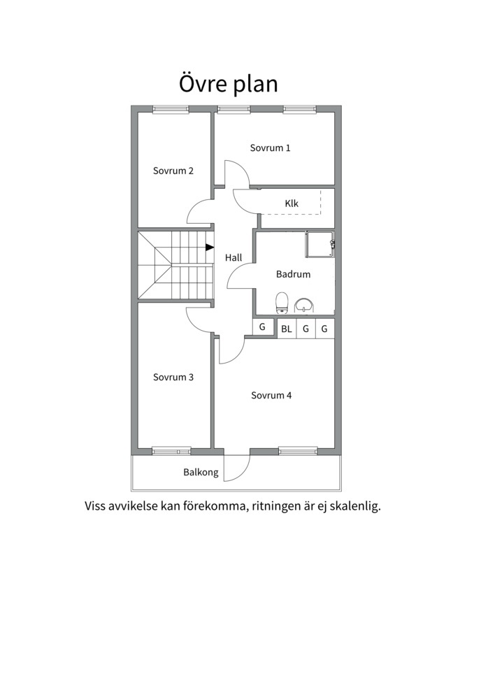
Planlösningen fördelar sig på entréplan med hall, kök med matplats, vardagsrum samt gästtoalett. Övre plan med utgång till balkong, fyra sovrum, badrum med dusch och klädkammare. Källarplan med sovrum/gillestuga, toalett, tvättstuga med badkar och ingång till bastu samt ett hobby-/arbetsrum och ytterligare förvaring under trappan.
Trädgården erbjuder såväl syrén som vinbärsbuskar och härliga rabatter med bland annat rosor och clematis. Läget är skyddat och i söderläge vilket bidrar till ett mycket tacksamt klimat för även lite mer känsliga växter. Här finns också praktiskt förråd för t.ex. trädgårdverktyg, pulkor och leksaker.
Här bor ni ytterst bekvämt, genom en lättskött tomt som avgränsas med staket och grind, och med närheten till både förskola och skola så är det ett barnvänligt läge perfekt för småbarnsfamiljer. Genom en kort promenad nås Ica Väst, Coop Ekeby, Friskis & Svettis, fotbollsplaner, tennisbana, restauranger och vårdcentraler. Ni upplever också de natursköna omgivningarna på nära håll genom ett stenkast till Ekebydalen med vackra promenad- och joggingspår och en cykeltur om ca tio minuter tar er till Stora torget i city. Slutligen så är den bilburne blixtsnabbt ute på Bärbyleden och har således endast fem minuter till E4:a-påfarten från bostaden.
Detta hem är mycket tilltalande och erbjuder en kombination av fördelarna med att bo i omtyckta Ekeby med villakänsla utan att behöva ta ansvar för en för stor tomt.
Vänlingen anmäl er till mäklaren för visning, välkomna!
Du kanske går i försäljningstankar, eller så funderar du på vad din bostad är värd. Oavsett om du har planer på att sälja din bostad eller bara är nyfiken på värdet kan du ta hjälp av våra mäklare. Vi värderar ditt hus, din lägenhet, sommarstuga eller fastighet. Antingen hemma hos dig eller digitalt. Fyll i formuläret så kontaktar vi dig för ett förutsättningslöst möte.
Fyll i formuläretDu kanske går i försäljningstankar, eller så funderar du på vad din bostad är värd. Oavsett om du har planer på att sälja din bostad eller bara är nyfiken på värdet kan du ta hjälp av våra mäklare. Vi värderar ditt hus, din lägenhet, sommarstuga eller fastighet. Antingen hemma hos dig eller digitalt. Klicka på länken och fyll i formuläret så kontaktar vi dig för ett förutsättningslöst möte.
Värdering av din bostad