Logga in
Välkommen till Widerlöv. Logga in för att fortsätta.
Det tar bara några sekunder.
- Starta BankID-appen på din mobil eller surfplatta
- Klicka på QR-koden
- Skanna QR-koden nedan, med BankID-appen
Här bor du i ett ombonat hem med genomtänkt planlösning, fina ytskikt och flera uteplatser att njuta av på både fram- och baksida. Bostaden är fördelad på två plan med möjlighet att inreda vinden till ytterligare boyta, vilket gör detta till ett boende som enkelt kan växa i takt med familjen.
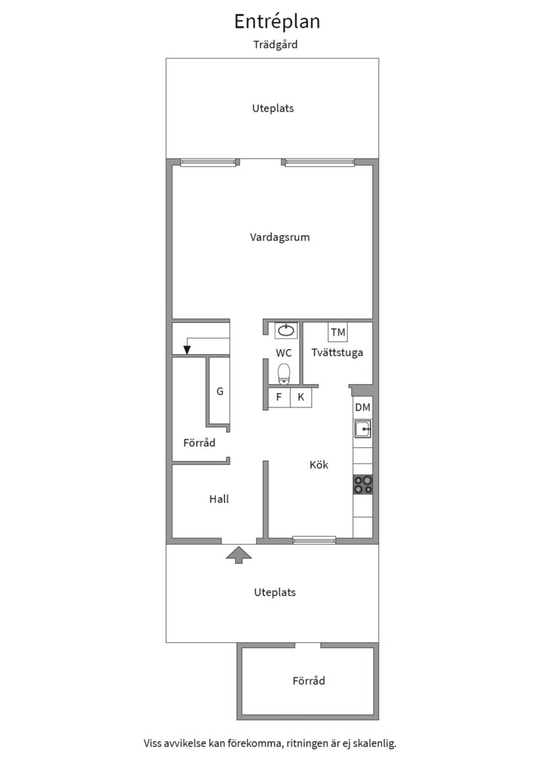
När du kliver in möts du av en rymlig hall med gott om plats för ytterkläder, skor och barnvagn. Väggarna är tapetserade och på golvet ligger ett snyggt rutmönstrat Marmoleum Click-golv som löper vidare in i köket. Här finns även ett praktiskt förråd som kompletterar övrig förvaring.
Det ljusa köket bjuder på generösa arbetsytor och plats för det stora matbordet där hela familjen får plats. Väggarna är klädda med panel (2013) och de vita köksluckorna ger en tidlös känsla. Maskinell utrustning består av kyl och frys (2025), diskmaskin, spis, ugn och fläkt. Härifrån når du även den separata tvättstugan med tvättmaskin och våtrumsmatta (torkskåp ur funktion).
Vidare in i huset öppnar sig det stora vardagsrummet, en naturlig samlingsplats med gott om utrymme för både soffgrupp, fåtöljer och matplats. Det vackra parkettgolvet och de tapetserade väggarna skapar en varm och inbjudande atmosfär. Från vardagsrummet leder altandörren ut till en härlig altan med trätrall, perfekt för sommarens grillkvällar. Trädgården är välskött med gräsmatta, buskar och blommor, och här finns även ett nytt plank (2019) som ger insynsskydd och trivsam inramning.
På det övre planet finns flera flexibla rum som idag används som sovrum, arbetsrum och TV-rum, alla med plats för både säng, skrivbord och förvaring. Flera av rummen har dessutom utgång till balkong, vilket ger ett extra ljusinsläpp och skapar en luftig känsla. Golven består av linoleum eller laminat och väggarna är tapetserade i behagliga färger.
Det övre badrummet renoverades 2011 och har kaklade väggar, klinkergolv med golvvärme, dusch, handfat, wc och ett rymligt vitrinskåp för förvaring.
Via vindsluckan nås vinden, utrustad med takfönster och med möjlighet att inredas till ytterligare ett våningsplan, perfekt som hobbyrum, tonårsrum eller extra sovrum.
Till huset hör även ett förråd om ca 11 kvm samt en garageplats som tillhandahålls av samfälligheten. För den aktuella garageplatsen finns installerad laddstolpe (2022–2023), och elförbrukningen debiteras via samfällighetens kvartalsfakturor.
Ryavägen 26 erbjuder ett bekvämt och charmigt boende med närhet till skolor, förskolor, natur och goda kommunikationer, ett hem att trivas i under lång tid framöver.
Att bo på Ryavägen 26 i Sollentuna innebär att leva i ett lugnt och välplanerat bostadsområde med mycket för barnfamiljer. Beläget ungefär 320 meter från närmaste grönområde, och cirka 900 meter till vattnet, perfekt för promenader och familjepicknickar. Vid Rösjön och Edsviken finns uppskattade motionsslingor och utegym vid exempelvis Väsjöbacken. Det finns även ett eget utegym i radhusområde samt fotbollsplan. Närmaste Friskis&Svettis är bara tolv minuters promenad bort, om man istället vill träna inomhus. Området Töjnan, där Ryavägen ligger, är populärt bland barnfamiljer tack vare flera förskolor, skolor och lekplatser som finns inom gångavstånd. Ett par hundra meter bort finns bra bussförbindelser, och pendeltåg från Sollentuna C nås snabbt, perfekt för arbete eller studier i centrala Stockholm. Gångavstånd till Sollentuna centrum innebär tillgång till butiker, restauranger, vårdcentral och annan service.
Nya tider skapar nya möjligheter. Du kanske går i försäljningstankar, eller så funderar du på vad din bostad är värd. Oavsett om du har planer på att sälja din bostad eller bara är nyfiken på värdet kan du ta hjälp av våra mäklare. Vi värderar ditt hus, din lägenhet, sommarstuga eller fastighet. Antingen hemma hos dig eller digitalt. Fyll i formuläret så kontaktar vi dig för ett förutsättningslöst möte.
Fyll i formuläretNya tider skapar nya möjligheter. Du kanske går i försäljningstankar, eller så funderar du på vad din bostad är värd. Oavsett om du har planer på att sälja din bostad eller bara är nyfiken på värdet kan du ta hjälp av våra mäklare. Vi värderar ditt hus, din lägenhet, sommarstuga eller fastighet. Antingen hemma hos dig eller digitalt. Klicka på länken och fyll i formuläret så kontaktar vi dig för ett förutsättningslöst möte.
Värdering av din bostad