Logga in
Välkommen till Widerlöv. Logga in för att fortsätta.
Det tar bara några sekunder.
- Starta BankID-appen på din mobil eller surfplatta
- Klicka på QR-koden
- Skanna QR-koden nedan, med BankID-appen
Det finns platser där tiden tycks gå lite långsammare. Där ljuset vandrar in genom stora fönster, där vinden bär doften av hav och tall, och där livet får plats – på riktigt. Här väntar ett hem där varje kvadratmeter bär på omsorg, balans och livskvalitet.
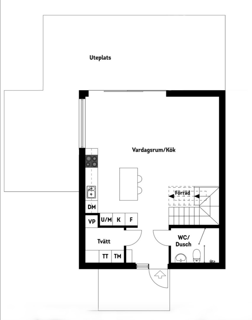
Välkomnande, genomtänkta ytor där det moderna möter det funktionella. Här kliver du in i ett hem där ljuset alltid är närvarande, och där detaljerna talar sitt tydliga språk. Inget är lämnat åt slumpen – från den öppna planlösningen till materialvalen, här är varje rum skapat för att användas och älskas.
På baksidan breder en generös altan i vinkel ut sig som en scen för sommarkvällar och frukost i solen. Växtspaljéer ramar in, ett växthus står redo för dina tomater och örter, och under den stora terrassmarkisen med inbyggd belysning skapas stämning, dag som kväll. Här får både långbord och loungemöbler plats – det är en plats för samvaro, för stillhet, för liv.
På framsidan väntar ännu en altan med spaljé, denna i morgonsol. Med trätrall under fötterna och en kopp kaffe i handen är det lätt att förstå varför just detta läge är så omtyckt. I det intilliggande förrådet ryms både verktyg och drömmar – kanske ett litet snickeriprojekt, kanske bara ordning och reda.
I Sund/Buskviken bor du bekvämt på landsbygden med båtplatser vid Buskvikens Marina inom gångavstånd på 150m. För er som föredrar ett dopp i havet har ni ca 300 meter till Sundsviken och i motsatt riktning har ni ca 300 meter till Saltströmmen med en fin badplats. I närområdet ligger även den populära insjöbadet i grustaget (Kristallsjön) en kort promenad från bostaden. I direkt anslutning ligger busshållplatsen, bussresan till slussen tar en knapp timme.
En kort bit från bostaden ligger Boda som är en charmig och barnvänlig by med skärgårdsmiljö. Ett par km från bostaden hittar ni Siggesta gård med restaurang, café, lekplats och djur, ett populärt utflyktsmål för hela familjen. För den golfintresserade finns Norråva golfklubb med pay & play och café i närområdet. Skola och förskola finns i grannbyn Ängsvik, Kyrkskolan med årskurs F-6 (ca 5 minuters bilresa) och förskolan Ängen. Från Boda brygga och från Kalvsviksbrygga kan ni ta Waxholmsbåtarna ut i skärgården till någon av de populära öarna som Sandhamn och Grinda.
Det här är ett hem för dig som söker något mer än bara väggar och tak. En plats att växa i, att vila i, att leva i – oavsett livets skede.
Välkommen hem!
Nya tider skapar nya möjligheter. Du kanske går i försäljningstankar, eller så funderar du på vad din bostad är värd. Oavsett om du har planer på att sälja din bostad eller bara är nyfiken på värdet kan du ta hjälp av våra mäklare. Vi värderar ditt hus, din lägenhet, sommarstuga eller fastighet. Antingen hemma hos dig eller digitalt. Fyll i formuläret så kontaktar vi dig för ett förutsättningslöst möte.
Fyll i formuläretDu som är intresserad av den här bostaden får gärna lämna dina kontaktuppgifter här. Då kan jag höra av mig till dig med uppdateringar kring bostaden, och du riskerar inte att missa nåt.
Nya tider skapar nya möjligheter. Du kanske går i försäljningstankar, eller så funderar du på vad din bostad är värd. Oavsett om du har planer på att sälja din bostad eller bara är nyfiken på värdet kan du ta hjälp av våra mäklare. Vi värderar ditt hus, din lägenhet, sommarstuga eller fastighet. Antingen hemma hos dig eller digitalt. Klicka på länken och fyll i formuläret så kontaktar vi dig för ett förutsättningslöst möte.
Värdering av din bostad