Logga in
Välkommen till Widerlöv. Logga in för att fortsätta.
Det tar bara några sekunder.
- Starta BankID-appen på din mobil eller surfplatta
- Klicka på QR-koden
- Skanna QR-koden nedan, med BankID-appen
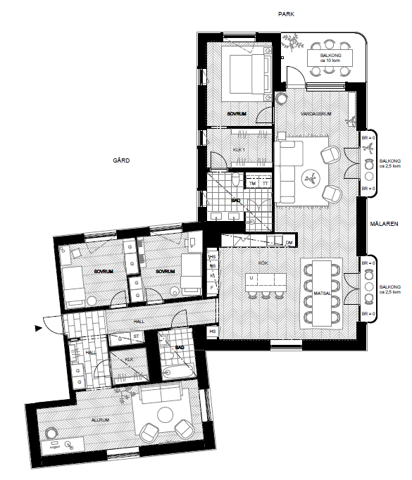
Välkommen till denna exceptionella 5 rok som förenar funktionalitet, estetik och hög livskvalitet. Den ljusa och rymliga bostaden erbjuder öppna sällskapsytor där design och komfort går hand i hand. Här möts du av genomgående chevronmönstrad parkett, stora fönsterpartier och en harmonisk färgpalett som skapar en inbjudande atmosfär.
Visning
Fredagen den 13 juni kl. 14.00–16.00 och lördagen 14 juni 12:00 - 13:00 bjuder vi in till visning av projektets visningslägenhet i Vinkelhuset på Lilla Essingen. Kom och se lägenheterna, takterrassen och utegymmet vid vattnet. Varmt välkomna till Dagnyvägen 100 på Lilla Essingen. Kontakta våra mäklare för mer information.
Lägenheten har tre vackra balkonger som erbjuder fantastiska utsikter åt olika håll. Den största balkongen bjuder på en panoramavy över Mälarens glittrande vatten, där du kan njuta av både morgonens första solstrålar och kvällens vackra solnedgång. Under sommarmånaderna blir balkongen ett extra rum – perfekt för avkoppling, middagar eller bara för att njuta av den omgivande naturen.
Lägenheten erbjuder luftiga sällskapsytor i öppen planlösning där köket från Kvänum är en självklar mittpunkt. Utrustat med integrerade vitvaror från Miele, bänkskivor i kalksten och tidlösa detaljer i ek, är köket både funktionellt och estetiskt tilltalande. Den öppna planlösningen skapar en sömlös övergång till vardagsrummet, där du kan koppla av eller bjuda in gäster för trevliga stunder.
Sovrummen ger en lugn och rofylld atmosfär, med naturliga material och smarta förvaringslösningar. I det största sovrummet väntar en privat oas med walk-in closet och badrum en suite – en perfekt plats för återhämtning och avkoppling.
Badrummet är inrett med granitkeramik i kalkstenslook, en designad kommod i valnöt från Haven och stilrena kromdetaljer. Här finns även tvättmaskin och torktumlare från Miele, vilket underlättar i vardagen.
Denna lägenhet erbjuder inte bara ett hem i toppskick utan också en utsikt och levnadsmiljö som gör varje dag speciell. Med tre balkonger och en oslagbar vy över Mälaren blir det här ditt perfekta boende för både avkoppling och socialt umgänge.
Som boende i Vinkelhuset har du dessutom tillgång till föreningens gemensamma takterrass – en social och avkopplande plats med hisnande utsikt över omgivningarna.
Vinkelhuset ligger på öns nordvästra sida med kvällssol och fantastiska solnedgångar över Mälaren och stadsdelen. Här växer Primusområdet
fram, en levande stadsmiljö med bostäder, kilometerlång strandpromenad, stora generösa parker, lekplatser, utegym, båtklubbar, badbryggor, caféer och restauranger.
Här får du ett boende som möjliggör en vardag i balans, med närhet till city, avkoppling och allt annat du behöver. Om du gillar båtliv så har du stora möjligheter att få en egen bryggplats då flera båtklubbar på ön expanderar. Ta med dig en bok och njut av morgonkaffet nere på bryggan. Känn lugnet och blicka ut över vattnet medan du låter tankarna vandra fritt.
Nya tider skapar nya möjligheter. Du kanske går i försäljningstankar, eller så funderar du på vad din bostad är värd. Oavsett om du har planer på att sälja din bostad eller bara är nyfiken på värdet kan du ta hjälp av våra mäklare. Vi värderar ditt hus, din lägenhet, sommarstuga eller fastighet. Antingen hemma hos dig eller digitalt. Fyll i formuläret så kontaktar vi dig för ett förutsättningslöst möte.
Fyll i formuläretNya tider skapar nya möjligheter. Du kanske går i försäljningstankar, eller så funderar du på vad din bostad är värd. Oavsett om du har planer på att sälja din bostad eller bara är nyfiken på värdet kan du ta hjälp av våra mäklare. Vi värderar ditt hus, din lägenhet, sommarstuga eller fastighet. Antingen hemma hos dig eller digitalt. Klicka på länken och fyll i formuläret så kontaktar vi dig för ett förutsättningslöst möte.
Värdering av din bostad