Besiktigad

Gustavsvik, Nacka

Persvägen 7

Såld

Gustavsvik, Nacka

Persvägen 7

Slutpris: 7 200 000 kr

Högsta bud
bidding icon with dollar sign Budgivare 1 7 200 000 kr

LEV LIVET I GUSTAVSVIK!

En högt och fint belägen fastighet utan insyn i populära Gustavsvik med tillhörande gästhus och friggebod.

Stor solig tomt med fin naturmark samt med nybyggda uteplatser med pergola och Spabad.

Här bor ni som på landet! Små slingrande vägar med havet bara några minuters promenad bort. Vackert villaområde med stora tomter, badstränder och fina grönområden. Nära till buss, barnomsorg, skolor och affärer.

Nuvarande ägare har gjort omfattande renoveringar och huset är väl omhändertaget och i fint skick. Effektiv solcellsanläggning ger extremt låg kostnad för el.

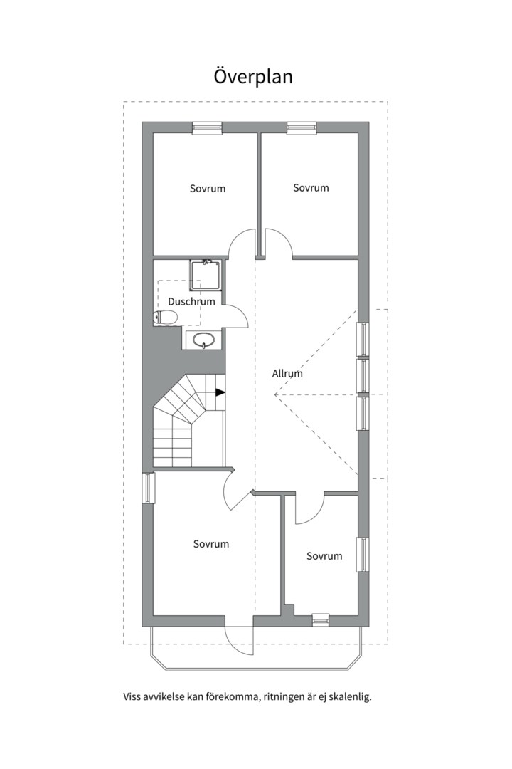
Övre plan erbjuder hela fyra sovrum, allrum och badrum. En rymlig balkong finns i anslutning till ett av sovrummen.
Entréplan ger gott om plats för umgänge med familj och vänner. Magiskt bra kök, matplats och vardagsrum i öppen planlösning med en fin kamin. Vardagsrummet öppnar upp sig mot den väl tilltagna altanen. Det finns också en rymlig tvättstuga med ny inredning och vitvaror.

Nuvarande ägare har även installerat solceller i maj 2020 med kapacitet på 11,25 kwp. Under 2022 installerades en ny frånluftsvärmepump samt vattenburen golvvärme. Även laddstolpe för elbil med lastbalansering finns.

Huvudbyggnad 160 kvm boyta. Yta på gäststugan är totalt ca 37kvm: 27kvm med vardagsrum, sovrum, pentry, dusch och förberett för toalett när kommunalt avlopp kopplas in. Sovloftet är ca 10kvm.

Stor tomt med fina möjligheter för utveckling framöver.

Välkommen på visning!

Jesper Lindgren
Ansvarig mäklare

Jesper Lindgren

Fastighetsmäklare, franchisetagare Fri värdering Läs mer om Jesper
Maria Fjellner
Assisterande mäklare

Maria Fjellner

Fastighetsmäklare Fri värdering Läs mer om Maria

Planritning

previous slide
next slide
Planlösning från Persvägen 7, Såld i Gustavsvik, Nacka
Planlösning från Persvägen 7, Såld i Gustavsvik, Nacka
bg

Ska vi ses hemma hos dig?

Du kanske går i försäljningstankar, eller så funderar du på vad din bostad är värd. Oavsett om du har planer på att sälja din bostad eller bara är nyfiken på värdet kan du ta hjälp av våra mäklare. Vi värderar ditt hus, din lägenhet, sommarstuga eller fastighet. Antingen hemma hos dig eller digitalt. Klicka på länken och fyll i formuläret så kontaktar vi dig för ett förutsättningslöst möte.

Värdering av din bostad