Logga in
Välkommen till Widerlöv. Logga in för att fortsätta.
Det tar bara några sekunder.
- Starta BankID-appen på din mobil eller surfplatta
- Klicka på QR-koden
- Skanna QR-koden nedan, med BankID-appen
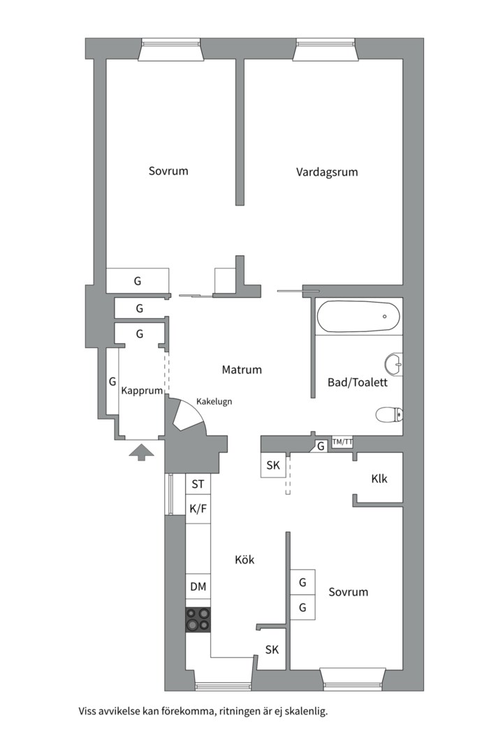
Vilken lycka att få vandra hemåt på kullerstensgatorna bland de vackraste och mest pittoreska delarna av Uppsala för att nå sin bostad! Genom prydlig port i Lechehus och ett par trappsteg upp via dekorativt trapphus finner ni entrén till denna bostad. 30-talet uppenbaras redan i hallen med de vackra snickerierna i form av höga golvsocklar samt dekorativa dörrkarmar, lyfter man blicken ser man de vackra fönstren med fina beslag, spröjs och de perfekt anpassade fönsterbrädorna av sten, golven utgör riktiga parkettgolv och mestadels fiskbensparkett med fris, lite längre in i bostaden lyser en öppen spis med sin fulla prakt som utöver att ge värme utgör en fin inredningsdetalj och sedan de fina innerdörrarna med speglar och äldre låsanordning. De äldre detaljerna har vävts samman med de mer moderna som omgjort kök med uppdaterade vitvaror, god förvaring och modernt, pampigt badrum.
Kvadratmetrarna i denna bostad är jämnt fördelade på kapprum/hall som ger gott om utrymme för avhängning i platsbyggda garderober samt ytterligare förvaring i djup garderob, rymligt våtutrymme med både badkar och dold tvättutrustning, kök med god förvaring, fina arbetsytor med bänkar av sten och matplats, separat matrum, vardagsrum som rymmer soffgrupp, tv-möbel samt ytterligare möblemang. Ett stort inbjudande "master bedroom" med gott om plats för dubbelsäng, förvaring samt ytterligare möblemang och ett sovrum innanför köket som ger plats åt god förvaring, platsbyggd våningssäng samt övriga möbler.
Bostadsrättsföreningen Slottsgårdarna har god ekonomi med låg belåning per kvadratmeter och där det mesta är inkluderat i avgiften. Det finns god extern förvaring i två till bostaden hörande källarförråd om ca 10 kvm resp 15 kvm. I föreningen finns tvättstuga med torkrum, sammanträdesrum, in- och utvändig cykelförvaring och en mycket inbjudande innergård med fina stensättningar, fantastisk grönska, gemensamma utemöbler att nyttja och grillmöjligheter.
Bo ett stenkast från allt vad Uppsala stad har att erbjuda! Ni kan t o m låta några av Uppsalas absolut bästa restauranger och caféer bli era egna "stammishak" då de finns precis runt husknuten. Det är även ett par minuters promenadavstånd till Saluhallen, omtyckt mataffär med egen chark- och delikatessdisk, många fina parker som bjuder på både grönska samt blomster och populära lekparker.
Nya tider skapar nya möjligheter. Du kanske går i försäljningstankar, eller så funderar du på vad din bostad är värd. Oavsett om du har planer på att sälja din bostad eller bara är nyfiken på värdet kan du ta hjälp av våra mäklare. Vi värderar ditt hus, din lägenhet, sommarstuga eller fastighet. Antingen hemma hos dig eller digitalt. Fyll i formuläret så kontaktar vi dig för ett förutsättningslöst möte.
Fyll i formuläretNya tider skapar nya möjligheter. Du kanske går i försäljningstankar, eller så funderar du på vad din bostad är värd. Oavsett om du har planer på att sälja din bostad eller bara är nyfiken på värdet kan du ta hjälp av våra mäklare. Vi värderar ditt hus, din lägenhet, sommarstuga eller fastighet. Antingen hemma hos dig eller digitalt. Klicka på länken och fyll i formuläret så kontaktar vi dig för ett förutsättningslöst möte.
Värdering av din bostad