Logga in
Välkommen till Widerlöv. Logga in för att fortsätta.
Det tar bara några sekunder.
- Starta BankID-appen på din mobil eller surfplatta
- Klicka på QR-koden
- Skanna QR-koden nedan, med BankID-appen
Här erbjuds en stor och välhållen familjevilla på trevlig gaveltomt i populära Sunnersta!
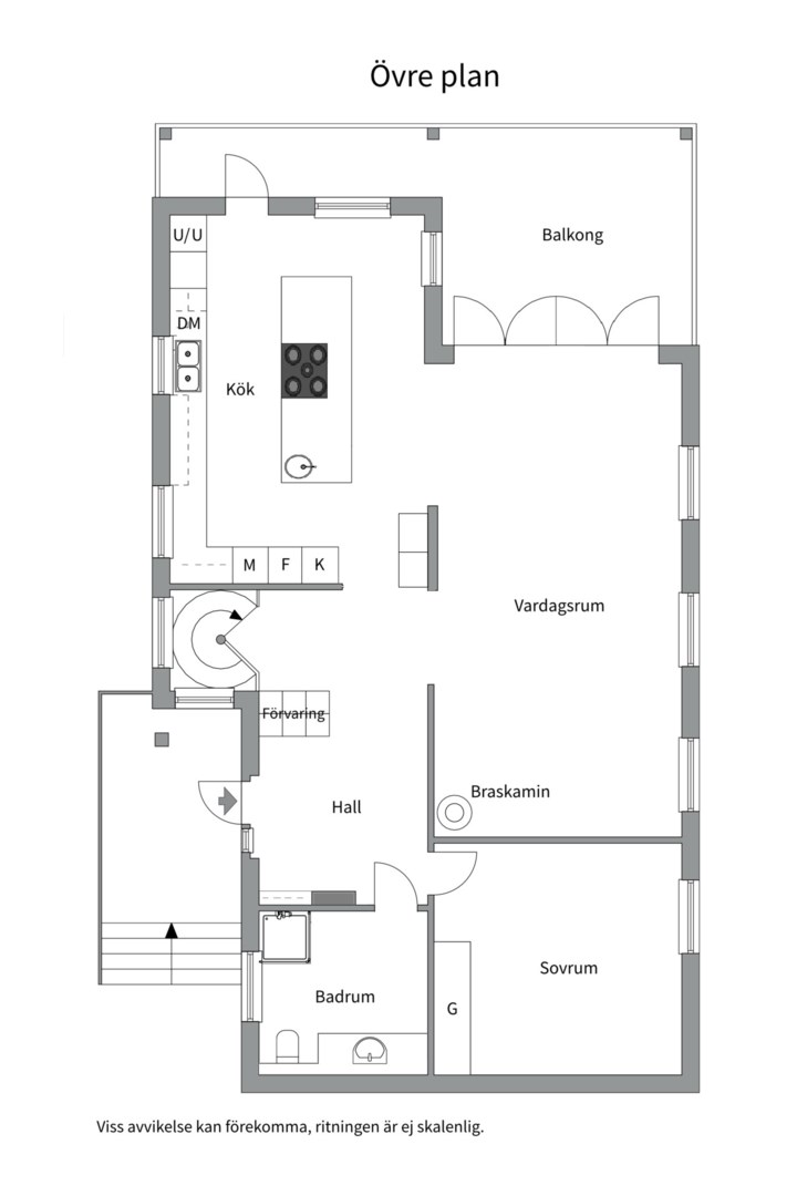
Huset är i genomgående gott skick och entréplan består av en stor välkomnande hall med plats för avhängning och förvaring, ett rymligt kök med köksö, mycket förvaring och arbetsyta. I anslutning till köket finns både matplats och vardagsrum med braskamin som gör denna delen av huset till den naturliga samlingsplatsen för social närvaro. Från vardagsrummet tar man sig ut till balkongen som rymmer både mat eller soffgrupp. Hela fönsterpartiet mot balkongen är öppningsbart. Utöver detta finns både sovrum och badrum på entréplanet. Nedre plan erbjuder stort vardagsrum, två till tre sovrum beroende på disposition samt ett fräscht badrum med badkar, tvättstuga och förvaringsutrymmen. Alla sovrum och sällskapsrum har ett trevligt ljusinsläpp. På nedre plan har vardagsrummet ventilerat nivellgolv, till sovrummen är anslutning till detta förberett. Huset har mekanisk till- och frånluft med värmeåtervinning och sommarkyla.
I Sunnersta bor du med direkt närhet till vackra naturområden och all service att önska. I närområdet finns bland annat Ekoln för fiske och bad, Alnäs friluftsgård, båtklubbar vid Skarholmen samt Sunnerstaåsen med motionsspår, pulka- och slalombacke med liftsystem. I Sunnersta finns även förskolor, skola, matbutik och restauranger. Från området finns bra bussförbindelse in till centrala Uppsala, samt cykelvägar. För dig som åker bil och pendlar tar man sig smidigt ut på E4:an.
Denna bostad bör upplevas på plats, varmt välkommen att anmäla ditt intresse redan idag!
Du kanske går i försäljningstankar, eller så funderar du på vad din bostad är värd. Oavsett om du har planer på att sälja din bostad eller bara är nyfiken på värdet kan du ta hjälp av våra mäklare. Vi värderar ditt hus, din lägenhet, sommarstuga eller fastighet. Antingen hemma hos dig eller digitalt. Klicka på länken och fyll i formuläret så kontaktar vi dig för ett förutsättningslöst möte.
Värdering av din bostad