Besiktigad

Ektorp, Nacka

Mariehällsvägen 26

Såld

Ektorp, Nacka

Mariehällsvägen 26

Slutpris: 10 300 000 kr

Högsta bud
bidding icon with dollar sign Budgivare 3 10 500 000 kr

BO GRANNE MED BASTUSJÖN!

Välkommen till Mariehällsvägen 26, beläget på en mysig gata med lite trafik! Sjöutsikt mot Bastusjön! Nuvarande ägare lät bygga huset 1960 och har tagit så väl hand om det under alla år. En fantastisk chans för nästa ägare att ta vid och fortsätta förvalta på bästa sätt!

- Sjöutsikt
- Öppen spis
- Vattenburet värmesystem
- Dubbelgarage
- Välvårdat skick med samma ägare sedan byggåret
- Granne med Nyckelviken
- Nära badplats, fotbollsplan och havet
- Nära busshållplats

Knappt 10 km från Slussen ges här chansen att bo i idyllen, granne med Nyckelviken, havet, sjön och pulkabacken. Här bor ni riktigt centralt med skola, idrott, affärer, restauranger och kommunikationer precis runt hörnet. Utan att överdriva så kan vi lätt konstatera att här erbjuds det bästa av två världar, som gör livet enkelt att leva.

Huset är placerat i ett högt och fritt läge, väl indraget från vägen. Klassisk design som smälter in fint i miljön med skog och vatten.

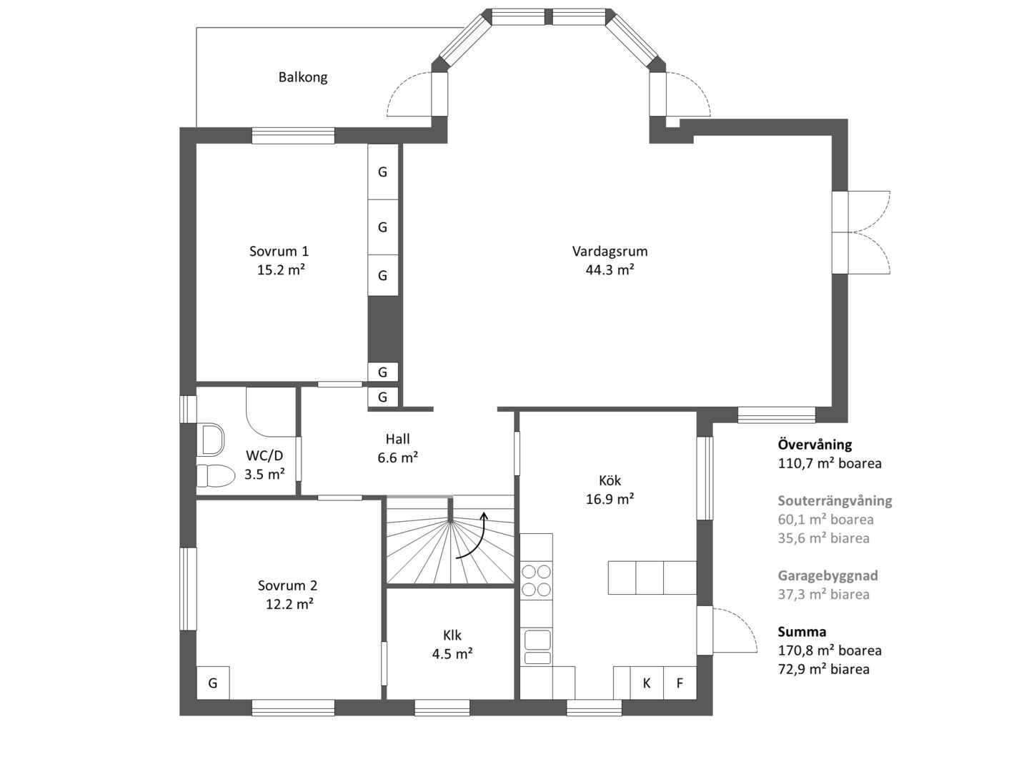
Härligt hus om totalt 206 kvm med utmärkt ljusinsläpp! Högt och skyddat läge. Vardagsrummet är verkligen husets hjärta med vackert parkettgolv, burspråk och gott om plats för både sittgrupp och matsalsbord. Fyra sovrum, varav det ena har egen ingång. Extra allrum med öppen spis på nedre plan. God förvaring.

Dubbelgaraget om 37 kvm är en riktig dröm! Passar lika bra för bilentusiasten som för den aktiva idrottsfamiljen med mycket utrustning.

Lättskött tomt med flertalet uteplatser och bra parkering. Högt och soligt läge! Goda möjligheter till trädgårdsliv och odling.

Läget just intill Nyckelviken med möjlighet till promenad och träning på fina barkspår i skog och klippbad vid brukshundsklubben. Den nyligen i ordninggjorda Ledungastigen, brant promenad vid Skurusundet, är otroligt vacker. Skidor och skridskor åker man på Bastusjön. Så mysigt att sedan promenera hem och tända brasa och grilla korv i öppna spisen. Badplatsen ligger precis nedanför huset.

Närhet till flera bra förskolor och skolor. Cirkusparken med möjlighet till lek och träning. Rätt läge på rätt sida om Skurubron. Närhet till butiker i Ektorps centrum. Närhet till bussar i Skuru 409, 449 och nära till övriga bussar.

Hit ska ni flytta om ni vill njuta av ett stort hus, granne med skog och vatten, men ändå stan 10 minuter bort med bil och 30 minuter med elcykel.

Varmt välkomna på visning!

Maria Fjellner
Ansvarig mäklare

Maria Fjellner

Fastighetsmäklare Fri värdering Läs mer om Maria

Planritning

previous slide
next slide
Planlösning från Mariehällsvägen 26, Såld i Ektorp, Nacka
Planlösning från Mariehällsvägen 26, Såld i Ektorp, Nacka
Planlösning från Mariehällsvägen 26, Såld i Ektorp, Nacka
Planlösning från Mariehällsvägen 26, Såld i Ektorp, Nacka
Planlösning från Mariehällsvägen 26, Såld i Ektorp, Nacka
Planlösning från Mariehällsvägen 26, Såld i Ektorp, Nacka
bg

Ska vi ses hemma hos dig?

Du kanske går i försäljningstankar, eller så funderar du på vad din bostad är värd. Oavsett om du har planer på att sälja din bostad eller bara är nyfiken på värdet kan du ta hjälp av våra mäklare. Vi värderar ditt hus, din lägenhet, sommarstuga eller fastighet. Antingen hemma hos dig eller digitalt. Klicka på länken och fyll i formuläret så kontaktar vi dig för ett förutsättningslöst möte.

Värdering av din bostad