Logga in
Välkommen till Widerlöv. Logga in för att fortsätta.
Det tar bara några sekunder.
- Starta BankID-appen på din mobil eller surfplatta
- Klicka på QR-koden
- Skanna QR-koden nedan, med BankID-appen
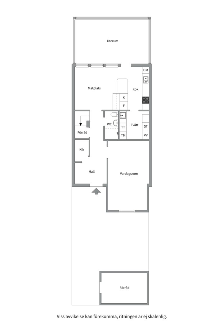
Välkommen till ett radhus med ett unikt läge i Storvreta! Här kan du sitta och njuta i det trivsamma uterummet med fri utsikt mot grönområde och mindre skogsparti. Här bor du i ett trevligt och lugnt område med närhet till all tänkbar service och gott om fritidsaktiviteter – perfekt för den aktiva barnfamiljen eller för dig som helt enkelt vill njuta av ett härligt och bekvämt boende. Planlösningens entréplan fördelar sig på hall med angränsande klädkammare, utbyggt vardagsrum, badrum, kök med rymlig matplats och med utgång till uterummet och tvättstuga i direkt anslutning till köket. Övervåningen fördelar sig på hall, tre-fyra sovrum (ett av sovrummen används idag som walk-in closet) samt badrum.
Storvreta erbjuder allt tänkbara service och har utmärkta kommunikationer med både Upptåg och buss. Väljer man att pendla med bil så är man ute på E4an på några minuter.
Nya tider skapar nya möjligheter. Du kanske går i försäljningstankar, eller så funderar du på vad din bostad är värd. Oavsett om du har planer på att sälja din bostad eller bara är nyfiken på värdet kan du ta hjälp av våra mäklare. Vi värderar ditt hus, din lägenhet, sommarstuga eller fastighet. Antingen hemma hos dig eller digitalt. Fyll i formuläret så kontaktar vi dig för ett förutsättningslöst möte.
Fyll i formuläretNya tider skapar nya möjligheter. Du kanske går i försäljningstankar, eller så funderar du på vad din bostad är värd. Oavsett om du har planer på att sälja din bostad eller bara är nyfiken på värdet kan du ta hjälp av våra mäklare. Vi värderar ditt hus, din lägenhet, sommarstuga eller fastighet. Antingen hemma hos dig eller digitalt. Klicka på länken och fyll i formuläret så kontaktar vi dig för ett förutsättningslöst möte.
Värdering av din bostad