Logga in
Välkommen till Widerlöv. Logga in för att fortsätta.
Det tar bara några sekunder.
- Starta BankID-appen på din mobil eller surfplatta
- Klicka på QR-koden
- Skanna QR-koden nedan, med BankID-appen
Välkommen till Månskensvägen 67 och detta hemtrevliga radhus beläget i populära och trivsamma Storvreta! Här bor du i ett lugnt och barnvänligt område med närhet till all tänkbar service och gott om fritidsaktiviteter – perfekt för den aktiva familjen eller för dig som helt enkelt vill njuta av ett härligt och bekvämt boende.
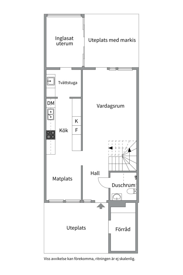
Planlösningens entréplan fördelar sig på hall, duschrum med kakel och klinker, vardagsrum med utgång till uteplats med markis, kök med matplats samt tvättstuga med utgång till inglasat uterum. Övervåningen öppnar upp med en hall och vidare från denna nås de tre sovrummen varav ett med balkong, klädkammare samt ett duschrum även detta med kakel och klinker. Garageplats samt gästparkering finns via samfälligheten.
Storvreta erbjuder allt tänkbara service som bl.a matbutiker, gym, förskola och skola upp till årskurs F-9, rikt föreningsliv med b.la fotboll, pingis, skidspår samt fina promenad- och motionsspår.
Utmärkta kommunikationer med både tåg och buss. Väljer man att pendla med bil så är man ute på E4:an på några minuter.
Du kanske går i försäljningstankar, eller så funderar du på vad din bostad är värd. Oavsett om du har planer på att sälja din bostad eller bara är nyfiken på värdet kan du ta hjälp av våra mäklare. Vi värderar ditt hus, din lägenhet, sommarstuga eller fastighet. Antingen hemma hos dig eller digitalt. Fyll i formuläret så kontaktar vi dig för ett förutsättningslöst möte.
Fyll i formuläretDu kanske går i försäljningstankar, eller så funderar du på vad din bostad är värd. Oavsett om du har planer på att sälja din bostad eller bara är nyfiken på värdet kan du ta hjälp av våra mäklare. Vi värderar ditt hus, din lägenhet, sommarstuga eller fastighet. Antingen hemma hos dig eller digitalt. Klicka på länken och fyll i formuläret så kontaktar vi dig för ett förutsättningslöst möte.
Värdering av din bostad