Logga in
Välkommen till Widerlöv. Logga in för att fortsätta.
Det tar bara några sekunder.
- Starta BankID-appen på din mobil eller surfplatta
- Klicka på QR-koden
- Skanna QR-koden nedan, med BankID-appen
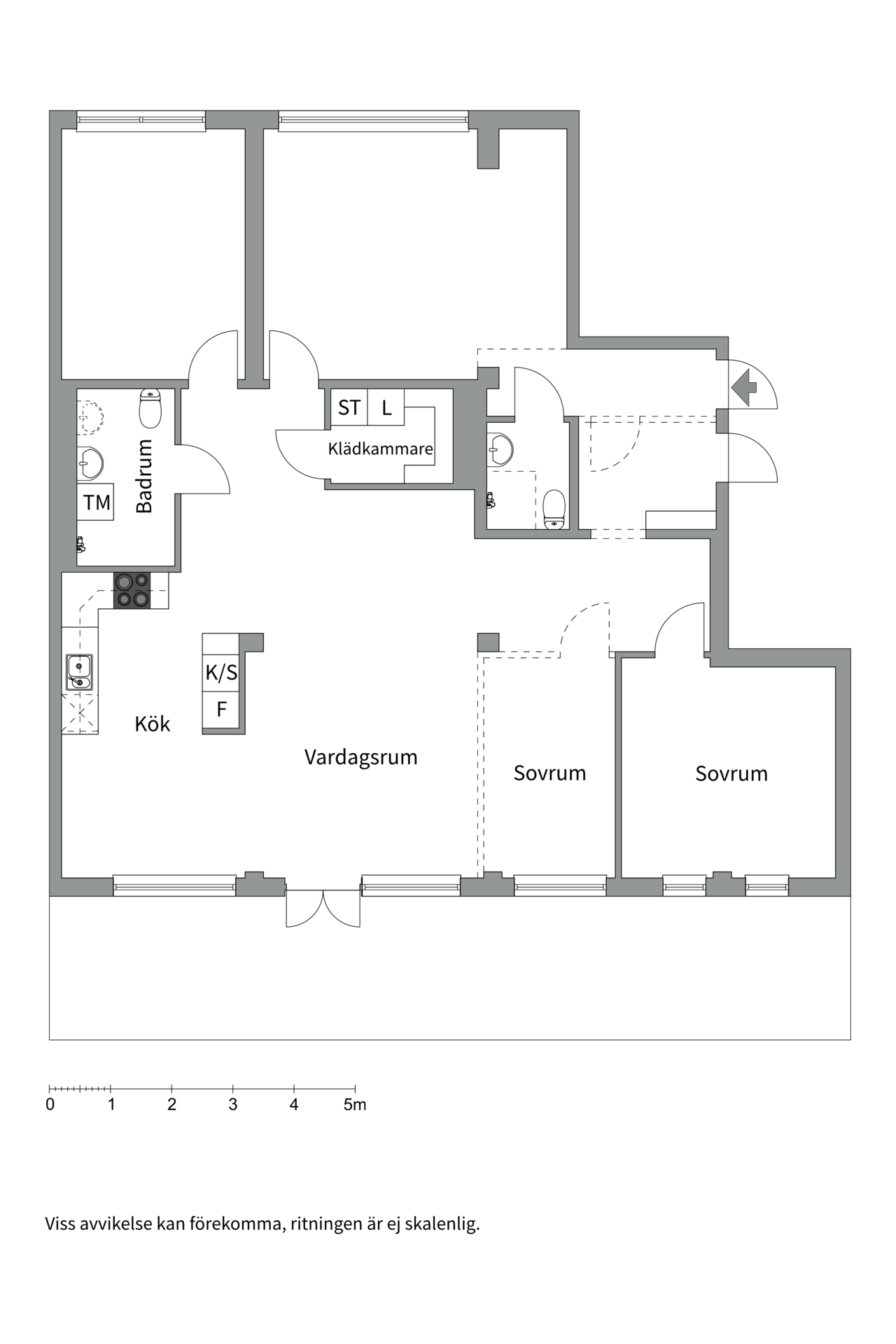
Rymlig bostad med flexibel planlösning, garage och stor härlig uteplats!
-Bostadsrättsgarageplats finns att köpa i samband med överlåtelse
-Mycket god ekonomi i föreningen
-Gemensam Pool och bastu
-Möjlig uthyrningsdel som även kan användas för verksamhet
-Stora sociala ytor
-2 badrum
Välkommen till denna unika lägenhet om 128 kvm.
Här finns många möjligheter att anpassa planlösningen efter dina behov, inklusive en potentiell uthyrningsdel som kan göras om till en separat 1:a eller 2:a med egen ingång.
Bostaden erbjuder:
Stora sociala ytor som inbjuder till både vardagsliv och festliga tillställningar.
Två rymliga badrum.
En stor, solig uteplats som blir din egen lugna oas.
Möjlighet att köpa garageplats i huset (med laddbox) i samband med lägenhetsköpet. Hiss direkt ner till garaget från bostaden, vilket gör boendet ännu bekvämare.
Läget:
Perfekt beläget med närhet till Odenplan och City, där du hittar ett rikt utbud av restauranger, caféer och butiker. Dessutom finns utmärkta kommunikationsmöjligheter med tunnelbana, bussar och pendeltåg.
Du finner även gröna linjen bara ett stenkast bort från bostaden.
Denna lägenhet erbjuder en fantastisk möjlighet att skapa ett hem som verkligen passar dina behov – oavsett om du önskar stora ytor för sociala tillställningar eller en separat uthyrningsdel för extra intäkter. Välkommen att upptäcka möjligheterna i denna flexibla bostad.
Mycket god ekonomi i föreningen!
Denna lägenhet ingår i en förening med stabil ekonomi, vilket ger trygghet för framtiden.
Som boende får du också ta del av fantastiska bekvämligheter:
Pool och bastu i grannhuset (ingång över gården), tillgängliga via servitut – perfekt för avkoppling och välbefinnande.
En lummig och vacker trädgård, som ger en grön och rofylld miljö mitt i staden.
Praktiska gemensamhetsutrymmen såsom barnvagnsrum, cykelrum och i föreningslokal som man kan boka, vilket underlättar vardagen för hela familjen.
Detta boende kombinerar modern komfort med tillgång till rekreation och vackra omgivningar!
Nya tider skapar nya möjligheter. Du kanske går i försäljningstankar, eller så funderar du på vad din bostad är värd. Oavsett om du har planer på att sälja din bostad eller bara är nyfiken på värdet kan du ta hjälp av våra mäklare. Vi värderar ditt hus, din lägenhet, sommarstuga eller fastighet. Antingen hemma hos dig eller digitalt. Fyll i formuläret så kontaktar vi dig för ett förutsättningslöst möte.
Fyll i formuläretNya tider skapar nya möjligheter. Du kanske går i försäljningstankar, eller så funderar du på vad din bostad är värd. Oavsett om du har planer på att sälja din bostad eller bara är nyfiken på värdet kan du ta hjälp av våra mäklare. Vi värderar ditt hus, din lägenhet, sommarstuga eller fastighet. Antingen hemma hos dig eller digitalt. Klicka på länken och fyll i formuläret så kontaktar vi dig för ett förutsättningslöst möte.
Värdering av din bostad