Logga in
Välkommen till Widerlöv. Logga in för att fortsätta.
Det tar bara några sekunder.
- Starta BankID-appen på din mobil eller surfplatta
- Klicka på QR-koden
- Skanna QR-koden nedan, med BankID-appen
Välkommen till denna mysiga familjevilla på en lugn och trevlig tomt i hjärtat av Björknäs. Ett rymligt hus där du på entréplan har ett snyggt nyrenoverat kök från Ballingslöv med högkvalitativa materialval i form av fina stenskivor och den trevliga köksön delar snyggt av rummet mot den stora matplatsen och vidare till vardagsrummet där du kan njuta framför brasan. På nedre plan finns även ett sovrum med bra förvaring i garderobsvägg, ett mycket fint nyrenoverat toalett/badrum, tvättstuga med separat ingång med dusch, wc och bastu intill. Genom tvättstugan kommer du till det stora uppvärmda garaget där du har plats med både bil, förvaring och hobbyrum.
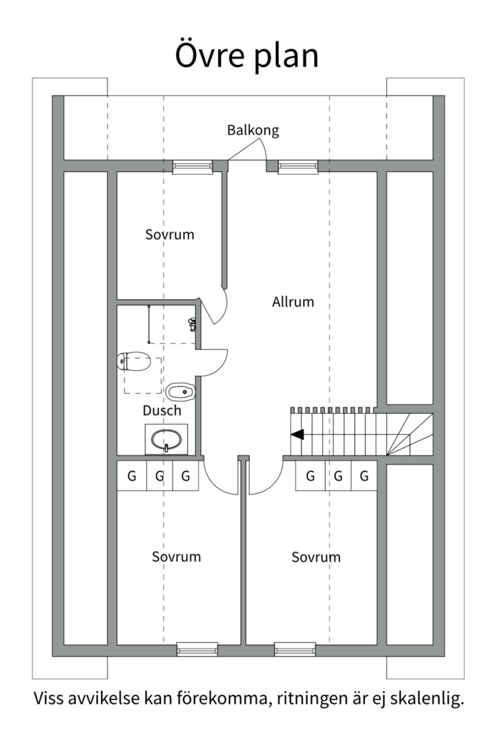
På övre plan finns idag ett rymligt allrum med plats för soffgrupp och skrivbord samt två större sovrum och ett mindre. Ett badrum på övre plan i originalskick med wc och dusch. Intill allrummet har du en stor mysig balkong under tak där du kan njuta av kvällssolen.
Lättskött tomt inbäddad i grönska med två fina uteplatser. Sol går här att njuta av från morgon till kväll. Terrassen utanför köket har plats för både matplats och lounge-möblering samt ett trevligt spabad. Ytterligare en trevlig uteplatsen med utgång från vardagsrummet där du kan sitta in på småtimmarna och njuta av eftermiddag/kvällssol och har även en en stor markis över.
En fin liten lekstuga, förrådshus, ett nytt vägg-växthus samt egen brunn för bevattning av trädgård och odling. Äppel- och plommon träd med rikligt av frukt där det mustats 100 tals kilo äpplen på Värmdömusteri årligen och gett många liter god juice.
Huset har genomgående renoverats de senaste åren med bland annat ny panel på ytterfasaden. Se även under posten renoveringar vad som utförts senaste åren.
Här bor du i ett välmående hus i ett lugnt och avskilt område med närhet till badsjöar och skogsspår. Det är verkligen en plats där hela familjen kan känna sig som hemma.
Områdesbeskrivning
Ett väldigt centralt läge, men ändå lugnt beläget på en gata med lite trafik. Skolorna och förskolorna finns på nära håll, liksom fotbollsplan, hockeyhall och friidrottsarena. Här går barnen tryggt själva till skolan och träningarna utan farlig biltrafik. Kocktorpssjön, Glasbrukssjön och Bagarsjön ligger på nära avstånd. Något som säljarna har gillat är även närheten till det mysiga stället Björknäs handelsträdgård som ligger ett stenkast ifrån huset.
Björknäs centrum med mataffär, restauranger och annan service finns på gångavstånd. Det gör även Centralkonditoriet, Jettz Burger och Pirlo Pizzeria. Närmaste restauranger är Thai Nungru och Pizzeria Helin på Vintervägen. Vill man promenera lite längre så är det heller inte långt till god mat och glass i Tollare.
Här möts de bästa av två världar; ett trivsamt hus med härlig trädgård, granne med skog och vatten, men ändå stan 10-15 minuter bort med bil och ca 30 minuter med elcykel. Busshållplatsen ligger nära och bussarna till stan funkar utmärkt. Det tar cirka 3 minuter att gå till busshållplatsen.
Du kanske går i försäljningstankar, eller så funderar du på vad din bostad är värd. Oavsett om du har planer på att sälja din bostad eller bara är nyfiken på värdet kan du ta hjälp av våra mäklare. Vi värderar ditt hus, din lägenhet, sommarstuga eller fastighet. Antingen hemma hos dig eller digitalt. Fyll i formuläret så kontaktar vi dig för ett förutsättningslöst möte.
Fyll i formuläretDu kanske går i försäljningstankar, eller så funderar du på vad din bostad är värd. Oavsett om du har planer på att sälja din bostad eller bara är nyfiken på värdet kan du ta hjälp av våra mäklare. Vi värderar ditt hus, din lägenhet, sommarstuga eller fastighet. Antingen hemma hos dig eller digitalt. Klicka på länken och fyll i formuläret så kontaktar vi dig för ett förutsättningslöst möte.
Värdering av din bostad