Kommande bostad

Kapellgärdet, Uppsala

Ljusbärargatan 9

Kapellgärdet, Uppsala

Ljusbärargatan 9

Nästa visning
calendar icon söndag 12 april 13:00 - 13:30
calendar icon Nästa visning
söndag 12 april 13:00 - 13:30
price tag icon Pris
3 095 000 kr
Bostadstyp
Lägenhet
rooms and are icon Antal rum
3 rum och kök
area icon Boarea
81 m2
calendar icon Byggnadsår
2018
floors icon Våning
1 av 4 (med hiss)
price tag icon Månadsavgift
4 872 kr/mån
Ljusbärargatan 9

Välplanerad och ljus 3:a i markplan med optimalt läge och radhuskänsla. Njut av uteplats & balkong.

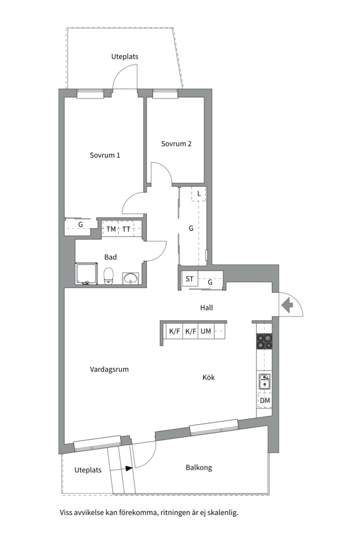
Välkommen till denna stilfulla och ljusa genomgångslägenhet om tre rum och kök på 81 kvm i populära Brf Tornträdgården, i främre delen av Kapellgärdet! Denna moderna bostad från 2018 erbjuder ett fantastiskt läge på markplan, med en rymlig uteplats på baksidan som vetter mot en lummig innergård och ger dig morgon- och förmiddagssol. På framsidan finns en stor härlig balkong i olika nivåer med möjligheter till exempelvis odling där du kan njuta av solen från eftermiddag till kväll. Den öppna planlösningen mellan kök och vardagsrum skapar en social och trivsam atmosfär, och de stora fönstren släpper in gott om ljus. Lägenheten har två sovrum med avskilt läge mot innergården, goda förvaringsmöjligheter, ett stilrent, helkaklat badrum med både tvättmaskin och torktumlare och ett rymligt kök med gott om arbetsyta och en social köksö att samlas kring.

I Brf Tornträdgården bor du i en välskött förening med alla bekvämligheter du kan önska. Här finns en vacker innergård, med lekytor, gemensam uteplats med grillplats, sittgrupper och bärbuskar, en cykelverkstad, källsortering, barnvagnsförråd och varmgarage i huset. Ett tillhörande förråd i källaren ingår också. Kapellgärdet är en attraktiv stadsdel, bara ett stenkast från Uppsala centrum, och här bor du i områdets mest stadsnära grannskap. Även för pendlaren är detta ett idealiskt läge, med endast fem minuter till resecentrum, där du snabbt tar dig vidare till Stockholm eller andra delar av landet.

Närbutik, gym och förskolor finns alldeles i närheten och på bekvämt avstånd hittar du Vaksala torg och affärshuset Kvarnen med mataffär, restauranger och all nödvändig service. Detta hem är perfekt för dig som söker ett modernt boende med både stadens puls och lugna, gröna omgivningar inom räckhåll!

Visningar

Föranmäl dig gärna via hemsidan. Välkommen på visning! söndag 12 april, 13:00 - 13:30
Anmäl mig
Christoffer Stalén Bardaxis
Ansvarig mäklare

Christoffer Stalén Bardaxis

Fastighetsmäklare Boka tid i min kalender Läs mer om Christoffer

Bostaden

Föreningen

Ekonomi

Dokument och länkar

Planlösning från Ljusbärargatan 9, Kommande i Kapellgärdet, Uppsala

Räkna ut boendekostnad

bg

Ska vi ses hemma hos dig?

Du kanske går i försäljningstankar, eller så funderar du på vad din bostad är värd. Oavsett om du har planer på att sälja din bostad eller bara är nyfiken på värdet kan du ta hjälp av våra mäklare. Vi värderar ditt hus, din lägenhet, sommarstuga eller fastighet. Antingen hemma hos dig eller digitalt. Klicka på länken och fyll i formuläret så kontaktar vi dig för ett förutsättningslöst möte.

Värdering av din bostad