Kommande bostad

Kapellgärdet, Uppsala

Ljusbärargatan 7

Kapellgärdet, Uppsala

Ljusbärargatan 7

price tag icon Pris
Pris enl ök
Bostadstyp
Lägenhet
rooms and are icon Antal rum
3 rum och kök
area icon Boarea
77 m2
calendar icon Byggnadsår
2017-18
floors icon Våning
2 av 5 (med hiss)
price tag icon Månadsavgift
4 709 kr/mån
Ljusbärargatan 7

Modern lägenhet nära city med stor balkong i bästa solläge från eftermiddag till kväll utan insyn!

Välkommen till denna välplanerade och trivsamma trea i Brf Tornträdgården, en omtyckt förening med en grönskande och välskött innergård i den mest centrala delen av Kapellgärdet. Här bor du med ett attraktivt läge som kombinerar närheten till stadens puls med ett lugnt och harmoniskt kvarter. Bostaden erbjuder en genomtänkt planlösning med lagom öppna ytor som skapar en naturlig balans mellan sociala sammanhang och privatliv. Den generösa balkongen i västerläge blir snabbt en favoritplats där du kan njuta av eftermiddags- och kvällssol i ett insynsskyddat läge.

Lägenheten präglas av ett fint ljusinsläpp och en inbjudande atmosfär där kök och vardagsrum samspelar på ett naturligt sätt. Här finns gott om utrymme för både soffgrupp och matplats, vilket gör det enkelt att samla familj och vänner. Matplatsen är strategiskt placerad vid fönsterpartiet och rymmer flera gäster, vilket förstärker den sociala känslan i hemmet. Från vardagsrummet nås den rymliga balkongen som fungerar som en förlängning av bostaden under årets varmare månader.

Köket är stilrent och välutrustat med köksinredning från Marbodal samt rostfria vitvaror från Siemens. Här erbjuds goda arbetsytor och smart förvaring, vilket gör matlagningen både smidig och inspirerande. Bostaden har två rofyllda sovrum med fönster mot den lugna innergården, vilket ger en tyst och avkopplande miljö. Det ena sovrummet är utrustat med praktiska skjutdörrsgarderober, och även i hallen finns generös förvaring i samma utförande.

Det helkaklade badrummet är modernt och funktionellt med egen tvättdel bestående av tvättmaskin och torktumlare, vilket förenklar vardagen. Genomgående erbjuder bostaden en bekväm och lättskött standard som passar såväl paret som den mindre familjen.

Brf Tornträdgården är en stabil och välskött förening där de boende har tillgång till en trevlig innergård med grönska och sociala ytor. Här finns även praktiska faciliteter såsom cykelrum, barnvagnsförråd, städrum och källsortering. Till lägenheten hör ett förråd i källaren, och via hissen tar du dig smidigt ner till garage där även cykelförvaring finns.

Kapellgärdet är ett av Uppsalas mest efterfrågade områden, och just denna bostad är belägen i den del som ligger allra närmast stadskärnan. Här bor du med ett mycket centralt läge och med mindre än en kilometers promenad till city samt nära Resecentrum, vilket gör pendlingen både smidig och tidseffektiv. För dig som cyklar tar det bara några minuter att nå tåg och bussförbindelser. I närområdet finns ett brett utbud av service såsom livsmedelsbutiker, träningsanläggningar, restauranger och caféer. På bekvämt avstånd ligger även Vaksala torg, konserthuset samt Kvarnen med sitt stora serviceutbud.

Detta är ett hem som erbjuder både komfort, funktion och ett attraktivt läge, perfekt för dig som vill bo centralt med närhet till allt Uppsala har att erbjuda.

Intresseanmälan
Beyar Hajo
Ansvarig mäklare

Beyar Hajo

Fastighetsmäklare Boka tid i min kalender Läs mer om Beyar

Bostaden

Föreningen

Ekonomi

Dokument och länkar

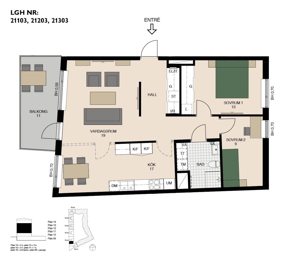
Planlösning från Ljusbärargatan 7, Kommande i Kapellgärdet, Uppsala
Intresseanmälan

Anmäl dig här

Du som är intresserad av den här bostaden får gärna lämna dina kontaktuppgifter här. Då kan jag höra av mig till dig med uppdateringar kring bostaden, och du riskerar inte att missa nåt.

Räkna ut boendekostnad

bg

Ska vi ses hemma hos dig?

Du kanske går i försäljningstankar, eller så funderar du på vad din bostad är värd. Oavsett om du har planer på att sälja din bostad eller bara är nyfiken på värdet kan du ta hjälp av våra mäklare. Vi värderar ditt hus, din lägenhet, sommarstuga eller fastighet. Antingen hemma hos dig eller digitalt. Klicka på länken och fyll i formuläret så kontaktar vi dig för ett förutsättningslöst möte.

Värdering av din bostad