Logga in
Välkommen till Widerlöv. Logga in för att fortsätta.
Det tar bara några sekunder.
- Starta BankID-appen på din mobil eller surfplatta
- Klicka på QR-koden
- Skanna QR-koden nedan, med BankID-appen
Denna charmiga villa har genomgått en varsam totalrenovering och är nu i perfekt skick. Ligger i ett lugnt och avskilt område perfekt för barnfamiljen med närhet till badsjöar och skogsspår. Det är verkligen en plats där hela familjen kan känna sig som hemma.
Välskött hus med ett mycket fint besiktningsprotokoll (se bifogat dokument).
Stora fönster helt utan insyn, fantastisk tomt och terrass på baksidan lockar till både avkoppling och sociala tillställningar. Välkomnande murbelysning längs infarten ger en välkomnande känsla. Alla materialval har valts med omsorg och håller en mycket hög kvalitet. På övre plan finner du en social del med ett modernt kök öppet mot de stora vardagsrummet och den trevliga matplatsen. Intill har du en öppen spis där du kan njuta långa kvällar. Längst husets framsida sträcker sig en stor balkong. Övre plan har även två mysiga sovrum och ett lyxigt badrum.
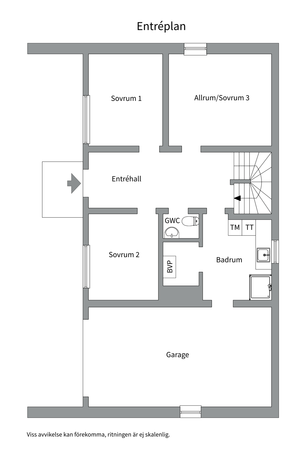
Nedre plan har tre mysiga rum som kan användas till sovrum, kontor eller tv-rum. Ett modernt och påkostat badrum med hotellkänsla, separat wc och med direktanslutning till nedre plan ett garage.
Tomten är fantastisk med sina 1304 kvadratmeter. På baksidan av huset finns ett stort och härligt trädäck byggts upp i olika sektioner. Här finns pergola, grillstation och en jacuzzi. Det är verkligen en av husets bästa platser, med gott om utrymme för matplatser och lounge-möblering. Vackert anlagd med planteringar och gott om utrymme för lek.
Nya tider skapar nya möjligheter. Du kanske går i försäljningstankar, eller så funderar du på vad din bostad är värd. Oavsett om du har planer på att sälja din bostad eller bara är nyfiken på värdet kan du ta hjälp av våra mäklare. Vi värderar ditt hus, din lägenhet, sommarstuga eller fastighet. Antingen hemma hos dig eller digitalt. Fyll i formuläret så kontaktar vi dig för ett förutsättningslöst möte.
Fyll i formuläretNya tider skapar nya möjligheter. Du kanske går i försäljningstankar, eller så funderar du på vad din bostad är värd. Oavsett om du har planer på att sälja din bostad eller bara är nyfiken på värdet kan du ta hjälp av våra mäklare. Vi värderar ditt hus, din lägenhet, sommarstuga eller fastighet. Antingen hemma hos dig eller digitalt. Klicka på länken och fyll i formuläret så kontaktar vi dig för ett förutsättningslöst möte.
Värdering av din bostad