Juvansbo, Uppsala

Juvansbo 43A

Såld

Juvansbo, Uppsala

Juvansbo 43A

Slutpris: 3 700 000 kr

Högsta bud
bidding icon with dollar sign Budgivare 1 3 700 000 kr

Nyproducerad 1 1/2-plans radhus med braskamin med bästa läget i området!

Uppsalas nya livsstilsboende hittar du i en helt unik natur ca 15 minuter från Uppsalas myllrande stadsliv.

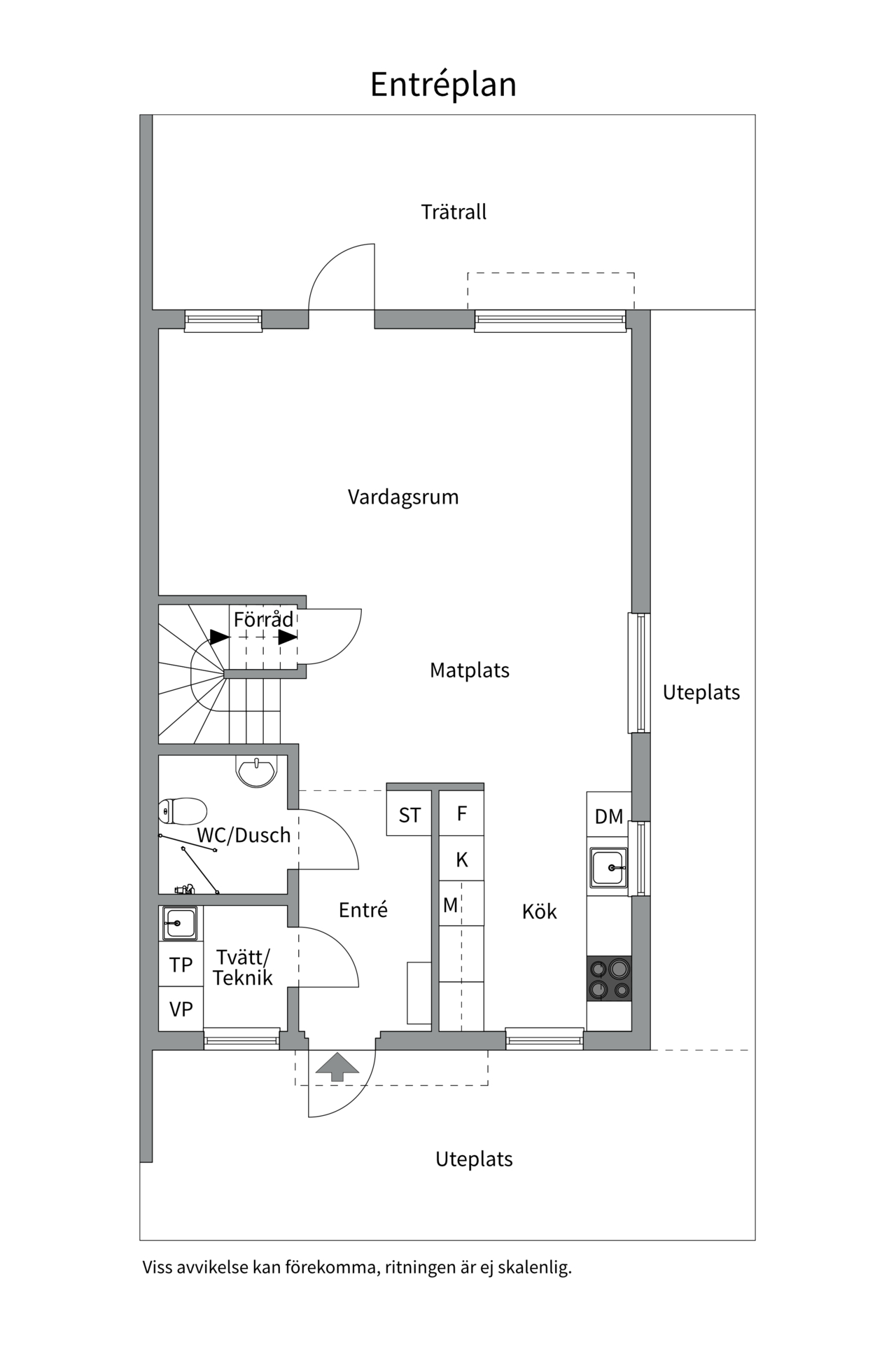
Väldisponerat gavelradhus med sina 124 kvadratmeter är fördelat på 2 plan. På entréplan finner ni en praktisk hall med klinkergolv samt plats för ytterkläder och skor i garderober. Badrum med dusch samt ett separat klädvårdsrum med grovingång. Rymligt kök med bra arbetsytor samt bra förvaring, öppen planlösning mot stort vardagsrum med härlig utsikt mot baksidan som vetter mot åkermark och grönskande landskap. I vardagsrummet finns en värmande braskamin för kyliga kvällar. En trappa upp finns ett allrum samt tre bra sovrum med stora fönster eller takfönster. Rymligt badrum med badkar samt ett takfönster.

Till radhuset hör en parkeringsplats utanför dörren samt ett förråd.

Juvansbo ligger med ett bra pendlarläge för den bilburne då man har nära till E4:an påfart. Härifrån in till Uppsala tar det drygt 15 minuter och Gränby köpcentrum nås på ca 10 min. Busshållplats finns även i närheten (nr 103). I närliggande Björklinge har du tillgång till affär, flertalet förskolor, låg- och mellanstadieskola, högstadium, fritidsgård sam idrottsföreningar med flera aktiviteter så som fotboll, längdskidor, ishockey, innebandy och tennis. Vid Långsjön, en av Upplands finaste badsjöar, erbjuds en mycket trevlig badplats med fin sandstrand och här finns kiosk, omklädningsrum, toaletter och badbryggor. På vintern ges här möjlighet till skridskoåkning, längdskidåkning och intill badet ligger även en skidbacke med lift som är öppen när vädret tillåter.

Välkommen att anmäla er till visningen

Widerlöv

Vill du ha mer information?

Kontakta oss på kontoret
bg

Ska vi ses hemma hos dig?

Nya tider skapar nya möjligheter. Du kanske går i försäljningstankar, eller så funderar du på vad din bostad är värd. Oavsett om du har planer på att sälja din bostad eller bara är nyfiken på värdet kan du ta hjälp av våra mäklare. Vi värderar ditt hus, din lägenhet, sommarstuga eller fastighet. Antingen hemma hos dig eller digitalt. Klicka på länken och fyll i formuläret så kontaktar vi dig för ett förutsättningslöst möte.

Värdering av din bostad