Logga in
Välkommen till Widerlöv. Logga in för att fortsätta.
Det tar bara några sekunder.
- Starta BankID-appen på din mobil eller surfplatta
- Klicka på QR-koden
- Skanna QR-koden nedan, med BankID-appen
I hjärtat av Saltsjö-Duvnäs, i ett av områdets mest exklusiva och eftertraktade lägen, ligger denna imponerande villa. Omgivningarna präglas av vackra historiska villor som ger kvarteren en tidlös och representativ karaktär. Nedanför breder Strandpromenaden ut sig längs Duvnäsviken, och inom räckhåll finns både Erstavik och Nackareservatet – en perfekt kombination av havsnära liv och storslagen natur.
Husets exteriör är välproportionerad och harmonierar med den klassiska villabebyggelsen runtomkring. Den generösa byggnadsvolymen ger ett pampigt men samtidigt inbjudande intryck, och den luftiga placeringen på tomten förstärker känslan av rymd och exklusivitet.
Duvnäsviken är ständigt närvarande! Bra sjöutsikt från både tomt och flertalet av villans rum.
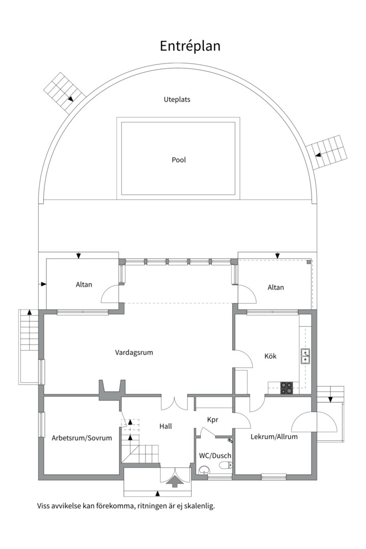
Invändigt möts man av en otroligt välplanerad interiör där varje del av huset är anpassad för ett aktivt familjeliv. De rymliga sällskapsytorna är generösa och inbjudande – med dubbla vardagsrum skapas både plats för stora gemensamma stunder och mer avskilda rum för vardagsro.
Planlösningen ger fantastiska möjligheter för alla i familjen att hitta sin plats, oavsett om det är för lek, arbete eller social samvaro. De stora sovrummen erbjuder komfort och flexibilitet, medan smart förvaring genom hela huset bidrar till en organiserad och harmonisk vardag.
Källarplanet är ovanligt välutnyttjat och funktionellt, med ett stort utrymme som enkelt kan anpassas efter familjens behov – allt från hobbyrum till hemmabio eller träningsyta. Tillsammans med husets fantastiska utsikt och kontakt med den parkliknande tomten skapas ett hem där både vardag och fest får utrymme att blomstra.
Den ovanligt stora tomten är en av fastighetens verkliga styrkor. Här samsas öppna, soliga gräsytor med lummiga partier av uppvuxna träd och planteringar som skapar både insynsskydd och en parkliknande känsla. Flera generösa uteplatser och terrasser är placerade för att fånga solen under hela dagen och erbjuder självklara miljöer för middagar, loungeliv och sommarens sociala tillställningar. Kombinationen av stora sällskapsytor och mer avskilda hörn ger en trädgård som är både levande och privat. Via grinden och fortsatt på egna tomten når ni Strandpromenaden med båtliv och hav!
Det stensatta poolområdet blir den naturliga samlingsplatsen under sommarhalvåret. Här möts stilren stenläggning och generösa ytor för solbäddar och loungemöbler – en perfekt miljö för både avkopplande dagar och sociala kvällar. Poolen ligger i ett soligt och skyddat läge och skapar en exklusiv resortkänsla i hemmamiljö.
Framför breder en lummig och välskött trädgård ut sig, där de vackra äppelträden blommar på våren och ger riklig skörd sensommartid. De bidrar med både karaktär och charm – ett levande inslag som ramar in poolområdet och förstärker känslan av en genomtänkt och harmonisk utemiljö. Här samsas elegans med det naturnära på bästa sätt.
Dubbelgarage om ca 37 kvm.
Sammantaget erbjuds här en sällsynt helhet – ett hus med unik storlek, en generös och grönskande tomt samt ett av Saltsjö-Duvnäs absolut bästa lägen med närhet till vatten, natur och historisk villacharm.
Varmt välkomna på visning! Parkera smidigt på Strandpromenaden och ta gången genom trädgården.
Nya tider skapar nya möjligheter. Du kanske går i försäljningstankar, eller så funderar du på vad din bostad är värd. Oavsett om du har planer på att sälja din bostad eller bara är nyfiken på värdet kan du ta hjälp av våra mäklare. Vi värderar ditt hus, din lägenhet, sommarstuga eller fastighet. Antingen hemma hos dig eller digitalt. Fyll i formuläret så kontaktar vi dig för ett förutsättningslöst möte.
Fyll i formuläretNya tider skapar nya möjligheter. Du kanske går i försäljningstankar, eller så funderar du på vad din bostad är värd. Oavsett om du har planer på att sälja din bostad eller bara är nyfiken på värdet kan du ta hjälp av våra mäklare. Vi värderar ditt hus, din lägenhet, sommarstuga eller fastighet. Antingen hemma hos dig eller digitalt. Klicka på länken och fyll i formuläret så kontaktar vi dig för ett förutsättningslöst möte.
Värdering av din bostad