Logga in
Välkommen till Widerlöv. Logga in för att fortsätta.
Det tar bara några sekunder.
- Starta BankID-appen på din mobil eller surfplatta
- Klicka på QR-koden
- Skanna QR-koden nedan, med BankID-appen
Välkommen till fastigheten Granliden belägen på Hasselvägen 24 i den äldre och trivsamma delen av populära Storvreta! Innanför dubbelgrindarna möts du av en ”gårdskaraktär” som bildas av bostadshuset, dubbelgaraget samt förrådsbyggnad och tillsammans med den uppvuxna trädgårdstomten om 3 262 kvm blir detta ett unikt tillfälle om du föredrar att bo i ett samhälle men inte med dina grannar direkt inpå husknuten.
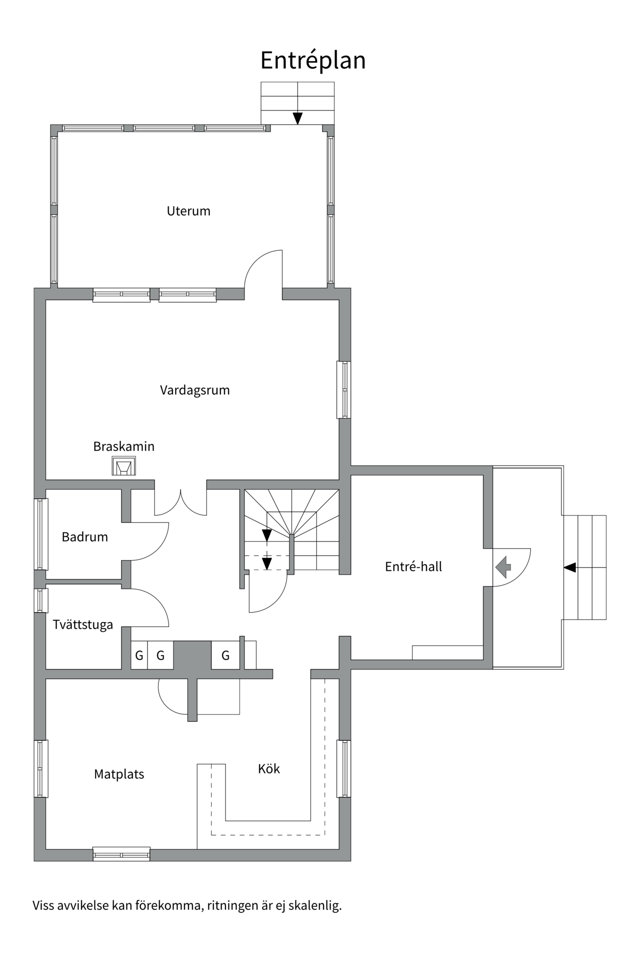
Här möts äldre charm det moderna praktiska och entréplanet fördelar sig på hall med plats för att hänga av sig ytterkläder samt en platsbyggd sittbänk, rymligt vardagsrum med braskamin samt utgång till ett inglasat uterum, kök med ljus inredning och vedspis samt kakelugn vid den generöst tilltagna matplatsen – här är det lätt att trivas tillsammans med familj och vänner. Tvättstuga med arbetsbänk samt badrum med kakel och klinker. Övervåningen öppnas upp med en övre hall och från denna nås tre sovrum varav det större rummet med balkong, badrum med kakel och klinker samt klädkammare.
Dubbelgarage/verkstad och gott om parkeringsplatser både på uppfarten och innergården. Den uppvuxen trädgården är belägen i ett insynsskyddat och soligt läge med plats för både lek, avkoppling och är en dröm för dig med gröna fingrar och ett brinnande trädgårdsintresse som du kanske vill utveckla – här finns gott om plats för familjens olika intressen eller så vill du bara njuta i det inglasade uterummet från tidig vår till sen höst.
Fina omgivningar och ett stenkast från strövområden, motionsspår, grillplatser, pulkabacke och skidspår. Storvreta erbjuder dessutom all tänkbara service såsom matbutiker med generösa öppettider, blomaffär, vårdcentral, tandläkare, apotek, blomaffär, restauranger flertalet förskolor samt skola upp till årskurs 9, gym, aktiva idrottsföreningar med bl a innebandy, fotboll och ridning. Utmärkta kommunikationer med buss och Upptåget som endast tar ca 8 minuter in till centrala Uppsala och gör det smidigt att byta till Stockholmspendel. Väljer man att pendla med bil så är man ute på E4:an på endast några minuter – Perfekt område för den aktiva familjen som vill ha allt på bekvämt avstånd.
Du kanske går i försäljningstankar, eller så funderar du på vad din bostad är värd. Oavsett om du har planer på att sälja din bostad eller bara är nyfiken på värdet kan du ta hjälp av våra mäklare. Vi värderar ditt hus, din lägenhet, sommarstuga eller fastighet. Antingen hemma hos dig eller digitalt. Fyll i formuläret så kontaktar vi dig för ett förutsättningslöst möte.
Fyll i formuläretDu kanske går i försäljningstankar, eller så funderar du på vad din bostad är värd. Oavsett om du har planer på att sälja din bostad eller bara är nyfiken på värdet kan du ta hjälp av våra mäklare. Vi värderar ditt hus, din lägenhet, sommarstuga eller fastighet. Antingen hemma hos dig eller digitalt. Klicka på länken och fyll i formuläret så kontaktar vi dig för ett förutsättningslöst möte.
Värdering av din bostad