Kommande bostad
Besiktigad

Norra Vallby, Västerås

Eldhusgatan 5

Norra Vallby, Västerås

Eldhusgatan 5

price tag icon Pris
5 395 000 kr
Bostadstyp
Friliggande villa
rooms and are icon Antal rum
7 rum
area icon Boarea
159 m2
area icon Biarea
80 m2
area icon Tomtarea
1 056 m2
calendar icon Byggnadsår
1970
Eldhusgatan 5

Genomgående renoverad och fin villa där i princip allt är gjort!

- Bara att flytta in
- Genomgående mycket gott skick både ut- och invändigt
- Stora ytor, perfekt för den stora familjen
- Dubbelgarage

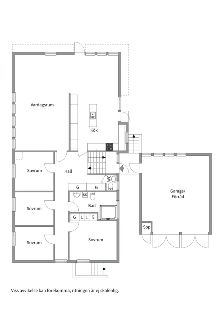
Välkomna in till denna mycket välskötta villa på eftertraktade Norra Vallby. Här har du ett hem som prickar in många krav på listan med många stora renoveringar gjorda och estetiskt tilltalande ytskikt invändigt. På entréplan har ni generöst kök och vardagsrum i öppen planlösning, fyra sovrum, helkaklat badrum och gäst-WC.

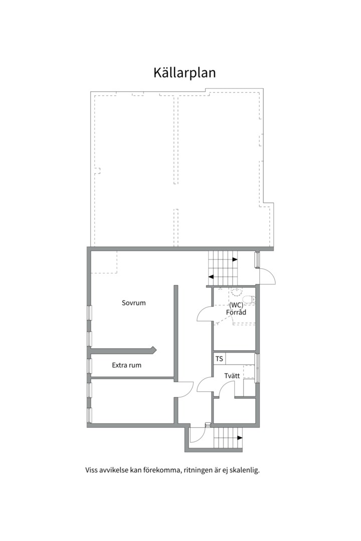
Trivsamt inrett källarplan med generös gillestuga som används idag som sovrum, helkaklat duschrum, tvättstuga och förvaring.

Här bor ni på barnvänliga Norra Vallby som är ett trivsamt område populärt för barnfamiljer. Här bor ni med närhet till flertalet förskolor och skola. Ni har även bekvämt avstånd till flertalet aktiviteter såsom Vallby friluftsmuseum, Vedbobacken, lekparker och Västerås golfklubb. På kort bilfärd når ni Västerås city, Erikslund och E18.

Intresseanmälan
Zain Turfi
Ansvarig mäklare

Zain Turfi

Fastighetsmäklare, franchisetagare Fri värdering Läs mer om Zain

Bostad

Ekonomi

Dokument och länkar

Intresseanmälan

Anmäl dig här

Du som är intresserad av den här bostaden får gärna lämna dina kontaktuppgifter här. Då kan jag höra av mig till dig med uppdateringar kring bostaden, och du riskerar inte att missa nåt.

Räkna ut boendekostnad

bg

Ska vi ses hemma hos dig?

Nya tider skapar nya möjligheter. Du kanske går i försäljningstankar, eller så funderar du på vad din bostad är värd. Oavsett om du har planer på att sälja din bostad eller bara är nyfiken på värdet kan du ta hjälp av våra mäklare. Vi värderar ditt hus, din lägenhet, sommarstuga eller fastighet. Antingen hemma hos dig eller digitalt. Klicka på länken och fyll i formuläret så kontaktar vi dig för ett förutsättningslöst möte.

Värdering av din bostad